Meet the Other Phone. Flexible and made to last.

Meet the Other Phone.
Flexible and made to last.

Buy now

Please or to access all these features

Property/DIY

Join our Property forum for renovation, DIY, and house selling advice.

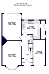
Floor Plan Help

2 replies

MoreSpacePlease · 12/10/2025 09:58

We’re considering buying this property but not sure how to make the layout work for us. Ideally, we’d want to keep the four bedrooms, have space for an office and add a bath, there’s a bathroom but no actual bath at the moment. We’d love an ensuite too, but that might have to wait until we can do a loft conversion in a few years. Downstairs, we’d like to keep the living room at the front and open living at the back. We’re in Outer London, so building costs are on the higher side.

We’ve looked at it so much we’re overthinking. Wondering if anyone has ideas, especially for the upstairs? Just feels like it will be a bit tight up there.

Floor Plan Help
Floor Plan Help
OP posts:
TMMC1 · 12/10/2025 12:58

You’d be best finding a house with a layout that already works for you, or mostly works for you.

From the floor plan and your requirements I don’t think you will get your money back from how much it’s going to cost you.

childofthe607080s · 12/10/2025 13:33

i guess it’s the garage then - insulate it well and it veined the office

if you want to add a bath adding it downstairs in the garage close to the downstairs loo would work from plumbing I guess - the current loo becomes the door /corrdoor to the bathroom and office rather than squeezing another door in the hall ?

New posts on this thread. Refresh page