Meet the Other Phone. A phone that grows with your child.

Meet the Other Phone.
A phone that grows with your child.

Buy now

Please or to access all these features

Property/DIY

Join our Property forum for renovation, DIY, and house selling advice.

Moving stairs. Would it even be possible?

8 replies

jensaa · 17/05/2025 19:29

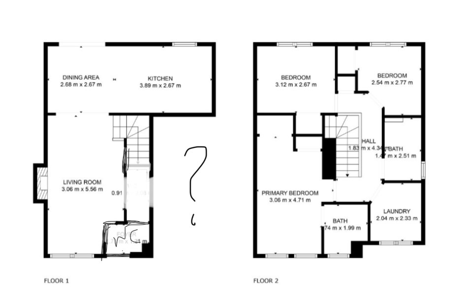
Found a lovely house in perfect location but (big but) it doesn’t have a hallway and the stairs are in the living room! It’s is a deal breaker for me unless they could be moved. Would it even be possible without making the living room even more narrow? Would also mean moving the downstairs toilet to where the stairs currently are so assume won’t be cheap.

Any idea on costs for moving stairs?

Moving stairs. Would it even be possible?
OP posts:
Turmerictolly · 17/05/2025 20:51

No architect here but you could put a staircase where the WC is but you might have to use thec’laundry’ space upstairs. Maybe ask for another visit with a builder.

Cabbagefamily · 17/05/2025 21:24

You could just put up a dividing wall between the dining room and the living room to create a hall there and keep the stairs as they are.

Gundogday · 17/05/2025 21:27

Moving stairs are called an escalator!

Upsetbetty · 17/05/2025 21:31

Would you be willing to lose or move the downstairs loo?

TimeForATerf · 17/05/2025 21:35

Was the house built like this or has a previous owner removed the wall to the hallway to give them more space?

rather an unusual layout, I wonder if it looked completely different upstairs and down when it was built. Was that laundry a fourth bedroom over a garage?

Upsetbetty · 17/05/2025 21:35

Providing you can access from the side to the right (where I have the question mark) I would if funds provided…move the entrance round and swap the ex and foyer

Moving stairs. Would it even be possible?
NeedForSpeed · 17/05/2025 21:39

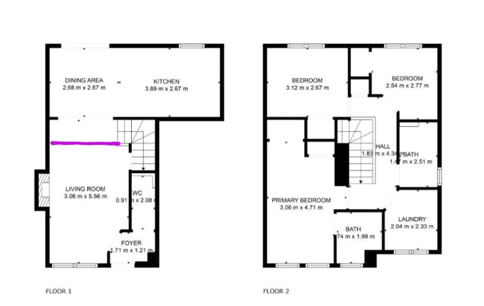
I wouldn't. Whack up either a stud wall with a normal internal door or a large set of doors along the purple line. It'll save you a fortune.

What would your budget be to move the stairs? Turning them without big spends would depend on existing joists, but ripping out the loo etc will bring lots of extra costs.

Moving stairs. Would it even be possible?
Upsetbetty · 17/05/2025 21:43

Yeah actually now that I look at mine I had the stairs all arrow all wrong! 🤣🤣 go with @NeedForSpeed it’s probably the cheapest option

New posts on this thread. Refresh page
Swipe left for the next trending thread