Meet the Other Phone. Flexible and made to last.

Meet the Other Phone.
Flexible and made to last.

Buy now

Please or to access all these features

Property/DIY

Join our Property forum for renovation, DIY, and house selling advice.

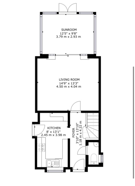
Another floor plan …

2 replies

FunPinkSwan · 02/03/2025 22:12

Hello

just after a bit of advice really, would you knock down the wall from the kitchen into the lounge or leave as separate - half tempted to leave as this design and then change things up when I can extend sideways to make both lounge and kitchen bigger years down the line …

TIA

Another floor plan …
OP posts:
parietal · 02/03/2025 22:40

Keep separate and save and plan for bigger work in a few years

OttersAreMySpiritAnimal · 03/03/2025 13:59

Definitely separate. You'd lose a whole run of cabinets taking down the wall, which isn't an improvement in a small kitchen.

New posts on this thread. Refresh page