Meet the Other Phone. Only the apps you allow.

Meet the Other Phone.
Only the apps you allow.

Buy now

Please or to access all these features

Property/DIY

Join our Property forum for renovation, DIY, and house selling advice.

Which floor plan/ town house?

39 replies

Sky1111 · 25/12/2024 20:53

Hello,
We would like to buy a new town house.
Wefound 2 brand new properties and we dont know which one is better?

  1. house:
Ground floor - 1 bedroom, 1 bathroom, storage room, coat storage and corridor

first floor- kitchen and living room area and garden 20 x 70 m. (Private terrace for residence only for 12 properties)

second floor - 2 bedrooms and 2 bathrooms (one ensuite)

its end of terrace - large long glasses on site of the property where stairs are so its airy.

House 2
Ground floor: when you get in to the property there is a wc and coat storage then straight to away to the kitchen than living room area. So basically there is no corridor. Private garden 8x5 m.

first floor - 2 bedrooms, 2 bathrooms both ensuite

second floor - 2 bedrooms one if them is ensuite. Its not end of terrace so we will have neighbours on each side so no windows.
Bedroom sizes are bigger than house 1.

House 1 is £250 k cheaper than house 2.

OP posts:
Thread gallery
6
JimHalpertsWife · 25/12/2024 20:55

I wouldn't enjoy being two floors above/below my kids, so the layout with a ground floor bedroom and then other bedrooms on the second floor would be a no no. Also, it's a pain carrying groceries up a flight of stairs every day.

hepsitemiz · 25/12/2024 21:00

How do you get a garden on the first floor (one floor up from ground floor?)

LittleHangleton · 25/12/2024 21:00

Of those, I would buy house 2.

I wouldn't enjoy being two floors above/below my kids

At any age? My children are teens / young adults. I love having my loft room suite, my sanctuary separate from the kids.

Sky1111 · 25/12/2024 21:08

@hepsitemiz there is car park on the ground floor and garden is above that on the first floor. So its safe and there is nice view

OP posts:
Aparecium · 25/12/2024 21:20

Can you post the actual floorplans? Or the listings?

On description, House 2 sounds a much more comfortable and flexible layout, but there's so much more to how well house flows.

Sky1111 · 25/12/2024 21:27

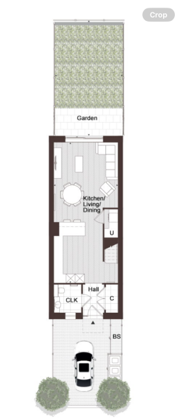
House 1

Which floor plan/ town house?
Which floor plan/ town house?
Which floor plan/ town house?
OP posts:
Sky1111 · 25/12/2024 21:27

House 2

Which floor plan/ town house?
Which floor plan/ town house?
Which floor plan/ town house?
OP posts:
Sky1111 · 25/12/2024 21:29

@Aparecium thank you - didnt know that I can add images here😀

OP posts:
OuiLaLa · 25/12/2024 21:34

House 1 would be out if I had young children due to being too far away from them overnight.

House 2 if better but not sure I would love the entrance as you point out OP. Makes the kitchen look like a hall but would depend how it felt in real life.

good luck op!

Sky1111 · 25/12/2024 21:35

@OuiLaLa thank you

OP posts:
SabrinaThwaite · 25/12/2024 21:37

House 2. You’ll have a private garden, you don’t need to carry groceries upstairs, and you have the flexibility of using one of the bedrooms as a second reception room.

Lola247 · 25/12/2024 21:41

House 2 would be better for me but at an extra 250k can you afford it? X

RandomUsernameHere · 25/12/2024 21:47

House 2 definitely

CheeseTime · 25/12/2024 21:49

House 2 sounds obviously better but £250K!!

Im in a mid terrace town house and it’s dark so the light in house 1 appeals.

what’s the % difference. Like 600 and 850 or £1.2m and 1.45m?

service charge for the shared outside area of house 1?

Sky1111 · 25/12/2024 21:50

@Lola247 yes but we just didn’t like the entrance of the House 2, no window in kitchen and its a narrow than House 1. But house has an extra bedroom which is a bonus for sure

OP posts:
Sky1111 · 25/12/2024 21:53

@CheeseTime both has similar service charge for facilities; gym, swimming pool, concierge, business centre etc x

OP posts:
fashionqueen0123 · 25/12/2024 21:55

House two although it sounds over priced but then most new builds are. I’d check the developers Facebook page for the site or area before taking it any further.

Sky1111 · 25/12/2024 21:58

@fashionqueen0123 same area, same development x

OP posts:
jellybe · 25/12/2024 22:00

We lived for a year in the layout of the first one as a rental and hated having a floor between us and the eldest DC. It was not practical at all for our family. The DC were 8 and 3 at the time so not practical for them to share the small second room on the top floor so eldest was on the bottom floor and we had a monitor in her room incase she was ill in the night etc. really don't get how developers see this layout as a family home.

FloofPaws · 25/12/2024 22:02

I've known a few people with house 1 style with bedroom on the ground floor, they're not good for younger kids,

I personally don't like town houses, they're very detached from everyone IMO

Sky1111 · 25/12/2024 22:06

@jellybe its not a problem for us but you are right its not so practical for families with small children. Might be hard to sell it in the future because of that reason x

OP posts:
FeegleFrenzy · 25/12/2024 22:09

I’d hate house 1, shared garden and the middle floor is too open plan, seems like a sofa in the middle of the kitchen.

house 2 is still open plan but seems more separated/sectioned off.

my grandad always said buy the best house you can afford. So house 2 if it’s worth 250k more and you can afford it seems better. But from the floor plans it’s hard to tell is it worth that much more or is it overpriced?

Sky1111 · 25/12/2024 22:11

@FloofPaws I know but we would like to buy a brand new property with facilities and good transport links. And these properties are perfect for that. Almost all houses we viewed needs repairs etc and we have no time for that to be honest

OP posts:
SabrinaThwaite · 25/12/2024 22:14

I think another downside to House 1 is that the downstairs bedroom is likely to end up as an occasional use room (unless you have someone that will use it as a full time bedroom) and that means it’s becomes a pretty much unused floor.

fashionqueen0123 · 25/12/2024 22:26

Sky1111 · 25/12/2024 21:58

@fashionqueen0123 same area, same development x

That seems like a huge price difference. What’s the parking or garage situation with each?