Meet the Other Phone. Protection built in.

Meet the Other Phone.
Protection built in.

Buy now

Please or to access all these features

Property/DIY

Join our Property forum for renovation, DIY, and house selling advice.

HELL! To buy our forever home or stay put comfortably?

68 replies

terracottacountryfarm · 13/12/2024 09:16

Hi everyone, I’d love some advice as we’re at a real crossroads and can’t decide what to do.

We’ve come across a 5-bed detached house up the road from where we currently live. It’s in a small cul-de-sac, has been fully renovated by a builder, and is brand new and ready to move into. While it’s not decorated to my taste, it’s a fantastic space with everything we’d need in a “forever home.”

Currently, we live in a 3-bed semi-detached townhouse. We’ve spent quite a lot doing it up and even added an extension, so it’s very much to our taste. We love our home, and it’s big enough for two children if we decide to start a family soon. The only issue is that it doesn’t have the open-plan kitchen/diner and separate study space I dream of.

Here’s the situation:

My dad has kindly gifted us £300k, which has given us two clear options:

Option A: Stay in our current house

Use the £300k to pay off our mortgage entirely and be mortgage-free.
Use the remaining £150k to renovate the house (e.g., create an open-plan kitchen/diner).
Live comfortably with no financial pressures, but possibly outgrow the house eventually and need to move in the future.

Option B: Move to the 5-bed detached house

Use the £300k towards the £675k house, leaving us with a £100k mortgage.
Take out another £100k mortgage to redecorate and furnish it to our taste, leaving us with a £200k mortgage in total.
This would likely be our “forever home” and give us the space we want, but it’s a much bigger financial commitment, especially with children potentially on the horizon.

I’m worried we might regret not making the move before having children, but we also love the idea of being mortgage-free and having financial freedom, but equally, we will be pushing our limits financially...

What would you do in our position?

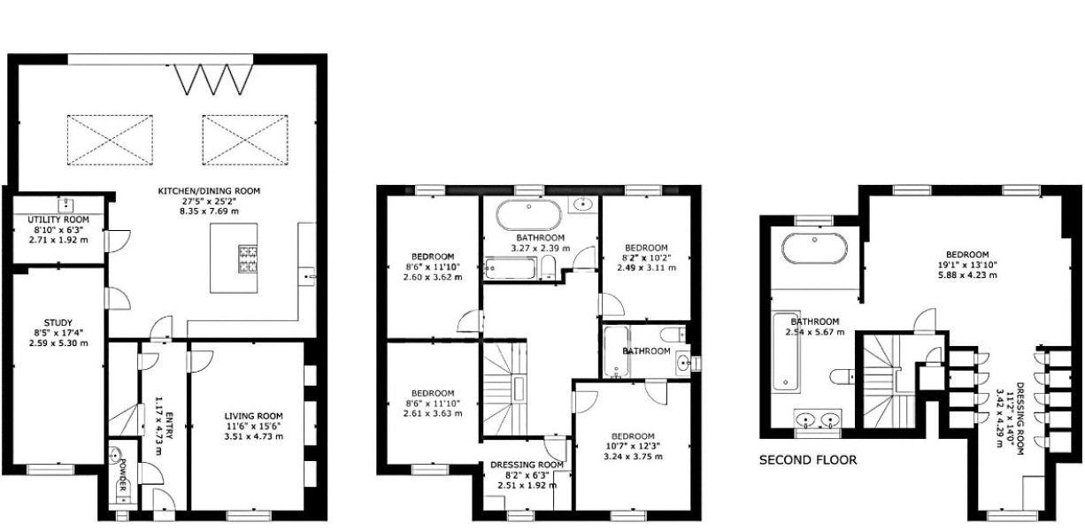
Attached floor plan of new home

HELL! To buy our forever home or stay put comfortably?
OP posts:
TreesWelliesKnees · 13/12/2024 09:24

200k mortgage sounds OK to me, but it depends on your earnings now and your potential future earnings. Sounds like you are still young enough to take on a mortgage like that. I would perhaps consider reducing the decorating/furnishing part of it, as 100k for redecorating a brand new home sounds excessive. If it's a forever home you can take your time and do it as you go along?

I absolutely love that floorplan. It has everything!

Dramallama91 · 13/12/2024 09:33

I would go with option 2 for sure. If you don't have kids now you will grow out of your current house quicker than you think!

Twoshoesnewshoes · 13/12/2024 09:36

Option 2 personally, if you can afford the mortgage.
its a good investment, and you can downsize in the future if needed.

terracottacountryfarm · 13/12/2024 09:41

Thank you all for your replies. We are torn, just worried with the cost of our bills doubling and bigger mortgage it will be a strain and we will be skinting ourselves out but we love love love the house Blush

OP posts:
Chasingsquirrels · 13/12/2024 09:42

I can't imagine spending £100k to furnish & decorate a house that is "fully renovated by a builder, and is brand new and ready to move into. While it’s not decorated to my taste", especially when I already had furniture from my current house to take with me.

terracottacountryfarm · 13/12/2024 09:45

@Chasingsquirrels it has velvet plush pinkish carpets. Whoever made that decision was obviously a man and the furnishing is purely black, white and grey. It's very modern and dull

OP posts:
SoNiceToComeHomeTo · 13/12/2024 09:45

terracottacountryfarm · 13/12/2024 09:41

Thank you all for your replies. We are torn, just worried with the cost of our bills doubling and bigger mortgage it will be a strain and we will be skinting ourselves out but we love love love the house Blush

You also love the current house which is decorated to your taste. And you can afford to create an open plan kitchen and maybe study. Nobody knows what the future holds. You may want to move to another area or travel for a year. I’d stick with the affordable option that gives you more freedom.

Iloveshihtzus · 13/12/2024 09:46

Chasingsquirrels · 13/12/2024 09:42

I can't imagine spending £100k to furnish & decorate a house that is "fully renovated by a builder, and is brand new and ready to move into. While it’s not decorated to my taste", especially when I already had furniture from my current house to take with me.

Surely you only need to spend 100k to move - redecorate over time, you might find what you want to do changes over time and I would never again redo a house before I had toddlers - they destroy it so you will have to redecorate once they grow up a bit!!!

TallulahBetty · 13/12/2024 09:49

I'd stick with where you are and do it up. How lovely to be mortgage-free.

Reallybadidea · 13/12/2024 09:50

I agree with option B but taking out another £100k on your mortgage to redecorate is crazy IMHO. Apart from the fact that it really shouldn't cost that much to redecorate and get new carpets, add on the interest over the lifetime of a mortgage and it will be a lot more than £100k.

Hoolahoophop · 13/12/2024 09:55

From the online mortgage advisor

At the time of writing (December 2024), the average monthly repayments on a £100,000 mortgage are £585. This is based on current interest ranges being around 5%, a typical mortgage term of 25 years and most borrowers opting for a capital repayment mortgage. Based on this, you would repay £175,377 by the end of your mortgage term.

So your redecoration (which will add nothing to the value of your property) will cost you £175,377 by the time you have paid it back in 25 years, by that time you are likely to have redecorated again, many times so will not even remember what this initial change looked like.

I would hands down get the detached house with a £100k mortgage and redecorate slowly over time as the money became available. I would never borrow for furnishings. The house will grow in value so by the end of the 25 years the 75k you have paid just in interest will likely be surpassed by the growth in value of your house. The furnishings will be dead money, as nobody wants 25 year old carpets, paint, kitchens and furniture.

AluckyEllie · 13/12/2024 09:56

I would stick. Even if you have kids do you need a 5 bed? With additional study etc. I never like those turn around by a builder jobs because they are done on a budget to make a profit (understandably) and we looked round so many shoddy ones. I know you say you would redo it but that seems a waste, especially when you’ve done your house up to your taste. I would stay and maybe do the extension.

Enjoy having a much smaller (or no) mortgage, and you would be able to do some fantastic things as a family! Imagine the holidays, trips, days out you’ll be able to afford with no mortgage. You could significantly drop your hours at work if you wanted, afford excellent childcare. You would have a lot of freedom to choose with that financial position.

Narkacist · 13/12/2024 10:00

We were mortgage free until the kids started school and it was a huge weight off the shoulders during the nursery years. It also enabled us both to change careers/become self-employed and take a lot of time out of work while they were babies. You like your house and it seems big enough. A bigger house will also raise your living costs.
I would consider instead whether you can create the things you want in your current house (can you go into the loft?) or perphaps also think that the open plan kitchen trend will swing back at some point.

RoachFish · 13/12/2024 10:00

If it would be tight paying the bills in the bigger house without any dependents would it even be possible during parental leave and with childcare costs? You will also probably pay more council tax, gas, electrics with a substatially bigger house. There is no point in living in a big house if it means you can't afford to enjoy life.

CoastalCalm · 13/12/2024 10:02

Stay where you are 100% be mortgage free and see if another property comes up - sinking £100k into a fully renovated property is just throwing money away

Jinglesomeoftheway · 13/12/2024 10:06

Option 2, but I'd put all of the money against the house and live with the decor for now, and slowly decorate over the next couple of years in a far more relaxed manner as you earn income.

100k to decorate a house is mind boggling, that's full renovation cost incl kitchen usually

OldieButBaddie · 13/12/2024 10:12

That floorplan is the spit of our house (other than we have 2 bedrooms in the loft). I must say it's the nicest house I've lived in, there is room for us all and even in lockdown everyone had their own 'office' to shut the door on at the end of the day. I would buy the dream house but not pay £100k to decorate it, do the downstairs maybe then the rest gradually once you see the impact

We also inherited 300k from my uncle which we could have used to pay off the mortgage on our other house (which was a v nice 4 bed Edwardian terrace) but we figured as we were both earning good money we may as well leverage that, so we are now left with a house worth a lot more than the one we sold. I have no idea of your income or where you live but £200k is not a huge mortgage in London/SE at all. If you are young then your earning potential will likely increase too, my view when younger was that you should stretch yourself when buying a house as the value of the repayments will decrease effectively, though mat leave, nanny or nursery fees etc are not to be underestimated - have you researched the cost of this?

I guess there is also the possibility that you won't have children so how would you feel about it then? I guess it would be more affordable, but would you want a house this big.

KeepinOn · 13/12/2024 10:13

Mortgage free now, and then if you need to upsize in future, that money will be released via the sale of your property. Plus you'll have had the opportunity to save the money you would have spent on the mortgage.

I wouldn't purposefully get into more debt if I had an easy out like you have. Other houses will come along, maybe even this one will be up for sale again in a few years when you feel you've definitely outgrown your current house. And in the meantime you'll have enjoyed living without that debt.

UncertainWife · 13/12/2024 10:14

I'd stay where you are but not do it up. See how you feel when/if kids come along.

Save the money so you can send them to university comfortably! And/or so you can take time off work when they're little.

Financial freedom will give you more choices.

Sounds like the money is burning a hole in your pocket. Don't waste £100k on furnishings etc. Having kids is incredibly expensive, especially their teen years and uni years. Save the money for that.

ClivetheDestroyer · 13/12/2024 10:14

I say move but don't spend 100k on decorating, that's bonkers!
New carpets everywhere and some painting cannot possibly be more than 10k absolute max!

Givemethreerings · 13/12/2024 10:17

I’d move to the bigger house. Longer term planning, investment, space for growth.

SerenityNowSerenityNow · 13/12/2024 10:42

We've just made your option B move. But I suspect we're a bit older than you.....we should have made the move years ago but we were too cautious.

I really don't see how you will need £100k purely for décor and furnishings?
Our 5 bed detached needed serious renovations inc kitchen and bathrooms and we spent just under £100k. It wasn't even habitable to begin with!

irregularegular · 13/12/2024 10:47

You don't need the bigger house yet. You might never do. You might not have children. You might decide to move to a different area. The substantial costs of moving (stamp duty etc) will be sunk and lost forever in a way that improving your current home (assuming you do it sensibly) won't be. So I would invest in your current home for now, and move if and when you want the extra space in this location.

Only provisos are 1) if you think that the 5 bedroom house you are currently thinking of is a unique opportunity that you would really struggle to get close to if you wanted to move later, then it might be worth moving bow 2) you should improve your house in a way that you will get all or most of the value back if you think you might move later.

irregularegular · 13/12/2024 10:48

I'm also boggling at the idea of 100k to redecorate a just done up house!

IMustDoMoreExercise · 13/12/2024 11:28

I would go for option 2 and just replace the carpets.

Everything else can wait. No point in doubling your mortgage for furnishings.