Meet the Other Phone. A phone that grows with your child.

Meet the Other Phone.
A phone that grows with your child.

Buy now

Please or to access all these features

Property/DIY

Join our Property forum for renovation, DIY, and house selling advice.

Large bathroom reconfigured to a smaller bathroom, plus separate wc and and basin

13 replies

Mum5net · 04/11/2024 12:17

Property really good in all aspects but only has one very large bathroom.

No places to put in a separate cloakroom. Two wcs are a deal breaker but obviously not side by side!
However, before it is dismissed, this might sound crazy but is there space to reconfigure the super large bathroom?
It is a Victorian mid terrace circa 1900 with the bathroom being off a half-landing, with kitchen immediately below. There is no additional room to play with. Ideally, preferred result is a smaller a bath with shower over and a tiny wc room with wash basin but may have to accept that a shower room is all that's possible as need to add two doorways. Any suggestions or thumb nail sketches welcome.

Large bathroom reconfigured to  a smaller bathroom, plus separate wc and and basin
OP posts:
PinkCamelias · 04/11/2024 22:45

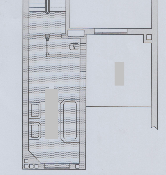
I have a large bathroom on a half landing too, in a house of similar age, @Mum5net .It has a separate toilet cubicle with a separate door. I think it was designed like this, because the doors look original. There is no toilet in the bathroom though, because there are others in the house (and bathrooms too), but there would be space for it. Have a look at the plan, maybe it will give you an idea? You could add a door and make a cubicle where your current storage is.

Large bathroom reconfigured to  a smaller bathroom, plus separate wc and and basin
Mum5net · 04/11/2024 23:01

Thank you. Good to see the proportions.
Quite an unexpected arrangement!
The difficulty is going to be the openings and access space.
i bit the bullet and spoke to a bathroom designer. He suggested a partition down the middle with one half having no natural light. That side could have a shower in corner then a wc and whb He suggested a corner bath, a wc and in the window side.
Thinking it might all be a bit silly and spoil a decent room.

OP posts:
PinkCamelias · 04/11/2024 23:09

Yes, I can imagine it could be challenging, if it’s retrofitted. Our loo has a tiny window, and the bathroom has two windows. I think it’s designed like this because it’s a custom here to have a separate toilet! The bathrooms that we added have a more standard arrangement.

Do you need/want a whole second bathroom, not just the loo? Perhaps the partition wall could have a glass top half to let in some light to the windowless part?

Mum5net · 04/11/2024 23:47

You sound like you have enough wcs!
Glass top a very good idea.
Rather than having two en-suite style arrangements, would be happy to
just have a wc and not second bathroom.

OP posts:
Twoshoesnewshoes · 04/11/2024 23:58

Here’s my brilliant professional plan 😂
I would remove the door to the landing
have a small loo with tiny corner basin to the left as you come off the landing.
door ahead to room with bath along the long wall with a shower over, it should all fit fine.

Large bathroom reconfigured to  a smaller bathroom, plus separate wc and and basin
Mum5net · 05/11/2024 00:01

Yes @Twoshoesnewshoes I think you have nailed it. I think that's what I want. Now to price it.

OP posts:
PinkCamelias · 05/11/2024 09:07

If plumbing were an issue with this plan, you could perhaps put a toilet on a wall where the bath is on @Twoshoesnewshoes' plan, so it is near the other toilet but behind the wall, and put a bath along the wall with the window. The wash basin should hopefully fit on the wall opposite the toilet.

Fridgemanageress · 05/11/2024 19:55

Isnt there an outside toilet still or at least the plumbing in a shed?

Our outside lav is a god send

Mum5net · 05/11/2024 22:27

Sadly, no outside toilet.
Haha @PinkCamelias if two people go together at same time they will need music on!

OP posts:
PinkCamelias · 05/11/2024 23:24

Mum5net · 05/11/2024 22:27

Sadly, no outside toilet.
Haha @PinkCamelias if two people go together at same time they will need music on!

I know :) The wall would need to be pretty solid!

Mum5net · 06/11/2024 13:05

House SOLD to a cash buyer. Game over .

OP posts:
PinkCamelias · 06/11/2024 16:44

Oh that's a pity @Mum5net! But I hope you'll soon find another house, and this time with enough toilets so you don't have to do extra work!

Mum5net · 06/11/2024 22:10

Yes, It’s DD’s search. But back drawing board. Thank you for helping.

OP posts:
New posts on this thread. Refresh page