Meet the Other Phone. Flexible and made to last.

Meet the Other Phone.
Flexible and made to last.

Buy now

Please or to access all these features

Property/DIY

Join our Property forum for renovation, DIY, and house selling advice.

Is my extension plan too adventurous?

70 replies

ThisLimeBiscuit · 28/10/2024 23:27

Hello ladies

i I am a silent lurker of mumsnet and cannot express my gratitude to so many of you for making me feel assured and not a failure through so many of my moments in life. Now I am stuck on another one and who better to ask than you?

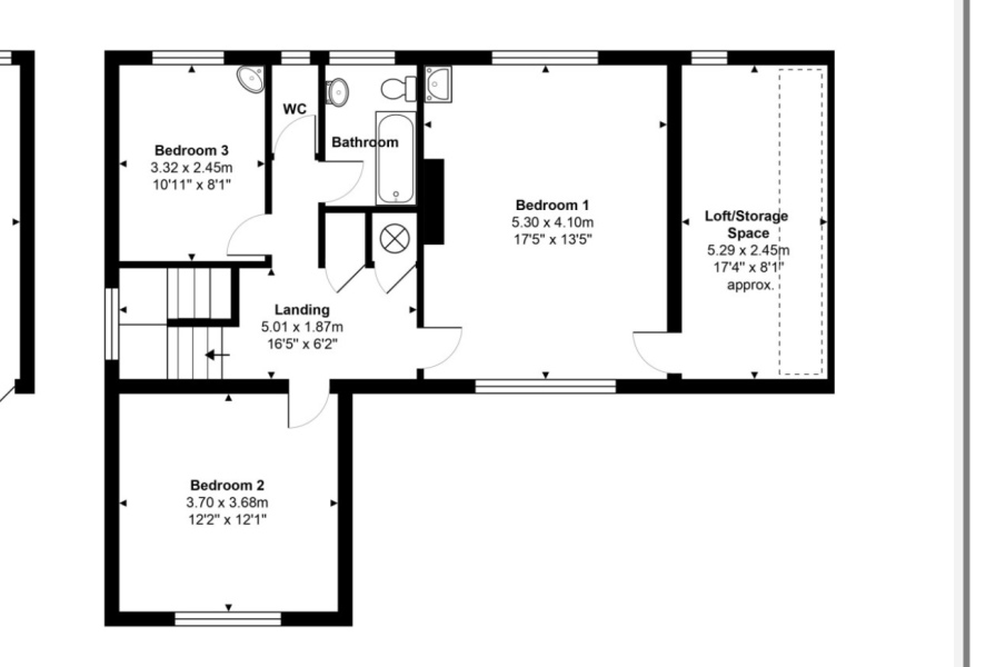
we bought a fixer upper 3 years ago and wanted to live in to see what doesn’t work before embarking on extensions/ renovations. My dream plan is below….before I venture out and have my dreams shattered, I though I would ask you ladies if I am being too adventures and will ultimately face rejection? My current house plan vs my dream house plan….please be honest and wake me up from my dream 😂

Is my extension plan too adventurous?
Is my extension plan too adventurous?
Is my extension plan too adventurous?
Is my extension plan too adventurous?
OP posts:
tigerbear · 28/10/2024 23:42

Hi OP, I don’t quite understand the question.
what do you mean by rejected? By whom?
Do you mean by planning control?
If so, the simple answer is, the only way you’ll know is to submit your plans to the local authority for approval.
Also, do you have finance in place to actually do the work? Have these plans been drawn up by an architect or structural engineer?

MrsMoastyToasty · 28/10/2024 23:46

The dining room doesn't have any windows.

StillSeekingResponsibleAdult · 28/10/2024 23:56

I find the layouts a bit odd, which is fine if you're doing this as a forever home and can throw money at making it exactly what you want. However might be tricky if you ever need to sell.

Upstairs you have 2 ensuite bedrooms and then 1 non ensuite and a bathroom. I'd much prefer 4 bedrooms, with only 1 ensuite. This is a more normal layout for a family house so the kids don't argue about who gets the better room. The downstairs is huge and probably more in keeping with a 4 bed house.

I don't like the dining room with no windows, if you have a big open plan kitchen/ diner/ living a separate dining room seems a bit odd anyway, let alone squeezing in one which will be a completely internal room.

I like a downstairs loo and would happily lose one of the extra rooms for that.

Angrymum22 · 28/10/2024 23:58

Dining room has double doors onto a narrow corridor.
Swap the playroom with the utility and make a decent cloakroom of the main entrance. Add the dining room to the lounge to make a decent living space. You could have sliding doors to section off an area as a playroom but you won’t need it forever.
such a big house needs four bedrooms. If you have a walk in wardrobe the actual bedroom doesn’t need to be as large.

parietal · 29/10/2024 00:03

Downstairs is too big and the small windowless dining room is bizarre. Also the tiny playroom - I can't imagine kids wanting to spend time in there.

More bedrooms, less downstairs and more balanced room sizes would improve it

BreadInCaptivity · 29/10/2024 00:16

The house is very bottom heavy and unbalanced.

As pp's have suggested you'd be far better off with 4 bedrooms and only one en-suite.

The dining room will become a bit of a dark dumping ground.

I'd knock the playroom and that together so you get light in - remember you won't need a playroom forever so that in time could become a dedicated dining room if you want.

I'd also suggest that the whole back extension is massive in comparison to the current footprint. You may struggle with planning and I'd question how much garden you are going to lose/have remaining.

If you have a huge back garden then maybe not an issue but if it leaves a small garden then that's not attractive for a family home.

Tbh it look like you've drawn this up and the whole house just don't really flow properly or balance.

This is why if you are planning a massive revision you really need to invest in an architect.

If you do, you'll also be surprised at where they can find existing space from the current footage and seamlessly incorporate a new extension.

As stands it feels like you've drawn up what's perfect for you now without thinking longer term about your needs and also re-sale and I think it's likely to be less a dream and more of a folly if I'm honest.

Admire your ambition though :-)

ThisLimeBiscuit · 29/10/2024 00:47

Thank you ladies…so much appreciation for your honesty!

And yes you are right, it’s my own doodling before we go to planning and architects because I wanted to know if it’s something that’s doable. I have taken the constructive feedback about the dining room and will be thinking on that!

sorry forgot to say that there is a second floor too with 2 bedrooms and a jack and Jill bathroom and a store room. It’s quite a large plot with a big garden however the house itself is quite small and doesn’t work for us because it just lacks storage. We don’t have a downstairs loo or anywhere to put our hoovers or children’s bags and shoes…it’s currently very cluttered and keeps me in a constant state of anxiety as I like organisation. The washing machine and dryer are stacked up just outside the kitchen in a 3ft by 5ft space. We currently have the fridge in the room being used as the dining room as the kitchen layout isn’t very friendly and can’t put anything in there.

maybe that’s why I have filled the house with rooms! Storage! I really want a pantry to the kitchen and honestly feel that utility works ideally when it is attached to the kitchen…just my two cents.

once again, thank you so much for your advices and feedback…I appreciate every single comment! As for the budget, currently thinking if it’s doable in 200000- 300000…as that’s what we might be able to spend…

OP posts:
ThisLimeBiscuit · 29/10/2024 00:47

I meant planned second floor!!! All in all it would be a 5 bedroom house!

OP posts:
BreadInCaptivity · 29/10/2024 01:08

Ok that makes more sense if you have another floor with two additional bedrooms.

I'd still say the ground floor doesn't work that well as you have planned it.

This really where you need an architect who will asked you about how you plan to use the house now and in the future.

I see a lot of properties with "a big box" on the back which is what you have.

They look great on photos but to live in can be very echoy and soulless.

The whole dining/playroom compromises both spaces. The playroom is small (so the kids won't use it) and the dining room is basically just a very big cupboard and that's how it will end up being used.

You are also losing a lot of space with hallways.

You are still looking at the space from a new/old perspective. So maybe consider the kitchen/diner/family being front to back (or L shaped) rather than contained in the extension.

We had an architect look at our period quirky house and a redesign of the staircase alone yielded far more space than we could have ever anticipated...and that's before he found additional space over the kitchen to massively expand the family bathroom. Change some doorways etc and the transformation was incredible and way beyond what we could have thought of ourselves.

It's things like this as a non professional you just can't see.

BlankTimes · 29/10/2024 01:08

It's interesting and different, if you think this will work for you and your family, go for it. You are the ones who will be living there so have exactly what you want.

Just a couple of first thoughts, Why the 2 lots of double doors into the dining room but no direct access from the kitchen. Maybe a rethink of how far you'd walk taking crockery then food then collecting plates afterwards etc.

Why have a lot of the doors upstairs opening the "wrong" way, i.e. to access the rooms off bedrooms you are opening the doors towards you, instead of opening the doors into the bathrooms, dressing rooms etc.

I wouldn't have a door from the garage directly into the house, reason being security and fumes. Also, maybe show where the entrance to the garage for vehicles is 😊

FlingThatCarrot · 29/10/2024 01:26

Agree the dining room looks awful. You won't use it when you have so much more space and light at the kitchen table. Playroom also looks uninviting. I'd make the playroom into a laundry room accessed from the hallway. Dining room into a playroom with double pocket doors opening into the big backroom- kids can see you but you can shut it off to hide the mess and it later is perfect for teenage cinema/ hangout.
Then take some of your utility room into a pantry, opening into the kitchen and the other half can make more of a boot room space at the bottom of the stairs.

The entrance of the house feels very pokey too for such a large property so would pinch some of the office space to widen it or at least add a large porch.

Downstairs loo also looks very pokey for such a large downstairs- I'd want that larger.

All your windows look too small and then too make double doors opening onto thin corridor.

FlingThatCarrot · 29/10/2024 01:32

Actually with all that space and there being an extra floor I'd put the laundry on the first floor. There's no need to be carrying everything downstairs. 5 bedrooms- that's 5 sets of bed linens up and down, towels and of course clothes.

Then you could have the office as a grander entrance with a bootroom and larger WC. Playroom could be the office or even the utility space but opening onto the stairs. Dining room become the playroom.

Is the office a full time office or just 1 day a week type thing?

mm81736 · 29/10/2024 01:33

It is very difficult to follow when the old snd new plans for the same floor ate nit side by side The stairs dont appear to work- there's nowhere to get on and off them upstairs
Are you planning to extend forwards, that is usually quite dicey.Also you dont seem ti have paid any regard to how the upstairs walls are going to be supported when you change the downstairs layout

Seaside3 · 29/10/2024 07:39

Why not just buy a more suitable house? You're extending front, back and up o think? Seems easier and probably cheaper ans definitely less stressful, to move to a bigger home.

Seaside3 · 29/10/2024 07:43

Also, it looks like you're already in the loft, so you will need to raise the roof.

Bedtimewoes91 · 29/10/2024 07:56

FlingThatCarrot · 29/10/2024 01:32

Actually with all that space and there being an extra floor I'd put the laundry on the first floor. There's no need to be carrying everything downstairs. 5 bedrooms- that's 5 sets of bed linens up and down, towels and of course clothes.

Then you could have the office as a grander entrance with a bootroom and larger WC. Playroom could be the office or even the utility space but opening onto the stairs. Dining room become the playroom.

Is the office a full time office or just 1 day a week type thing?

100% this - we've just put our laundry upstairs and it's changed my life!!

Seeline · 29/10/2024 08:16

That looks a massive extension. It has loads of wasted space and doesn't flow.

I think you really need to speak to an architect who is familiar with your Council's planning policies. There may be issues with the overall size, depending on the designation of your area (green belt, countryside etc), as well as the impact on neighbours. There may be issues with the front extension. Without the second floor plan, it's difficult to see, but there may be issues with height and bulk.

Seaside3 · 29/10/2024 08:28

@Bedtimewoes91 ours is upstairs, has been for a couple of years. It's the best.

zaxxon · 29/10/2024 08:30

You call that a "small house"?! omg

LIZS · 29/10/2024 08:33

The dining room and playroom both look pokey and dark. Can you not open that up better? How old are your dc, will they even use a playroom? Will you get pp for effectively doubling the footprint and bringing the building line forwards? It feels unbalanced.

StillAtTheRestaurant · 29/10/2024 08:36

I think I'd move house rather than spend £300k on an extension!

Geneticsbunny · 29/10/2024 08:58

It is extremely unlikely that you will be allowed to extend forwards from the front of the house.
You are also planning to do so much work that it would probably be cheaper to flatten the house and start again.
I would either move to something more like what you want or look for a building plot?

Smidge001 · 29/10/2024 09:05

It seems an awful lot of bathrooms. So much cleaning! 3 bathrooms for 3 bedrooms seems really unnecessary. And 4 bathrooms for 5 once you add in the 2nd floor! How often is it that everyone wants a bath/shower at exactly the same time that you can't just share... (and would there be enough hot water / pressure to cope anyway?)

TiredCatLady · 29/10/2024 09:11

Rear Ground floor extension that is effectively the whole footprint of the house again.
Front two storey extension to add bedroom plus new reception room and garage.
Plus 2nd storey/loft conversion to add 2 x beds 1 bath extra.

New kitchen.
3 x new bathrooms upstairs plus downstairs toilet plus likely refit of existing bathroom.
Bifold doors half the width of the house.
New windows?
Change of heating system as your existing might not handle that much additional space.
Complete redecoration.

And then planning permission, architect, electrics and probably a complete garden remodel on both sides as the builders will trash them. And everything else.

And accommodation for you to live in for 6+ months while the works are done.

£200-300k is… not even close.

It would probably be more cost effective to flatten it and start again. Or just move. Although to be honest, the size of the extensions plus the modification to the front elevation, I’d be surprised if PP was even granted.

Tupster · 29/10/2024 09:12

Was just also coming to say that front extensions are rarely approved - especially if you are completely changing the character of the property from the current L-shape to a flat front. I'd also question whether you have enough garden at the back to take such a big extension. I think if you need a house that much bigger than what you have now, you should just move house.

Swipe left for the next trending thread