Meet the Other Phone. Only the apps you allow.

Meet the Other Phone.
Only the apps you allow.

Buy now

Please or to access all these features

Property/DIY

Join our Property forum for renovation, DIY, and house selling advice.

Extension - open plan layout ideas?

12 replies

LouTheMac · 05/10/2015 13:37

Planning our extension. Luckily neighbours have already done it & we are planning on the same footprint but different layout inside (we do not want a garage).

Would like an open plan kitchen / diner with some living space (not huge but enough for seating area/TV) all in this open plan space. Need to fit a utility & down stairs loo in somewhere. The only way I can think this can happen is if the loo is off the utility.

Have attached the neighbours plans & highlighted the space in red that we would have open plan. Where do I put the utility/loo? Where would you put kitchen/dining table/seating area? Would like to think I can fit an island in.

I am thinking that where the "lobby" is I would make the utility area with a door to a small toilet (no shower as on the plans)
Kitchen would roughly be in the same place
living space would be in garage area
What is the utility would be doors to outside.
We have a nice view out the front so reluctant to put utility at the front of the house.

If anyone has any other ideas I would love to hear them! I do have an architect coming next week but would like to give him an idea.
Extension is highlighted in red. blue dash line is the existing house.

Extension - open plan layout ideas?
OP posts:
Herhonesty · 05/10/2015 14:23

can you not keep the utility where it is and move it along to the left slightly, and have a door going onto a toilet?

OnePlanOnHouzz · 05/10/2015 15:08

Is this single storey ? Or double height ? As soil stacks can dictate loo positions - so would need to consider bathroom placement upstairs too while considering downstairs positioning . ( it's like a rubics cube !! )

LouTheMac · 05/10/2015 20:38

Yes good point OnePlan. The current bathroom is above the hall. The new ensuite will be above where the utility is on current plan.

OP posts:
LouTheMac · 05/10/2015 20:40

Thanks HerHonesty I am a bit reluctant to keep the utility where it is as will block the view out to the garden.

OP posts:
Herhonesty · 05/10/2015 22:02

sorry i am unclear - the back of house has a nice view, so does the front of the house, so actually, your only option is the middle of the house in which case whatever you do you will end up with a sort of u shape, as it currently stands?

is an option to have front door and lobby at the far right hand side and a utility/toilet off it? ie where the garage is?

LouTheMac · 05/10/2015 23:10

Yes Exactly, we front onto a villiage green, garden nothing special but assume we will have doors out to patio etc.
do you think the U shape would be a crap layout?
Because we are in a conservation area we are really restricted on what we can do at the front so I dont think we could move the front door. Ideally would love a bigger hall with downstairs loo off.
I really need to get in this persons house, out of all our neighbours i dont know him at all and never bump into him. It seems rude to knock and ask for a look!!

OP posts:
OnePlanOnHouzz · 06/10/2015 10:19

I have a trainee in today - and we looked at your project - hope you don't mind !! This was our suggestion ... We figured you'd need a support column where the old corner of the house was ... So drew it in approximately... We also figured washing machine and tumble dryer was essential but didn't need to take up a whole room - so added a laundry cupboard with sink and raised appliances with shelving above and storage below. Thought a loo was necessary still - so popped one in under the ensuite for easy of soil waste etc. And laundry sink backs onto basin so all plumbing together here.

In kitchen we've put a range cooker, integrated fridge and freezer flanking the range run - with space to allow curtains for large doors to go down the side - added an enormous pantry cupboard run on the back wall - placed an island with DW and sink and drawer storage and shallow storage at rear with raised breakfast bar ... Suggested tweaks to this would be to add in a bin cabinet with recycling space - probably replacing one of the drawer cabinets in island - and maybe adding a wine cooler somewhere - but this was just a quick exercise to see what we thought you could fit in - drawn to scale - scaled off the original you uploaded ...

Oh and then we played about with colours ....

Extension - open plan layout ideas?
Extension - open plan layout ideas?
OnePlanOnHouzz · 06/10/2015 10:25

I should add that this was drawn with a basic iPad software - not our pro software ! It's a bit basic in comparison - but gives you an impression of the space you have ok ! Smile

IAmABeachWave · 06/10/2015 10:26

Really want to look at this thread not on a phone to see One plans ideas! I love a food floor plan

LouTheMac · 06/10/2015 20:20

Oh wow oneplan this is amazing thank you! My husband is shocked he didn't even know what mumsnet is until now!! Even using the basic software it makes a big difference being able to see how the layout works in 3d. Thank you so much to you & your trainee! Loving all the kitchen detail & the post which I am sure we will have.

The only thing I think I would change is I just don't think you can have a loo directly off a living space so would need to find a way of it being off the utility.

I will be sure to keep this post going & upload plans as we get them!

OP posts:
OnePlanOnHouzz · 06/10/2015 22:01

You are welcome !
Re toilet off a living space... the old two door reg was changed some years ago - but if you wanted a lobby anyway - you could put a divide in the dining area to conceal the entrance.

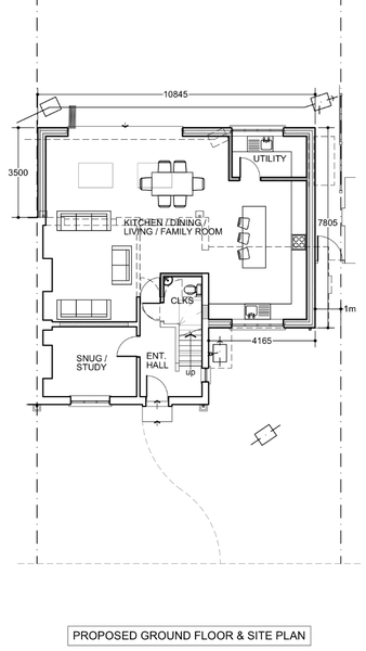
LouTheMac · 11/02/2016 22:19

Promised I would update. Here are our latest plans.

Decided to fully embrace open plan living and knock through to the lounge as well so a much bigger space now so previous issues with utility / toilet etc have gone away.

I think this will work for us but have never really had an open plan living space before so any tips would be good. Have tried to put the kitchen sink as far away as poss from the sofa area for when I don't want to look at it!

I need to feed back to the architect on this draft so any comments welcome!

My current thoughts are increase utility width so it's equal to the opposite kitchen wall & put a door to get straight outside from the utility room.

Above it we are putting master bedroom / ensuite on the side only.

Extension - open plan layout ideas?
OP posts:
New posts on this thread. Refresh page
Swipe left for the next trending thread