Meet the Other Phone. Child-safe in minutes.

Meet the Other Phone.
Child-safe in minutes.

Buy now

Please or to access all these features

Property/DIY

Join our Property forum for renovation, DIY, and house selling advice.

Help with master ensuite loft room layout!

35 replies

Falcon1 · 07/01/2026 11:02

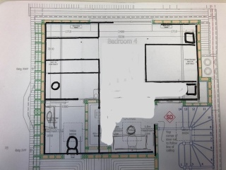
We are planning a master ensuite loft room extension. It's currently looking like the bedroom will be much wider than it is long. See photo. We love the idea of lying in bed looking at the view of the garden, hence the configuration as it is. But it means that at the end of the bed we'll only have 65cm of clearance (once you account for the bedframe), compared to 1.5m on either side of the bed. Will this look odd and/or feel tight at all? The idea is that we'll have floor to ceiling windows, which should help. The room off the back of the bedroom will be a kind of walk in wardrobe (was going to be larger but compromised the ensuite too much). If anyone has any ideas for a better configuration, they would be gratefully received!

Help with master ensuite loft room layout!
OP posts:
Thread gallery
6
Rollercoaster1920 · 07/01/2026 11:40

Why not put the ensuite in the top right of your picture? Then the bed headboard wall could move much further back.

Also consider the floor to ceiling glass. A neighbour did this but now has their blinds down all the time because whilst they can see out, many more houses can see in! There is no privacy!

Falcon1 · 07/01/2026 12:52

I think the sloping roof at the front of the house would be an issue if we did that. In terms of the floor to ceiling glass, we are very far from other houses and well sheltered in terms of trees so I think it will be fine.

OP posts:
BrownTroutBluesAgain · 07/01/2026 16:38

Can’t see the dims for the shower room
Can you make it slimmer say 1200mm
It would make the depth ( wall/window) bigger in the bedroom.

Help with master ensuite loft room layout!
Help with master ensuite loft room layout!
TheOtherBear · 07/01/2026 16:42

I think because of the walk-in wardrobe location, that 65cm will start to feel very tight, very quickly, sorry. Because there's going to be a lot of walking around the bed to get to the wardrobe and back (getting dressed in the morning, getting any extra clothes / PJs for bed, putting clean clothes away after laundry, outfit changing for exercise / uniform, etc.).

I think if there was nothing to get to on the other side (apart from one person getting into bed), then it would be fine.

Another tiny point, but just because I saw it - you should definitely make sure the door to the bedroom opens the other way! As it stands, it gives very little privacy to the room. Doors are better when they open to reveal the room, rather than give you a glimpse in when even ajar.

BrownTroutBluesAgain · 07/01/2026 16:49

TheOtherBear · 07/01/2026 16:42

I think because of the walk-in wardrobe location, that 65cm will start to feel very tight, very quickly, sorry. Because there's going to be a lot of walking around the bed to get to the wardrobe and back (getting dressed in the morning, getting any extra clothes / PJs for bed, putting clean clothes away after laundry, outfit changing for exercise / uniform, etc.).

I think if there was nothing to get to on the other side (apart from one person getting into bed), then it would be fine.

Another tiny point, but just because I saw it - you should definitely make sure the door to the bedroom opens the other way! As it stands, it gives very little privacy to the room. Doors are better when they open to reveal the room, rather than give you a glimpse in when even ajar.

Bedroom door can’t open the other way ( to hall ) for building regs
There would need to be a 400mm extra depth on the landing before the last stair riser.

If you mean open right to left into the room then ignore my comment

although I think this swing would make it all feel too tight

Willowskyblue · 07/01/2026 16:54

I think 65cm is too tight too. I’m currently in bed in my loft room and there is 1m clearance between the end of the bed and the wardrobes. With the bedcover spilling over, I wouldn’t want it any narrower. As it is I kick the bedcover under the bed to stop tripping over it.

If you are both facing, caution re full length glass. Next door has it and it’s got green moss etc growing on it that they can’t shift. Looks awful. They also have their blinds down the whole time as when the lights are on, you can see everything.

Falcon1 · 07/01/2026 16:56

Thank you for your responses!

@BrownTroutBluesAgain The dimensions of the bathroom are 2.5m x 1.8m - I guess we could make it much skinnier and longer? If we lose the extra walk in wardrobe we'd have 4m of space. Might seem an oddly skinny room though?

@TheOtherBear That's a good point about getting round the bed to get to the wardrobe. Hhmm. And take your point about the door - I was thinking it wouldn't be nice for (I'm that side of the bed) to be so exposed.

If anyone has alternative ideas for the layout I'd be very grateful. We've been struggling with this for months!

OP posts:
Falcon1 · 07/01/2026 16:57

@Willowskyblue That's really helpful thank you. What's the moss caused by, do you know?

OP posts:
Willowskyblue · 07/01/2026 17:06

@Falcon1 I imagine the lack of sun over winter from being north facing. Our rear veluxes have gone green in the past few weeks so will need a clean but they are accessible.

Falcon1 · 07/01/2026 17:08

@Willowskyblue Ah right ok - we are South facing so should hopefully be ok! In terms of privacy, we're not overlooked

OP posts:
BrownTroutBluesAgain · 07/01/2026 17:09

1.8m is nice to have but personally I’d rather that 600mm added to the end of the bed
650 is tight

itsthetea · 07/01/2026 17:10

i look out of my window although the bed doesn’t face the window - and the direction is perfect as there would be houses the other way but I get to see beautiful sunset

so bed doesn’t need to face ten window to enjoy sitting in bed and looking out

BrownTroutBluesAgain · 07/01/2026 17:12

I’d put the bed on the left wall but as you want to be in bed looking out of the window there’s no other location
unless you put a roof light in to look at the sky instead

user593 · 07/01/2026 17:14

65cm is too tight in my opinion. We thought about doing a similar layout but ended up moving the bathroom to the front so it would also have a window. I think you have more space to work with though than we did.

Falcon1 · 07/01/2026 17:28

Thanks all, this is really helpful. I was really hoping that 65cm would be ok but I feared I was kidding myself - this has confirmed it!

OP posts:
TheOtherBear · 07/01/2026 19:09

Falcon1 · 07/01/2026 17:28

Thanks all, this is really helpful. I was really hoping that 65cm would be ok but I feared I was kidding myself - this has confirmed it!

This might be really stupid, but could it be as simple as having the walk-in wardrobe before the en-suite and you walk through it (with it on either side) to get to the bathroom?

Isn't that how Carrie had it in SATC?

So you keep the bed where it is, but flip the wardrobe and en-suite round, with both behind the bed. And so it's still only 65cm at the end of the bed, but now it's just being used for someone to walk round it to get into bed / out of bed.

TheOtherBear · 07/01/2026 19:12

Like this...

Falcon1 · 07/01/2026 19:53

We’d still need to get to the wardrobe on the left side of the bedroom though.

OP posts:
TheOtherBear · 07/01/2026 20:03

No, I mean like this - might need to wait for the picture to upload....

Help with master ensuite loft room layout!
newrubylane · 07/01/2026 20:15

I think you could do with another 10-15cm at the end of the bed if you can squeeze your bathroom down a bit. A standard doorway width is 762mm, minimum guideline is 750mm, and I'd imagine any main path of travel smaller than that would feel a bit squeezed.

Falcon1 · 07/01/2026 22:06

Thanks for the design @TheOtherBear. My DH has vetoed accessing the bathroom that way! Another option he’s proposed is to have a bed that has a much slimmer frame - ours currently comes out 223cm because it’s got a sloping headboard. We could get 20cm back by having one right up against the wall. Might still be tight though and would be less comfy to lean against.

OP posts:
Falcon1 · 08/01/2026 13:48

For anyone out there still interested, DH has had a go at different floor plans. Opinions gratefully received!

In the one with the bed at an angle rather than facing the window, the top left is where the walk in wardrobe would be, front left the bathroom, then the space next to the bathroom at the front of the house (where the roof slopes) would be for my dressing table.

Which one do people think works best?

Help with master ensuite loft room layout!
Help with master ensuite loft room layout!
OP posts:
BrownTroutBluesAgain · 08/01/2026 15:40

Falcon1 · 08/01/2026 13:48

For anyone out there still interested, DH has had a go at different floor plans. Opinions gratefully received!

In the one with the bed at an angle rather than facing the window, the top left is where the walk in wardrobe would be, front left the bathroom, then the space next to the bathroom at the front of the house (where the roof slopes) would be for my dressing table.

Which one do people think works best?

The one on the right doesn’t achieve your desire to look straight out of the window and in fact the new view will be cupboatds and doors.

The one on the left is better but
the WC restricts access to shower
In fact in both the shower layouts your dh has put the WC on a seperate wall to the whb. I’d put them together as they work better that way and it reduces pipe runs and expense plus you get extra layout space as the worktop can run over the WC.

In terms of the first layout upthread it gave an option for someone ( not you and dh) to use the toilet as it was accessible straight off the stairs. These two new options aren’t as flexible. Worth a thought if you envisage the need ever.

BrownTroutBluesAgain · 08/01/2026 15:54

As I hate showers with sloping ceilings I’d do this
you also get the option of a small window in the en-suite ( or even a full ht opaque glass window to match the ht of the larger bedroom one….lovely)

Obv you can move the wall behind bed back to give more space

Help with master ensuite loft room layout!
Falcon1 · 08/01/2026 18:11

I don’t think we can have the bathroom at the back of the house due to the waste pipe. Our neighbours have done it but had to have macerating toilet which I really don’t want.

OP posts: