Meet the Other Phone. Only the apps you allow.

Meet the Other Phone.
Only the apps you allow.

Buy now

Please or to access all these features

Property/DIY

Join our Property forum for renovation, DIY, and house selling advice.

Sorry another floor plan… awkward shaped rooms and a long list of requirements!

28 replies

BigRenoLittleBudget · 08/04/2025 20:41

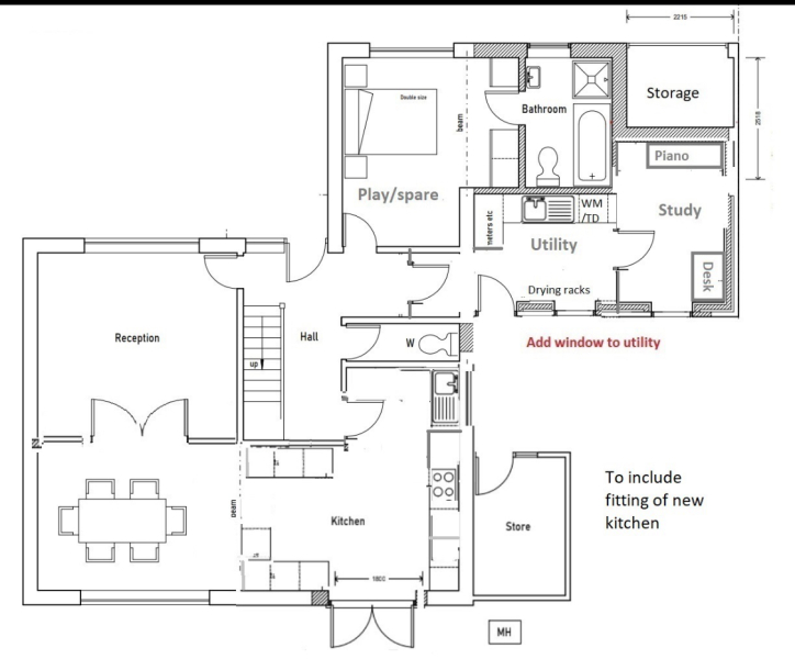
We are currently planning a garage conversion and internal alterations to allow for a kitchen/living/dining. Attached is our current latest version but I’m struggling with a few things still. I’ll also post the current floor plan if I can.

We would like several spaces:
Open plan kitchen living area
utility room
Study
Downstairs bathroom
spare room/guest room may eventually become granny annexe or teenagers bedroom in future
play space

Ideally also
doors from kitchen area to garden
some seating in kitchen area
separate loo so guests don’t have to go through downstairs bedroom to use downstairs bathroom
easy outdoor access to utility
retain some garage storage for bikes etc

Storage room is not that big and will be expensive to convert due to huge concrete slab to be dug out. We may also knock it down to do a side extension in future but that’s not currently affordable.

Grateful for thoughts/ideas! Particularly on kitchen layout. Thank you

Sorry another floor plan… awkward shaped rooms and a long list of requirements!
OP posts:
Thread gallery
5
BigRenoLittleBudget · 08/04/2025 20:45

Current floor plan… sorry the orientation is switched

Sorry another floor plan… awkward shaped rooms and a long list of requirements!
OP posts:
QuirkInTheMatrix · 08/04/2025 20:57

My drawing skills on an iPad are shit but here you go. I’d remove the downstairs loo. Swap the study and utility around and put a loo in the new utility. Make the hallway smaller and then the kitchen is bigger. Knock down the wall between the dining area and sitting area so it’s more open plan.

Sorry another floor plan… awkward shaped rooms and a long list of requirements!
QuirkInTheMatrix · 08/04/2025 20:59

Oh sorry, when I started I could only see your first pic which I thought was the current floor plan. Ignore my post 😁

QuirkInTheMatrix · 08/04/2025 20:59

I’d spent a while arsing around asking AI to do something but it was all a bit shit. 😁

BigRenoLittleBudget · 08/04/2025 21:06

QuirkInTheMatrix · 08/04/2025 20:59

Oh sorry, when I started I could only see your first pic which I thought was the current floor plan. Ignore my post 😁

Hahah oh bless you thank you!

OP posts:
GoatCatTaco · 08/04/2025 21:06

Not convinced by the study through the utility. Studies are quiet, utilities are noisy....

Which store can't be converted due to plinth? Could the utility go in the one next to the new kitchen. I think the expense of digging it out will solve all sorts of issues with the bedroom/utility/study area.

BigRenoLittleBudget · 08/04/2025 21:06

QuirkInTheMatrix · 08/04/2025 20:59

I’d spent a while arsing around asking AI to do something but it was all a bit shit. 😁

My DH also asked AI to do it and it got extremely confused 😂

OP posts:
vrouge · 08/04/2025 21:10

Can you move the door into the kitchen to open next to the stairs and turn that whole u-shaped space into a walk in pantry for all the storage which means less units needed in the kitchen (we've got a similar sized space for our walk in pantry with a pocket door and it has a door to the outside an l-shaped open cabinets/shelving which holds so much). Keep the doors to the garden in the dining space and keep the sink where it currently is with the window so you can then pop in an island with seating running horizontally?

BigRenoLittleBudget · 08/04/2025 21:10

GoatCatTaco · 08/04/2025 21:06

Not convinced by the study through the utility. Studies are quiet, utilities are noisy....

Which store can't be converted due to plinth? Could the utility go in the one next to the new kitchen. I think the expense of digging it out will solve all sorts of issues with the bedroom/utility/study area.

Yes it’s not ideal to have to walk through the utility but better than the other way around… once you’re in the study you can shut the door and stay in there without anyone disturbing you.

The storage room that is on the side of the kitchen would be expensive to convert for various reasons (high floors that need digging out, fragile brickwork, asbestos in roof, solar boiler in situ with myriad of complex pipe work and electrics etc) and in around 5-7 years we hope to be able to knock it down and do a side extension. So don’t want to spend the best part of 15-20k converting it only to then later knock it down again!

OP posts:
BigRenoLittleBudget · 08/04/2025 21:11

vrouge · 08/04/2025 21:10

Can you move the door into the kitchen to open next to the stairs and turn that whole u-shaped space into a walk in pantry for all the storage which means less units needed in the kitchen (we've got a similar sized space for our walk in pantry with a pocket door and it has a door to the outside an l-shaped open cabinets/shelving which holds so much). Keep the doors to the garden in the dining space and keep the sink where it currently is with the window so you can then pop in an island with seating running horizontally?

Thanks @vrouge i was following your description until you got to the island bit. Where would that go? Like the idea!

OP posts:
fabricstash · 08/04/2025 21:16

i would have door to kitchen straight ahead. So you can flow into room to a breakfast bar. Deffo do not want to see sink as first thing when coming in to Rio. Can you switch study & utility with spare room? Then study will have an eye on the door. Spare room will be more private

fabricstash · 08/04/2025 21:18

Or as someone says above section that bit off the kitchen. Perfect as a utility as has a back door

22mumsynet · 08/04/2025 21:24

I concentrated on this kitchen part and think this makes better use of the available space. The corridor to the kitchen is dead space and the doors stop a run of units are aren’t necessary if there’s doors in the dining area.

Sorry another floor plan… awkward shaped rooms and a long list of requirements!
vrouge · 08/04/2025 21:27

BigRenoLittleBudget · 08/04/2025 21:11

Thanks @vrouge i was following your description until you got to the island bit. Where would that go? Like the idea!

Just above and to the left of where the word kitchen is on the plan so if you move the doorway you basically walk in and see some chairs - depending on space of course but you can get small prep islands. Or the breakfast bar idea like someone suggested but move in your current plan by one unit so the seating won't impede on the dining area

BigRenoLittleBudget · 08/04/2025 21:44

fabricstash · 08/04/2025 21:18

Or as someone says above section that bit off the kitchen. Perfect as a utility as has a back door

A few people have suggested this but I’m just not sure it’s quite big enough for a utility room. Maybe I am a bit odd but I like a generous space that has enough room for a couple of drying racks as well as sink, TD/WM and ideally a bit of storage for hoover etc. It’s definitely big enough for a utility area in theory as it’s 4 units wide and could stack TD/WM but by the time you’ve added space for doors there’s not room for much else.

OP posts:
BigRenoLittleBudget · 08/04/2025 21:46

22mumsynet · 08/04/2025 21:24

I concentrated on this kitchen part and think this makes better use of the available space. The corridor to the kitchen is dead space and the doors stop a run of units are aren’t necessary if there’s doors in the dining area.

I love this but unfortunately there’s a big central column holding up the middle of the house right on the corner there around where the top corner of your island is so this would be straight in front of you when you walked in. You’d all end up with the slope of the staircase to the right hand side as this slope goes right through up to the doorway.

OP posts:
igotafeelingthat · 08/04/2025 21:52

BigRenoLittleBudget · 08/04/2025 20:41

We are currently planning a garage conversion and internal alterations to allow for a kitchen/living/dining. Attached is our current latest version but I’m struggling with a few things still. I’ll also post the current floor plan if I can.

We would like several spaces:
Open plan kitchen living area
utility room
Study
Downstairs bathroom
spare room/guest room may eventually become granny annexe or teenagers bedroom in future
play space

Ideally also
doors from kitchen area to garden
some seating in kitchen area
separate loo so guests don’t have to go through downstairs bedroom to use downstairs bathroom
easy outdoor access to utility
retain some garage storage for bikes etc

Storage room is not that big and will be expensive to convert due to huge concrete slab to be dug out. We may also knock it down to do a side extension in future but that’s not currently affordable.

Grateful for thoughts/ideas! Particularly on kitchen layout. Thank you

Personally I would swap kitchen and reception simply because I don’t want guests to enter the kitchen first. My kitchen is not the nearest. 🫣

Or make a hallway so dirty shoes don’t end up in the reception either.

Echobelly · 08/04/2025 21:56

I'd have study before the utility? It feels a bit odd to me to go through the utility for the study, the utility should really be an 'outer' room.

BigRenoLittleBudget · 08/04/2025 21:59

Echobelly · 08/04/2025 21:56

I'd have study before the utility? It feels a bit odd to me to go through the utility for the study, the utility should really be an 'outer' room.

For us the utility is essentially a laundry room. Not so much a boot/mud room. Maybe that’s just because we don’t have dogs or have kids who play muddy sports etc! So if DH was working from home and on Teams calls and so on it would mean I couldn’t get into the utility to sort washing without disturbing him. That was my rationale anyway. In the plans there is an outside door to the garden from the utility area so could still bring muddy stuff straight through if needed.

OP posts:
BigRenoLittleBudget · 08/04/2025 22:01

igotafeelingthat · 08/04/2025 21:52

Personally I would swap kitchen and reception simply because I don’t want guests to enter the kitchen first. My kitchen is not the nearest. 🫣

Or make a hallway so dirty shoes don’t end up in the reception either.

We did seriously consider this even though all the drainage is on the opposite side of the house. The room is just such a better shape for a kitchen diner. However I was then really struggling to make the lounge work as it would be the narrow space at the back and I couldn’t figure out a decent layout.

OP posts:
BigRenoLittleBudget · 08/04/2025 22:02

igotafeelingthat · 08/04/2025 21:52

Personally I would swap kitchen and reception simply because I don’t want guests to enter the kitchen first. My kitchen is not the nearest. 🫣

Or make a hallway so dirty shoes don’t end up in the reception either.

Oh sorry do you mean put dining space in the current kitchen and vice versa?

OP posts:
soupyspoon · 08/04/2025 22:06

You'll be wading through washing to get in and out of the study

BigRenoLittleBudget · 08/04/2025 22:18

soupyspoon · 08/04/2025 22:06

You'll be wading through washing to get in and out of the study

Yep true but it wouldn’t be a “public space” as such, most guests wouldn’t even go in the utility let alone the study. I don’t think it would bother me really (my main aim when WFH is hiding from the kids) but maybe I’m underestimating how much it would annoy other people which is something to consider for if/when we sell.

The issue with the garage conversion though is that unless we create a long thin corridor then whichever way you do it you have to walk through some spaces to access others. The bathroom off the bedroom is less of an issue as it obviously then has an ensuite feel but then we are a bit stuck for utility/study.

OP posts:
BigRenoLittleBudget · 09/04/2025 07:11

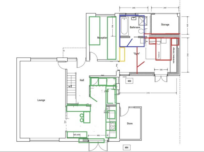
Been up since 5 with the baby 🫠 so have been mulling things over. Have concluded that we need to create a clear L-shaped kitchen diner either through sectioning off the top square of kitchen for utility as op suggested or possibly bathroom and then having long kitchen/diner across back of house with lounge at front OR could consider making long kitchen area by switching round and knocking through toilet and making that the long kitchen run with dining in the middle which then gives play/living space where current dining is and then still leaves room for lounge at front. Will try to add some drawings.

If I go with the second option it would mean utility at front of house in current family room with bathroom off this. How do people feel about a downstairs bathroom off a utility room?

Other option is to have bathroom separately accessed but then this creates a corridor in the garage conversion which seems wasted space.

OP posts:
BigRenoLittleBudget · 09/04/2025 07:17

This shows option without current loo. Utility moves to front of house shown with green units. Could have space for dining table instead where I’ve drawn breakfast bar. Then next to this a living/play space then perhaps insert doors to separate lounge at front.

this way you either have to access the bathroom through a door from utility which then leaves a big space for separate study/spare room/flexible room or you have to create a corridor as shown. Alternatively downstairs bathroom could be an ensuite to the large room in garage but then you haven’t got a separate downstairs loo.

Sorry another floor plan… awkward shaped rooms and a long list of requirements!
OP posts:
Swipe left for the next trending thread