Meet the Other Phone. Only the apps you allow.

Meet the Other Phone.
Only the apps you allow.

Buy now

Please or to access all these features

Property/DIY

Join our Property forum for renovation, DIY, and house selling advice.

Sorry another floor plan… awkward shaped rooms and a long list of requirements!

28 replies

BigRenoLittleBudget · 08/04/2025 20:41

We are currently planning a garage conversion and internal alterations to allow for a kitchen/living/dining. Attached is our current latest version but I’m struggling with a few things still. I’ll also post the current floor plan if I can.

We would like several spaces:
Open plan kitchen living area
utility room
Study
Downstairs bathroom
spare room/guest room may eventually become granny annexe or teenagers bedroom in future
play space

Ideally also
doors from kitchen area to garden
some seating in kitchen area
separate loo so guests don’t have to go through downstairs bedroom to use downstairs bathroom
easy outdoor access to utility
retain some garage storage for bikes etc

Storage room is not that big and will be expensive to convert due to huge concrete slab to be dug out. We may also knock it down to do a side extension in future but that’s not currently affordable.

Grateful for thoughts/ideas! Particularly on kitchen layout. Thank you

Sorry another floor plan… awkward shaped rooms and a long list of requirements!
OP posts:
Thread gallery
5
GoatCatTaco · 09/04/2025 09:09

I think that's a much better arrangement.

No problem with downstairs loo off utility - if you need rooms through a utility that is the best option.

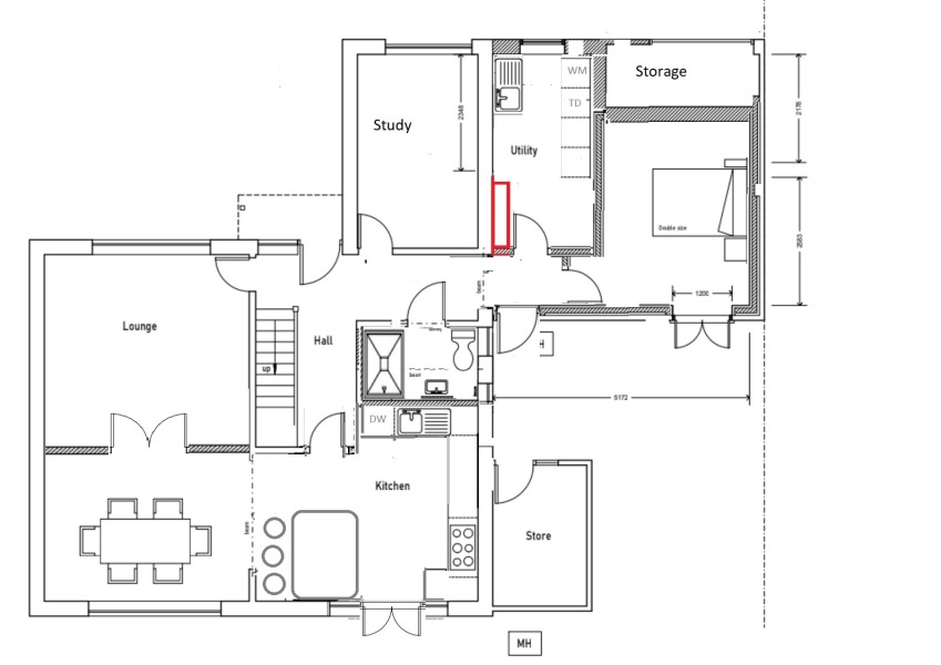
BigRenoLittleBudget · 09/04/2025 15:17

And another version, after much faffing in my lunch break.. the random red square is a consumer unit/gas meter cupboard

Sorry another floor plan… awkward shaped rooms and a long list of requirements!
OP posts:
BigRenoLittleBudget · 09/04/2025 19:48

Bumping for evening crowd!

OP posts:
New posts on this thread. Refresh page