Meet the Other Phone. Flexible and made to last.

Meet the Other Phone.
Flexible and made to last.

Buy now

Please or to access all these features

Property/DIY

Join our Property forum for renovation, DIY, and house selling advice.

What would you have in a utility room?

49 replies

ParadigmGiraffe · 28/07/2019 14:45

It’ll be about 3m by 2m.

OP posts:
Pipandmum · 29/07/2019 08:59

Shelves to store things like bed linen and towels. And ideally on the same floor as the bedrooms.
Not converting a side storage room in to a utility room is my biggest regret when redesigning my kitchen.

notso · 29/07/2019 09:16

A laundry chute would be my ultimate utility room goal.

In our previous one we didn't bother with a sink as it was so close to the kitchen and I spent years regretting it. So this time round we're having a nice big sink and a hose tap.

Heating is important if you want it for drying. Ours is converted from the garage, we're putting underfloor heating in to save wall space.

Storage. We're having large cupboards and a unit for a load of laundry baskets, one for each person, one for towels and one for sheets.

bebeboeuf · 29/07/2019 09:39

As someone who would love a utility the things I would put in there if I had one would be:

Ironing board
Vacuum
Washing Maching
Cupboard for larger appliances that I dont want out in the kitchen all the time
Space for a rain coats, backpacks, rarely used beach equipment, scooter and wellies

bebeboeuf · 29/07/2019 09:41

if I had a dog I would love it to have a dog shower, a stable door so i could contain dogs with the top part open if they had just got back from a muddy or wet walk and couldnt be released into the main house straight away.

ParadigmGiraffe · 29/07/2019 10:00

I'm definitely planning have a sink. for washing pet bowls and stuff that's just a bit icky.

I'd love to be able to have a little bit that is a boot room/wet outdoor coats etc and then going into dry and clean utility. But I don't think there's going to be enough space.

OP posts:
Gingernaut · 29/07/2019 10:04

Washing machine, dryer, clothes horses or clothes hangers, ironing space, everything needed for laundry and ironing, 'sluice' sink with bars for filling buckets and filters for dirt, space to put all the brooms, brushes, dustpans, buckets and mops and a drain area for wet clothes.

hopefullyhelpfully · 29/07/2019 10:06

We just spent yesterday designing ours! Belfast sink and draining board above a cupboard for cleaning supplies. Washer, dryer, plus ceiling hung big drying rack. Tall cupboard for mop/brushes/ ironing board etc plus some wall and floor cupboards where there's space. Worktop on top of the floor cupboard and washer drier. Big cupboards housing boiler and megaflo. We're using the same cupboards as the kitchen.

WellTidy · 29/07/2019 11:35

Ours is about the same size, but has two doors, opposite each other - so one door into it, and the other door to the outside. It makes the layout a bit awkward to plan.

But this is what we have in it and it all fits fine:

Washing machine
Tumble dryer
Sink and draining board
Cupboard for cleaning and laundry stuff (I seem to have lots of both
Another big cupboard which has kids paints and brushes, shoe polishes and brushes and cloths, sun cream, first aid basket
On (many) hooks, bags with swim kits, picnic rugs and sports kit bags
Other heavy duty hooks for hanging the ironed things when I'm in the middle of the ironing (rather than me hanging it on the back of doors etc and it all falling down)
Ironing board (the iron is wall mounted)
Three airers
Three (stackable) ironing baskets - one for hangers, one for things to be ironed, one for things which don't need to be ironed and are waiting to be put away
Vacuum cleaner, mop and bucket, dustpan and brush
Wellies - ours are stored upside down on the floor on a stand that is something like this but I would love to have them off the floor.

WellTidy · 29/07/2019 11:41

Just remembered:

I also have my peg bag on one of the hooks.

I also have sign similar to this for lost socks on the wall which is the most useful thing ever invented.

Ours is very functional in appearance - 70s style cupboards, stainless steel sink (which is full of stains that I have tried and tried to remove), plain white utilitarian wall tiles, old quarry floor tiles.

Writing out my massive list of what is in there, I realise how hard working our utility room is. I think it deserves a make over.

peachgreen · 29/07/2019 11:43

I love my utility room so much. Ours is tiny but we have washing machine, dryer (stacked), sink, dishwasher, high cupboards with all our cleaning and laundry products (away from the toddler!), jewellery cleaner, food waste bin, cupboard with pull out bins for general waste, glass and recycling and a whites soaking tub. OPn the wall I have the handheld hoover, dustpan and brush and the family calendar.

myoctopus · 29/07/2019 14:08

I love my utility room!

I have large sink with a spray tap.
Run of worktop with pan drawers underneath, cleaning products, baking products, Cat has his own drawer!
Tumble dryer, washing machine., drying rail with coat hangers
The old fridge freezer - the fridge bit is wine, beer mixers etc

Then a large Ikea pax wardrobe, one side holds the Hoover with the charger mounted, iron, ironing board etc . The other half has hangers for coats to get them out of the hallway and some wire drawers for wellies, scarves gloves that sort of thing!

It's brilliant!

Littlechocola · 29/07/2019 14:11

We have washing machine, dryer, freezer, sink and lots of storage. We also store the bikes in there on the ceiling.

chopc · 29/07/2019 21:21

@minipie your room can fit all that? Is it possible to see a plan as I may just re organize mine

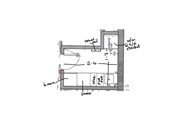
minipie · 29/07/2019 21:44

chopc here you go. Doesn’t show the wall cabinets which run above the base cabinets or the sheila maid which will hang from the ceiling. The alcove which the laundry machines sit in is stolen from the kitchen which backs onto the utility (it would have been a corner cabinet in the kitchen so not very useful)

What would you have in a utility room?
minipie · 29/07/2019 21:47

Oh and it also doesn’t show the slot for the ironing board which is between the sink and the wall (in front of the boxed in soil pipe).

minipie · 29/07/2019 21:47

(Not sure whether there actually space to iron in there mind you, we’ll see!)

chopc · 29/07/2019 22:00

@minipie thanks. Ok so you have an extra recess for wm and dryer........ unfortunately we don't have this so it will need to fit within the room

Rachelover40 · 29/07/2019 22:03

ImNotYourGranny
A comfy chair. I have a utility room in my basement. It's the coolest place in the house, has wifi and seems to repel every other member of my family. Perfect place for peace and quiet. My kids don't realise that sorting laundry doesn't actually take 2 hours. grin
--
Girl after my own heart!

soakedat3 · 29/07/2019 22:03

As part of our extension we are also extending the utility. Primarily to avoid having only the middle bit of the back of the house sticking out but also because we have 2 kids, a cat, a dog and a messy OH.

My dream is that nothing cooking related gets put in there but this may not work. We'll see.

However this is what I am having in ours:
w/m
t/d
extra large sink for dog washing (would love a dog shower but £)
tap with pull out shower nozzle
hanging space for shirts etc with shelves and space for laundry baskets
2 clothes hanging things attached to the wall
2 wall units
900 Under sink cupboard
Space under worktop for litter tray
600 broom cupboard for tall things with plug inside should we have a cordless vacuum in the future
small bench area stolen from the kitchen to sit with clothes hooks above
Maybe a small unit with drawers to put other hobby things (glue gun etc)

The builder keeps asking and assuming I will be ironing in there as they and OH keep saying it'll be huge. So huge that they have taken back 30cm of width for the main kitchen dining area. Grrr!!

78percentLindt · 29/07/2019 22:04

I have washing machine tumble drier, tall fridge, tall cupboard for vaccum cleaner, brooms, dusters, cleaning materials etc. 2 double cupboards for spare bulbs, batteries, spare plastic tubs and boxes candles ( we have a lot of power cuts) vases, first aid kit, washing powder etc, . A large sink and double cupboard under, with water softener, and space for buckets and spare bowls. We also have shelving for boots and gardening shoes, some recycling. I also have a shelf of old supermarket plastic shopping baskets they used to sell for those huge trolleys,and I store the attachments for the vaccum in one and pegs and those sock or bra hangers in the other. I also used to store the badminton nets and garden games on there as well. Washing baskets on the top.

minipie · 29/07/2019 22:34

Yes sorry chopc that alcove does make quite a big difference.

I’m hoping to have a sink with a removable cover so I can have a bigger surface for sorting laundry when not using the sink, but still figuring out how to do that.

Amber17 · 29/07/2019 23:23

@minipie That's a great idea to have a covered sink, never thought of that.

I finally have a utility in the new house but it's only 1.5x2m, hoping to fit the washing machine, ironing board, and a sink in there.

donutrehomer · 29/07/2019 23:30

I see a PP reply of Scullery Maid and I up that to a Mexican pool boy 😍😍 not only do I not have a pool, I can't even swim 😂😂

sliceofkate · 29/07/2019 23:48

Ours has washing maching & tumble dryer. A wall of kitchen units for dry goods, combi boiler. I keep my microwave there too to free up counter top space. The ironing board/iron. Hoover. A boot rack. Coat hooks and access to a downstairs loo!
Also the recycling gathers there before it goes outside.
And the petfood is kept there!
Its about 1/3 the size of my kitchen.

New posts on this thread. Refresh page