Meet the Other Phone. A phone that grows with your child.

Meet the Other Phone.
A phone that grows with your child.

Buy now

Please or to access all these features

Property/DIY

Join our Property forum for renovation, DIY, and house selling advice.

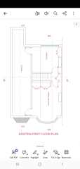
Options for floor plan please

2 replies

EnglishLadyInNY · 05/04/2026 23:18

Hello lovely ladies,

Critique my floor plan please ..any suggestions for improvement very much appreciated.

Current first floor has two bedrooms only and nothing else. I'm hoping to extend to add at least one more bedroom, family bathroom and an ensuite.
I've made some edits in blue on the proposed plan from my architect as the family bathroom is tiny:

  1. Remove wall between bathroom and walk in wardrobe
  2. Close off entry from walk in wardrobe to bedroom and en suite.
  3. Extend en suite across and create entry into bedroom; that becomes the new walk in wardrobe with entry to current en suit

Is there a better option for a more optimal layout? And an possibility of a fourth bedroom perhaps?

Thank you.

Options for floor plan please
Options for floor plan please
OP posts:
AnOldCynic · 06/04/2026 07:46

I wouldn’t say that family bathroom is tiny. It’s got a large shower and a bath, what more do you want to add in there?

Extending the room at the back over what will be the kitchen extension will add £££ onto the cost of the remodel as you’ll need footings etc for a two storey extension. Maybe worth it if you are wanting to add a 4th bedroom somehow but at that stage I’d seriously think about just moving house.

LibraColour · 06/04/2026 09:08

Try slightly reducing the primary bedroom and using that space to create a compact third bedroom with a more regular shape. I think, right now the hallway and the areas around the stairs look like they have some unused potential.
Fitting in a fourth bedroom seems possible but only if you’re okay with very small room sizes or giving up wardrobe space. I'd also suggest double checking how the doors open as they may clash and the space that's otherwise would be usable.
You can also try 3d layouts in programs like Interiorbox or similar ones, you can upload your plan in there and the model builds automatically. That's very convenient as sometimes what seems to work in paper just doesn't in real life.

New posts on this thread. Refresh page
Swipe left for the next trending thread