Meet the Other Phone. Protection built in.

Meet the Other Phone.
Protection built in.

Buy now

Please or to access all these features

Property/DIY

Join our Property forum for renovation, DIY, and house selling advice.

How to maximise this floorplan?

16 replies

Wtfloorplan · 19/01/2026 16:41

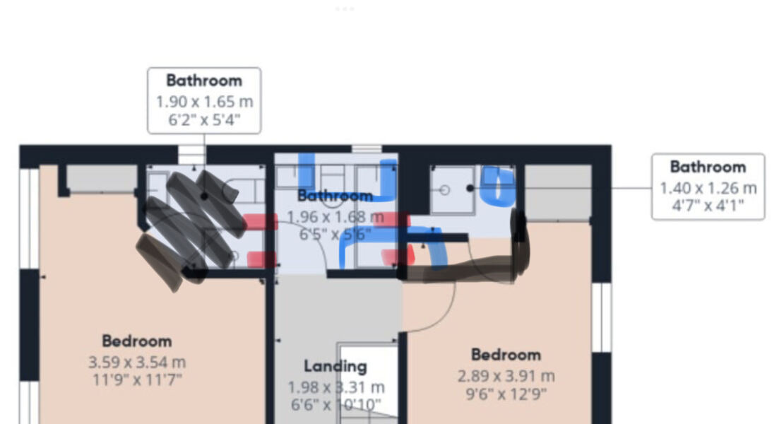
I am buying a property and have budgeted to do some work. The downstairs fairly sizeable and has been extended, but the upstairs is much smaller. The layout is not ideal and I would like to reconfigure a little to maximise the space, but I have no experience with this! Idea is to knock through either the ensuite and create one bathroom, or to completely get rid of the ensuite and steal some space from the second bedroom to create a larger bathroom.

The restricted height bedroom will become 2 person office, and I'd like to use the full size of the room for that as I spend most of days in there. Does this seem like a sensible plan? Any floorplan ideas I have not thought of?

There is no bathroom downstairs (there is a loo), but personally I wouldn't need a second bathroom as there are no children in the household. A bit worried about the dreaded 'only one bathroom' situation if I ever need to sell, though the plan is to settle long-term. I have sleepover guests very occasionally. Often they elect to shower when they get home!

How to maximise this floorplan?
OP posts:
OneWildandWonderfulLife · 19/01/2026 18:29

I don’t think you can knock through the bathroom into the shower room (right) as it looks like a chimney or supporting wall there. You could turn it into a lovely large walk in cupboard. I never feel the need for a large bathroom, unless you have lots of bedrooms and can convert one, it always seems like a waste of space to me, but keeping the en suite will give you two bathrooms, in case of resale, and the required downstairs loo.

Wtfloorplan · 19/01/2026 18:40

OneWildandWonderfulLife · 19/01/2026 18:29

I don’t think you can knock through the bathroom into the shower room (right) as it looks like a chimney or supporting wall there. You could turn it into a lovely large walk in cupboard. I never feel the need for a large bathroom, unless you have lots of bedrooms and can convert one, it always seems like a waste of space to me, but keeping the en suite will give you two bathrooms, in case of resale, and the required downstairs loo.

I personally can't live with a bathroom that small, it feels barely big enough to turn around! It's awkward because of where the stairs are I cannot exactly move doors. If I can't knock through to the spare room, which looks likely for the reason you mentioned, I'd knock through the ensuite and keep the spare room 'ensuite'. That way there is technically a second bathroom. I have no need of one, so it'd just be if I ever needed to sell. The other option is to create a second small bathroom downstairs. Again, this would purely be because people like more than one bathroom and has nothing to do with personal desire. I currently have two bathrooms and the second one is basically an ornament that needs cleaning!

OP posts:
Geneticsbunny · 19/01/2026 19:22

You could steal a slither from the low height room and move the coridoor to the right hand bedroom to under the stairs instead of above? You would have a smaller office but a much larger bathroom. Might cause issues with the reduced height but maybe not?

parietal · 19/01/2026 22:35

How many people are living in the house? I might get rid of the 'shower room' in bedroom 2 altogether to make that bedroom bigger. then I'd use that end of the room as my office. That would allow each worker to have a separate office which is much nicer if you have calls. You could arrange the kind of desk that can get closed away into a large cupboard if you have visitors only rarely.

you could knock the master bathroom and family bathroom into one large luxury bathroom if you want - I think with a downstairs loo already, you'd not be losing much. but would you mind not having an ensuite? or would you keep two doors?

Wtfloorplan · 20/01/2026 07:07

parietal · 19/01/2026 22:35

How many people are living in the house? I might get rid of the 'shower room' in bedroom 2 altogether to make that bedroom bigger. then I'd use that end of the room as my office. That would allow each worker to have a separate office which is much nicer if you have calls. You could arrange the kind of desk that can get closed away into a large cupboard if you have visitors only rarely.

you could knock the master bathroom and family bathroom into one large luxury bathroom if you want - I think with a downstairs loo already, you'd not be losing much. but would you mind not having an ensuite? or would you keep two doors?

There's two living in the house. We prefer being in the same room for work, just for the company. The ceiling height in the restricted room goes really low, which is why we thought it'd be perfect for built-in in desks. I am thinking of getting rid of that shower room regardless; it's tiny to the extreme and doesn't even have a toilet! I could convert into a powder room, but (and I know this is a first world problem) I was planning on getting some specific, fairly expensive toilets, and only having to get two of those beats having to get three.

My current master is bigger than the biggest room in this house, so I'm a bit worried about having enough wardrobe space. The house has quite a lot of built-in storage and lots more downstairs, but the master is just a bit awkward. With all the windows in different spots, I don't know where best to fit a decent wardrobe. It's the main compromise we are making buying this, but we love everything else and the location is fab. Just thinking how best to make it work. And yes, I am thinking of maybe keeping both doors to solve the ensuite issue. I don't need an ensuite, but easy loo access is pretty nice.

OP posts:
Smallorveryfaraway · 21/01/2026 21:09

Do the two people in the house share a bedroom? So bed two would just be for occasional guests? If that is the case I would:

  • Take out the ensuite in bed 1, but just cap off the plumbing so you could reinstate it if you wanted, and install wardrobes along that wall.
  • You might find that the cavity in the shower room is a plumbing cavity, unless there is definitely a fireplace below. So it could be removed or moveable. I'd take the bathroom the whole width of bed two and I'd turn it into a luxury bathroom/dressing room with cupboards for linens and a massive shower.
  • That means bed two would be quite small. I'd have a day bed dressed as a sofa in there with one of those underneath trundles that pops up to the same height when you need a double bed. This room would be for guests, doing the ironing and a quiet space for reading etc. I would consider adding a door into the bathroom from that room so it was a jack and Jill, but it's not at all necessary. If I did have that door I'd also be very tempted to make it one of those hidden bookshelf doors. I've always wanted one of those.
  • Personally I'd have bed 1 as the office for all the natural daylight while working and the eved room with the small window for sleeping, but that totally depends on whether I could fit a bed in there under the eves and be confident I wasn't going to crack my head when getting up in the night for a wee.
TheBirdintheCave · 21/01/2026 22:01

Wtfloorplan · 20/01/2026 07:07

There's two living in the house. We prefer being in the same room for work, just for the company. The ceiling height in the restricted room goes really low, which is why we thought it'd be perfect for built-in in desks. I am thinking of getting rid of that shower room regardless; it's tiny to the extreme and doesn't even have a toilet! I could convert into a powder room, but (and I know this is a first world problem) I was planning on getting some specific, fairly expensive toilets, and only having to get two of those beats having to get three.

My current master is bigger than the biggest room in this house, so I'm a bit worried about having enough wardrobe space. The house has quite a lot of built-in storage and lots more downstairs, but the master is just a bit awkward. With all the windows in different spots, I don't know where best to fit a decent wardrobe. It's the main compromise we are making buying this, but we love everything else and the location is fab. Just thinking how best to make it work. And yes, I am thinking of maybe keeping both doors to solve the ensuite issue. I don't need an ensuite, but easy loo access is pretty nice.

Ohhh are you buying Toto washlets?? 😬😬 My brother and SIL just got one for their bathroom. It is delightful and we adored them in Japan.

Pepper12345 · 21/01/2026 22:07

Something like this could work? Have a large walk in wardrobe instead of en-suite and give a bit of space to the bathroom. Could always move the door to opposite the second bedroom to minimise walking to the bathroom

How to maximise this floorplan?
Wtfloorplan · 22/01/2026 08:40

Sone great ideas 😀 we wouldn't need the extra space for reading/ironing because I don't iron (sorry!) and the downstairs floorplan is larger than the upstairs! It's just a bit open plan, so there isn't really a convenient space to add another bedroom.

It seems ridiculous to worry about space in a 3-bed when it's just the 2 of you...I don't even know how we got there as we once lived in a studio flat.

@TheBirdintheCave yes we are getting TOTOs 😋!

OP posts:
TheBirdintheCave · 22/01/2026 17:31

@WtfloorplanSugoi desu ne! 😭

SecondSheIsAWoman · 22/01/2026 18:15

In your shoes I think I'd move the door to the main bedroom nearer to the bathroom, knock through the ensuite and the main bathroom (possibly stealing back some space from the ensuite), and get rid of the shower room in the spare bedroom. I'd then turn the spare bedroom into a dressing room, with a day bed or sofa bed for guests.

andIsaid · 23/01/2026 03:58

Wtfloorplan · 20/01/2026 07:07

There's two living in the house. We prefer being in the same room for work, just for the company. The ceiling height in the restricted room goes really low, which is why we thought it'd be perfect for built-in in desks. I am thinking of getting rid of that shower room regardless; it's tiny to the extreme and doesn't even have a toilet! I could convert into a powder room, but (and I know this is a first world problem) I was planning on getting some specific, fairly expensive toilets, and only having to get two of those beats having to get three.

My current master is bigger than the biggest room in this house, so I'm a bit worried about having enough wardrobe space. The house has quite a lot of built-in storage and lots more downstairs, but the master is just a bit awkward. With all the windows in different spots, I don't know where best to fit a decent wardrobe. It's the main compromise we are making buying this, but we love everything else and the location is fab. Just thinking how best to make it work. And yes, I am thinking of maybe keeping both doors to solve the ensuite issue. I don't need an ensuite, but easy loo access is pretty nice.

My current master is bigger than the biggest room in this house, so I'm a bit worried about having enough wardrobe space. The house has quite a lot of built-in storage and lots more downstairs, but the master is just a bit awkward. With all the windows in different spots, I don't know where best to fit a decent wardrobe.

If it will be you plus your 1 living in the house, with occasional visitors, then you have quite a bit of freedom as to how you live it.

With that in mind - why not have one of other bedrooms as a wardrobe?

There is a lot of inspiration on line - your guest bed could still be there in the form of a Murphy bed for example.

You have a lot of room to play with as you are not confined by extra bodies need space!

Pashazade · 23/01/2026 07:31

Just to say we have a four bed house and only one bathroom. The bathroom has a toilet and we also have a separate downstairs loo. This has never been a problem. Plus is perfectly usual round here! I would make sure you had more than one access point if the only bathroom was en-suite as it’s a bit weird for visitors to have to go through a bedroom upstairs. I think I’d get rid of the en-suite, have a door into the bathroom from the master, then create an opening from the bathroom to the shower room so maintaining the structural support. Pushing the shower room into the second bedroom and stealing space. Turn the bath through 90 degrees and put that under the windows with a vanity on the opposite wall. Move the toilet to the other side of the shower, where sink currently is.

How to maximise this floorplan?
HarryVanderspeigle · 23/01/2026 09:35

I would combine the family and spare room bathrooms to make one bigger one. Then create a built in wardrobe in the space next to it. Although it doesn't increase your bedroom, you can store things in bedroom 2 / have it as a dressing room. If you have people to stay, you can still have more cupboard or wardrobe space for them. Bedrooms are for sleeping in, so don't need to be huge. You would have a harder time selling if you removed 2 bathrooms and it means you can both wash at the same time.

How to maximise this floorplan?
longtompot · 23/01/2026 12:47

@Wtfloorplan I wonder if something like this would work?

Remove the en-suite in the main bedroom, keeping the pipe work so it can be reconnected if needs be. Put your bed between the two windows and wardrobes opposite, to the right of the entrance door, and maybe to the left of the top little window. Or a chest of drawers there, or even a dressing table.

Move the door to the current bathroom, keeping what looks like a chimney breast, and extend the wall into the second bedroom. Put a shower where the door used to open, with the toilet next to it.

Basin location I'm not sure about. Ideally I'd like it near the toilet, but maybe it could go next to the bath.

Put in a lovely double ended bath in what was the smaller en-suite, either on the end wall, or along where the shower and basin was.

Put in a new cupboard next to the bathroom for the smaller bedroom to use.

How to maximise this floorplan?
user1492757084 · 23/01/2026 14:17

Leave office as planned. I would have single beds along the lower ceiling wall

Second bedroom becomes optional main bedroom (for resale) Ensuite and cupboard made slightly longer with sliding doorway into ensuite from the larger built in robe. Entrance into that bedroom is moved back into landing by 2 foot - allowing for better use of the space inside the bedroom which used to be taken up from the door when opened.

The main bedroom loses most of it's ensuite with the toilet and shower space being taken up with the new bathroom and the remainder being taken up in walk in robe or office desks. The sleep section of the main bedroom stays similar in size. Option to continue the old ensuite wall running longer - leaving a gap near to large window for entry into built in robe/desk space. Option to move the entrance door of bedroom to near the bathroom allowing for bedhead to be placed on wall to the left or on adjacent wall; though I don't know where the small door goes on that wall with the tiny wndow?
Another option (for resale) is that the robe/desks are not walled off once some of the ensuite is taken up into the main bathroom. But the room if left flexible to cater for two children to share the same room.

Bathroom is made larger and a sliding door is an option. Bath stays where it is; basin is wider, taking up the toilet space. The toilet from the old ensuite turns 90 degrees and sits against outer wall and the ensuite shower space can become bathroom shower.

New posts on this thread. Refresh page
Swipe left for the next trending thread