Meet the Other Phone. A phone that grows with your child.

Meet the Other Phone.
A phone that grows with your child.

Buy now

Please or to access all these features

Property/DIY

Join our Property forum for renovation, DIY, and house selling advice.

Critique my floorplan!

20 replies

Mushroo · 22/11/2025 10:01

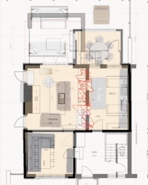
I’m playing around with ideas to remodel my house.

what do you think of the attached? (It’s overlayed over the existing floorplan, so just focus on the areas with a yellowish background.

The new snug at the front will be about 3.5m x 3.5m, would this be big enough for the family of four?

the extension off the kitchen will be about 3m x 3m, again do you think this is big enough for a dining table? It would just be for 4,
but would probably get an extendable table for Xmas etc.

Happy with any layout ideas!

Critique my floorplan!
OP posts:
Mushroo · 22/11/2025 10:28

In case it’s not clear - the room at the back currently is a conservatory which will be demolished. It’s cold and taking up a prime spot on the south facing patio.

The two sofas would be outdoor sofas!

OP posts:
parietal · 22/11/2025 10:37

It is hard to see what is new and what is old on the pictures. If you have a clean picture of the existing layout and another of the new layout side by side, that would help.

Mushroo · 22/11/2025 10:45

I don’t have a clean picture of the new, but here is old and new side by side.

Changes:
Demolish conservatory to gain south facing patio
knock down wall between kitchen and lounge
build new extension off the back of the kitchen for open plan dining area (removing current external stairs)
put up wall to create new snug room at the front of the house.

Critique my floorplan!
Critique my floorplan!
OP posts:
whatsnewpussycat34 · 22/11/2025 10:54

Do you have a utility in the garage bit? If not, I’d be using some of the budget to have one either in there or in the back of thr kitchen where the first door is.

Smallorveryfaraway · 22/11/2025 11:09

I think I wouldn't have two doors out from the kitchen, I'd make the other a window. I'm also not sure i'd switch the kitchen and lounge areas, if you are taking out the wall anyway it's all one big room so does it matter which side the kitchen is? And with the wall gone you'll have room for a large island if that's the thing you are keen on having. It's adding cost to move plumbing etc so would need to be worth it for a reason other than not liking the current kitchen iyswim.
Do you use the chimney/fireplace currently? I assume that's what the bump is in the current lounge. I'd rather keep that in a lounge area.
Snug and new dining area are fine size wise, you just need to make sensible furniture choices

Bruisername · 22/11/2025 11:16

I’m not keen on the dining room extension tbh - how big is the garden?

We have a similar layout although our front room is a little bigger and we have the TV in there

our kitchen/diner/family room is 7x7. I’m not sure on yours. But I’ve also taken some space out to put a utility and guest toilet and boiler cupboard so overall dimensions maybe nearer 7x9. What are the dimensions once the wall is knocked out?

we have kitchen on one side with L shape and big island, dining table on other side of room and seating area by the windows

Mushroo · 22/11/2025 11:29

@Smallorveryfarawaythe lounge and kitchen are staying in the same place - just the wall between them is going. So kitchen on the right, lounge on the left.

@Bruisernamewithout the extension its about 4.87m x 7.5m, so I think it’s too small without it to have dining.

The garden is to the side of the house (on the left) so the dining extension isn’t really taking any garden, just what is currently dead space next to the conservatory.

We have a laundry room upstairs, and will use the remaining garage space as storage, maybe a sink, so a bit of a utility room but no need for laundry.

OP posts:
Bruisername · 22/11/2025 11:34

Instead of the dining extension could you go out the full width to give yourself an extra 1.5-2m?

Geneticsbunny · 22/11/2025 11:35

Are you going to make the front room into a dining room or is that what it is currently? It is too far from the kitchen to be a sensible dining room.

Mushroo · 22/11/2025 11:54

@Bruisernamei have toyed with that! The only thing putting me off is the space at the back of the house about 4.m deep. So if we go out the whole way say 2ms, we’re left with a narrow corridor of dead space that’s not really big enough to be a patio.

So max we could go out whole way across is about 1.5m and might not be enough? (room would then be 6.4m x 7.5m)

@Geneticsbunnyfront room is currently dining and we’re planning to change to a snug.

OP posts:
Bruisername · 22/11/2025 11:57

I think the current extension makesnthe living space dark - so would prefer dining room up by door and then living space down by garden

we have sliding doors full width and a small garden so in the summer it’s lovely to have them open and treat it as one space, so to speak.

Geneticsbunny · 22/11/2025 12:06

So you are swapping the current kitchen and living areas so the kitchen will be on the right?

Bruisername · 22/11/2025 12:09

Yes - and I agree you should keep it where it is so you can have a long run down the right plus the island and then the doors to garden are from living space

Mushroo · 22/11/2025 12:14

@Geneticsbunnykitchen is currently on the right, and will stay on the right. Lounge on the left (the room with the chimney breast). I know it says snug on the plan but ignore that!

Plan is the windows in the alcoves of the living space will be full height looking into the garden, patio doors at the back onto the patio, and patio also from dining area.

OP posts:
Edelweiss129 · 22/11/2025 14:40

To me, a downstairs reno and extension should always provide for a downstairs bedroom and shower room, especially as we/family visitors get older and can't do stairs or climb into a bath easily

Mushroo · 22/11/2025 15:43

@Edelweiss129whilst that would be lovely, you actually have to climb 10 stairs to get into the house, so if accessibility becomes an issue, we’ll be moving house!

OP posts:
Andromed1 · 22/11/2025 16:26

Personally I'd leave it as it is, apart from demolishing the conservatory. Open plan is so noisy.

Smallorveryfaraway · 22/11/2025 18:01

So what would you like to achieve, what's not working with the current layout?

Mushroo · 22/11/2025 20:26

@Smallorveryfarawaynothing works currently 😂. The kitchen has no seating, and the dining room is too far from the kitchen.

The lounge is actually a bit too big to be cosy, and the conservatory is too hot / too cold, and taking up a prime spot of what could be a south facing patio.

Id like to achieve an open plan lounge, kitchen diner, with a separate snug for the evening. (We have a separate laundry room so I’m not worried about noise from washing machines etc.)

The conservatory isn’t really usable long term, so it has to be demolished or completely upgraded.

OP posts:
Bruisername · 22/11/2025 20:30

I love my open plan kitchen/living space and have 2 stools at the island and spend most of my time there! It’s the heart of the house and we are often all in there doing our own thing

then in the evenings I sit in the cosy lounge to watch tv

New posts on this thread. Refresh page