Meet the Other Phone. Only the apps you allow.

Meet the Other Phone.
Only the apps you allow.

Buy now

Please or to access all these features

Property/DIY

Join our Property forum for renovation, DIY, and house selling advice.

Help Please Layout experts ๐Ÿ™

15 replies

Bootroommudroomutilityloo · 20/11/2025 20:48

I have this collection of 3 rooms. I have looked at it in its horrid form for so long I canโ€™t see straight.

What do we need:
Washer / dryer
Utility sink
Some Utility storage
A downstairs loo

Ideally I would like to make it into something which adds value; either a mudroom/ boot room. Extra storage whether thatโ€™s for cloak or just storage.
Or potentially do a full bathroom as we only have one bath/shower in the house.

Any ideas please welcome. Go wild ๐Ÿคช

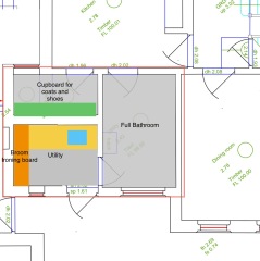
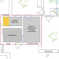
Yellow are stud walls so easily removed. If we can see an exceptional vision then I am happy to knock down the remaining brick walls but thatโ€™s going to have to be exceptional!

Help Please Layout experts ๐Ÿ™
OP posts:
Bootroommudroomutilityloo · 20/11/2025 21:27

So I didnโ€™t want to show any ideas as didnโ€™t want to taint anyoneโ€™s thinking. But I appreciate you may all be as bamboozled as I am.

If itโ€™s easier to say yay or nay to ideas here are some optionsโ€ฆ.

Help Please Layout experts ๐Ÿ™
Help Please Layout experts ๐Ÿ™
Help Please Layout experts ๐Ÿ™
OP posts:
PragmaticIsh · 21/11/2025 11:19

Your suggestion has the door from the toilet into the kitchen, would you move it so it opens from the utility instead?

Not moving the brick walls is the least expensive option and I think your suggested layout is good!

PragmaticIsh · 21/11/2025 11:23

Sorry, I'd only seen the first suggestion! So comments were about that.

Not keen on the third one with a full bathroom opening off the kitchen, that seems a bit unhygienic.

The second with the larger boot room and a full bathroom off that is okay, if you do decide you need that bathroom. Really depends if you need utility space and storage or another bathroom more.

Bootroommudroomutilityloo · 21/11/2025 14:43

@PragmaticIsh

Apologies itโ€™s no longer a kitchen. Itโ€™s now a Library for want of a better word. Basically a big room with books all round the walls and a few armchairs.

OP posts:
Bootroommudroomutilityloo · 21/11/2025 14:48

The second with the larger boot room and a full bathroom off that is okay, if you do decide you need that bathroom. Really depends if you need utility space and storage or another bathroom more.

And yes I agree this makes most sense to me flow wise. Ie. Through cloak is bathroom.

But then utility being by back door to take out washing also makes most sense for that. But walking through a full bathroom to get to the utility is weird.

It is mind boggling.

OP posts:
Bootroommudroomutilityloo · 21/11/2025 14:50

I am sure everyone always wants more storage. You can never have enough really.

But we only have 1 full bathroom in the house upstairs so it does make sense to put a full bathroom downstairs. This would make the house potentially a 5 bed 2 bath to some people as we have two double rooms downstairs suitable for bedrooms (currently a second lounge and art studio room).

OP posts:
PragmaticIsh · 21/11/2025 16:47

If you definitely need the full bathroom then I'd go for option 2, with the small stacked room. Could you move the outside door from what-will-be the bathroom, into the new boot/coat room?

Spiracles · 21/11/2025 16:52

The obvious thing to do seems to be change the back door to opening out of the utility room. Make that a boot room/utility. Full bathroom where your current one is, with the stud walls taken out.

So, you change the window out of the utility room into a door and window, or french doors (for light). Take out the external door from the bathroom, make it into a window. Take out the stud wall, then change it into a full bathroom opening off the utility/boot room.

Spiracles · 21/11/2025 16:58

Minimum plumbing change needed, no brick walls need to come down, prob won't even need a steel or lintel over the new external door from the utility room, unless you widen it a bit.

bigliness · 21/11/2025 16:59

Came here to say the same thing - move the exterior door to be into the space on the right and make that a boot room / utility with a full bathroom off it. The smaller third space could be a laundry space as in your third drawing,.

Bootroommudroomutilityloo · 21/11/2025 21:37

Ahh bugger! That would be a good idea!

The window and door are original though. The door being arched also into the brickwork. And an external open drain gully under window. I donโ€™t think I can change those!

OP posts:
Bootroommudroomutilityloo · 21/11/2025 21:38

bigliness · 21/11/2025 16:59

Came here to say the same thing - move the exterior door to be into the space on the right and make that a boot room / utility with a full bathroom off it. The smaller third space could be a laundry space as in your third drawing,.

This does make most logical sense though ๐Ÿคฆโ€โ™€๏ธ

OP posts:
Spiracles · 21/11/2025 22:20

Bootroommudroomutilityloo · 21/11/2025 21:37

Ahh bugger! That would be a good idea!

The window and door are original though. The door being arched also into the brickwork. And an external open drain gully under window. I donโ€™t think I can change those!

Of course you can change them. Unless your house is listed?

All you need is a step over the drain gully. And keep the shape of the door in the bathroom, just brick up (stone up, whatever) the bottom half to make the window.

Spiracles · 21/11/2025 22:29

Also, to finish it off nicely, I would have the drier room opening off the utility room. So close up the door from the "used to be kitchen" room, and open up a door from the utility room. It all flows a lot better then.

In fact I would do that whatever you decide about the other rooms.

bigliness · 23/11/2025 14:19

Spiracles · 21/11/2025 22:29

Also, to finish it off nicely, I would have the drier room opening off the utility room. So close up the door from the "used to be kitchen" room, and open up a door from the utility room. It all flows a lot better then.

In fact I would do that whatever you decide about the other rooms.

Edited

Or split that space in two - half for the drier stack opening to the utility, and half for storage, e.g. an airing cupboard opening to the bathroom.

New posts on this thread. Refresh page