Meet the Other Phone. Only the apps you allow.

Meet the Other Phone.
Only the apps you allow.

Buy now

Please or to access all these features

Property/DIY

Join our Property forum for renovation, DIY, and house selling advice.

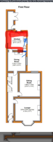
Show me your lovely but TINY kitchens in Victorian houses

62 replies

drspouse · 03/11/2025 14:14

I started a thread about kitchen planner apps and the Ikea app was mentioned and it has gone "computer says NO" because the kitchen is too tiny.
The picture (wait for approval, blah blah) shows next door which is a mirror image. It's definitely ground floor (they have a utility room in the basement, though it's marked as the ground floor and the ground floor as the first floor, which is bizarre).

We currently have a full height fridge-freezer in the dining room and we have washing machine and dishwasher in the kitchen. We have some original built in cupboards in the dining room (between the fireplace, which doesn't have a fire in it but has the biggest lintel in the world over the top so can't be knocked through), and backing onto the sitting room on the non-window-wall. These cupboards are nice - panelled, painted white - and it might look good to have the kitchen echo these. Ceilings are high and the previous owners were tall so there are full height cupboards I can't reach (but on the other hand, is the space between a cupboard and the ceiling any use for anything except gathering dust and grease?)

We could possibly relocate the washing machine to the basement but it would be a pain and we don't want an under-worktop fridge so we are happy to keep it in the dining room. Also in the dining room are the dining table, chairs, and a very large Welsh type dresser where we keep ornaments, homework, mug overflow. Not getting rid of dresser (heirloom) but we find it's not massively useful as a kitchen storage overflow, though it's useful as life admin storage.

If it's relevant, we also have the basement steps in the dining room (so that they go under the stairs to the first floor, they also have this but it isn't marked. We have the door off between kitchen/diner (it used to be sliding and was neither use nor ornament) and in fact we also have the door off between dining and hall. The dining room door had original non-safety glass and we were one slammed door away from a major artery rupture in a DC, after a breakage on a similar door to the upstairs loo.

Floor in dining room is original encaustic tiles and in kitchen is harder-than-diamonds black slate (you can drop things on the dining floor and they don't break and then you drop the same thing in the kitchen and wham).

Outside is an outside loo, and a bike shed/chest freezer store.

Anyway - all tiny Victorian kitchen arrangements gratefully acknowledged.

Show me your lovely but TINY kitchens in Victorian houses
OP posts:
Thread gallery
9
Kwamitiki · 03/11/2025 16:04

Have you tried the DIY Kitchens planner? Even if you don't use it, it might work better.

drspouse · 03/11/2025 16:06

I'll have a look - is it an app or can you use it in a browser as well?

OP posts:
MsWilmottsGhost · 03/11/2025 16:15

I just get the squared paper out. The apps I found not great with tiny kitchens when every cm matters.

What is in the kitchen on the other side of the wall from the dining room fireplace?

I would think an L shape kitchen in that corner would be the best use of space. Would that work better than worktops on either side of a square room?

MidnightPatrol · 03/11/2025 16:16

Could you knock through where the fireplace is? I’m not sure what the engineering requirement of that would be.

Make a nice long kitchen diner instead?

MsWilmottsGhost · 03/11/2025 16:21

Can you use some of the store space if you access it from the kitchen? E.g fridge/freezer or larder or utility?

Show me your lovely but TINY kitchens in Victorian houses
BarnacleBeasley · 03/11/2025 16:21

This might not help with actual layout planning, but for design inspiration I think you should google for pictures of Parisian kitchens instead - there are loads of 19th century apartments with tiny kitchens so you get designers who really know what they're doing in small spaces.

Kwamitiki · 03/11/2025 16:22

drspouse · 03/11/2025 16:06

I'll have a look - is it an app or can you use it in a browser as well?

Browser only, I think. Planner.diykitchens.com

drspouse · 03/11/2025 16:23

MsWilmottsGhost · 03/11/2025 16:15

I just get the squared paper out. The apps I found not great with tiny kitchens when every cm matters.

What is in the kitchen on the other side of the wall from the dining room fireplace?

I would think an L shape kitchen in that corner would be the best use of space. Would that work better than worktops on either side of a square room?

Good idea! I am not really sure what available units there are but I could go back to Blue Peter and cut out all sorts of sizes from squared paper too!

OP posts:
thisoldcity · 03/11/2025 16:25

From tiny kitchens I have had or know, I'd say if you possibly can get rid of the wall cupboards. It makes the room look so much wider if you can see the walls. Having shelves instead can look really stylish, I think.

drspouse · 03/11/2025 16:32

@MsWilmottsGhost @MidnightPatrol on the kitchen side of the fireplace there are just normal units - the fireplace doesn't work any more. Next door from memory have a wood burner on the dining room side so I imagine that isn't great for food storage on the kitchen side so they have even less storage in their kitchen!

However, based on another house in the street you cannot knock out the wall and take the lintel away - you are just left with a long kitchen/diner but with a huge piece of stone in the middle of the room with two foot by two foot struts either side getting in the way.

We would probably rather eventually convert the outside loo and freezer storage into a downstairs but actually inside toilet/shower if either of us ever became unable to use the stairs (it is fully possible this could happen while DCs are still young adults so we would be better off doing this and having them living upstairs rather than moving to a smaller place). But for the moment it is at least freezer storage.

Looked at the DIY Kitchen Design and found things I hadn't thought of like full height corner units - we had a full height pull out pantry thing in our old kitchen so that's helpful actually @Kwamitiki.

We currently have the boiler over the washing machine in the space that's to the R of the back door on their plan, and the dishwasher between that and the sink which is in the traditional under the windows spot in both houses (we could see each other washing up except there's a wall!).

We also currently have eye level double oven to the other side of the back door and hob faces you when you walk into the kitchen (directly opposite the sink - not in the corner like next door has).

OP posts:
somanysugababes · 03/11/2025 16:33

I have a very similar layout in my Victorian house - long and thin and we can’t remove the kitchen wall to make it bigger as it’s the load bearing wall (previous occupants put a weird extension on the back but left the wall in)
We removed all the wall cupboards and have open shelves which helps - also no fitted units at all along one wall so I have crammed in a range cooker, the fridge freezer and also a freestanding butchers block on that wall (between the fridge and cooker) We got rid of the dishwasher so the bin can fit in its place, and luckily have a utility room for washing and everything else we can’t fit in the tiny kitchen! (So all the random stuff like mixers, wine glasses, cake making stuff eg stuff that’s not used daily) Also microwave goes in there too.

drspouse · 03/11/2025 16:33

thisoldcity · 03/11/2025 16:25

From tiny kitchens I have had or know, I'd say if you possibly can get rid of the wall cupboards. It makes the room look so much wider if you can see the walls. Having shelves instead can look really stylish, I think.

Good point - we had a door free cupboard in our old kitchen and we leave one of the upper cupboards open all the time in this kitchen - DH thought it was weird to have open shelves but has missed them since moving to our new house. We'd have more of those in our fantasy new kitchen, definitely.

OP posts:
drspouse · 03/11/2025 16:39

@somanysugababes sounds v similar! We keep appliances/wine glasses/dinner plates in the dining room (as well as the fridge freezer) the bin is just inside the open doorway and is reasonably slimline. I like the idea of a wall of appliances. I'm not completely sure if we are limited to water on the window side but we could put the cooker there and have cooker, sink, dishwasher and washing machine. No utility room sadly! I think the washing machine used to be in the shed, though, so maybe we could do that.
The limitation is mainly worktops TBH as we do have a reasonable number of cupboards in the dining room and having wine glasses, booze, slow cooker, cookbooks, dining plates, some mugs etc. in there isn't a hardship, as that's either where you use them, or you don't use them often enough to mind getting them.

OP posts:
MsWilmottsGhost · 03/11/2025 16:40

You are right that seeing to the wall makes it look wider. Don't be tempted to put in any full height cabinets e.g. high level oven, stick to under counter appliances. That was why I asked about going through into the store area to grab back a bit of full height space without encroaching into the room.

I would go for tall wall cabinets to the ceiling to maximize storage. I use glossy finish cabinets in a light colour or glass fronted to reflect light and stop it feeing too enclosed.

Open shelves look lovely, but the dust and grime gathers on them in a kitchen. I only made that mistake once, so much cleaning, never again 🤢

Thatsanotherfinemess1 · 03/11/2025 16:40

I would have a full height walk in corner larder cupboard in the corner to the left of the back door, they are enormous but don't look it. Mine holds around 10 cupboards worth of food and appliances. Next to that I'd have the freestanding tall fridge freezer. And a narrow full height ladder cupboard next to the door if there is room.
I'm not sure why there are no cupboards on the wall opposite the back door? This is wasted space. If it's due to a radiator, swap it for a ladder style o r kickboard heating to free up wall space. With a ladder cupboard you'll have lots of storage but not much worktop, so against this wall you can have a freestanding old pine sideboard, a lift up workspace (that folds flat against the wall when not in use but gives you a worktop when needed) or a couple of fitted cupboards depending on what is in the corner next to the cooker (as you don't want to block e.g. A washing machine). The fold up worktop might be best for access if you only need it occasionally. I'd also looks at extra fall wall cupboards to the left of the window- using the full height of the kitchen reduces wasted space and dust .

CharlieKirkRIP · 03/11/2025 16:45

Look on Prime Location for similar properties not just in your own area but other areas and see what other people have done with small kitchens.

drspouse · 03/11/2025 16:47

@Thatsanotherfinemess1 Our neighbours don't have units opposite the back door but we do - one single width with a floor unit and a wall unit up to the ceiling, and one with two upper units, and a corner pull out cupboard. I agree it would be wasted space if we weren't using it!

I am actually thinking we might want a corner sink (probably with a LH draining board and the sink itself still partially under the window) as that under-cupboard space just gets stuff shoved into it.

OP posts:
drspouse · 03/11/2025 16:57

Though the idea of a full height cupboard in the corner with window wall/dining room wall intersection also sounds great!

I just googled Prime Location "small Victorian Kitchen" and I won't be emulating this one: even with the estate agent's mendacious camera work it looks awful! But it's even smaller than ours.

https://www.primelocation.com/for-sale/details/71377408/?console=open&tab=images

OP posts:
drspouse · 03/11/2025 16:59

Anyway I'm off to go home/deal with DCs and dinner/settle in front of the telly with my laptop later and go through more ideas!

OP posts:
rwalker · 03/11/2025 17:04

Moved door in dining room
make kitchen window door and door window then u shaped kitchen

Show me your lovely but TINY kitchens in Victorian houses
Thatsanotherfinemess1 · 03/11/2025 17:05

Sorry, deleted,message as I can't see how to upload a photo of the corner larder

cramptramp · 03/11/2025 17:12

My kitchen in my Victorian flat was smaller than yours. It had a door leading into it, a back door going to the yard, and a door going to the bathroom. When I wanted a new kitchen, the most useful thing was getting kitchen companies out who made great suggestions and turned them into pictures so I could visualise what it would look like. It was much better than when I tried using online planners myself. I ended up using Wicks.

Kwamitiki · 03/11/2025 17:18

@drspouse Also highly rated DIY Kitchens' kitchens (we saved a ton and got a better kitchen in terms of materials... plus designing it made us think about what we actually wanted and how we use the space more).

We hated the half arsed designs we got from most of the kitchen suppliers!

drspouse · 03/11/2025 18:17

@rwalker It's very hard to describe and it's not on the plans but moving the doorway destroys an original cupboard that's quite useful so we'd prefer not to do that.
@Kwamitiki it's already given me a couple of suggestions!

OP posts:
waitamo · 03/11/2025 18:25

If I had the money or if you have.... I'd move the kitchen to sitting room and knock through to lounge for eating/sofa area. Existing dining room for TV/sitting in and kitchen for study./utility/downstairs loo etc.

OK I know you are looking for ideas for the existing kitchen, but I couldn't help myself!

Swipe left for the next trending thread