Meet the Other Phone. A phone that grows with your child.

Meet the Other Phone.
A phone that grows with your child.

Buy now

Please or to access all these features

Property/DIY

Join our Property forum for renovation, DIY, and house selling advice.

Critique my minor reno plan

5 replies

Trampz · 14/09/2025 23:12

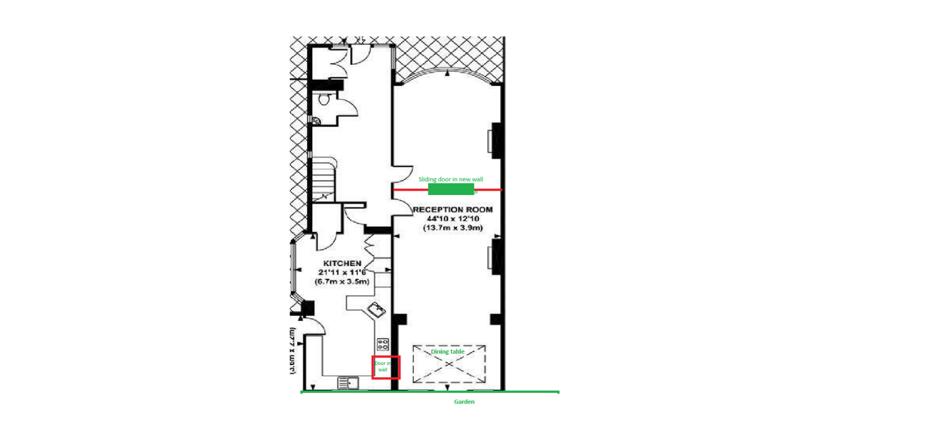
I am doing a minor refurb to my ground floor and would love suggestions / critiques. I have tried to mock up the plan in the attached file.

  1. Splitting the double reception into 2 rooms with a sliding door in between (TBC whether this is partly glazed or not) to get more function from them.
  2. Adding a door in the wall near the skylight (the dining table is right under it) and the kitchen. I didnt want to open up the kitchen/ living room entirely since I am not a fan of open plan. The new door would be a normal swing door (not sure if MDF or glazed) just to give easier access to the kitchen but possible to leave shut.

2 would mean changing the kitchen layout, and I am thinking of getting a new kitchen if I can afford it. Keen to get ideas on floorplan, keeping in mind footfall and flow - there is a door at the top right corner of the kitchen and the new door at the bottom right corner. the space is too narrow to have an island, i think. It currently has a peninsula of sorts. i want to put a bench / banquette by the left bay window in the kitchen. but that leaves a narrow gap between the kitchen table and the current peninsula- so that will have to go. There is also a window over the sink in the front looking on to the garden - so that is still the most intuitive place for one sink - perhaps a double sink. I have a second sink near the peninsula right now but can get rid of that if there is a double sink.

there is a separate utility with washing machine etc. but the dishwasher is in the kitchen.

How would you design this if it was your house?

Critique my minor reno plan
OP posts:
Bs0u416d · 15/09/2025 07:20

I'd personally lose the sliding doors between the reception rooms. Your rear most room has the dining table under the skylight, so there is presumably space to accommodate a sofa etc in the remainder of the space? If that is the case it's already doing to the job of a mixed purpose family/day room. All the sliding doors do is rob you of a wall in both rooms where you could place furniture, such as an arm chair or a console table etc.

parietal · 15/09/2025 07:28

How about something like this. I’ve rearranged the hall to kitchen cupboards a bit to avoid an awkward corner. I kept the door to the dining room near the top of the room so it isn’t a corridor. The door location you drew loses a lot of storage space.

Then you can have a full U shaped kitchen (F is fridge freezer, H is hob, sink as before). And a nice table in the bay window.

Critique my minor reno plan
Trampz · 15/09/2025 08:59

Thank you, @parietal and @Bs0u416d
The reception room feels too large to me to zone and I think I will get better use with 2 rooms that separate off- we have a piano in the front near the bay as well. 2 children so would be good to have a "nicer" quiet room in front, perhaps a library. I thought. But I need to give this more thought.

I would like to enter the reception room at the back without having to go through the kitchen and there is already a door there. So would be easier to retain it.

Another option would be to swap the dining table with the sofas (in the middle, currently) but the extension at the back isn't very large and will restrict sitting space.

OP posts:
Bs0u416d · 15/09/2025 09:45

Oh I'm definitely in favour of separating the rooms but I don't think you need the doors between them. Id save money and at the same time creat two separate spaces. The large dining/sitting room at the back and the private, more cosy room at the front. Without the sliding doors, you gain a functional wall in both rooms, which you can position furniture against, this makes the most of the rooms and prevents them both feeling like corridors.

Trampz · 15/09/2025 20:29

Thank you, @Bs0u416d makes sense. I was thinking of getting morning sunlight into the sitting + dining room since the house is on an east- west axis. But I see your point and agree.

OP posts:
New posts on this thread. Refresh page
Swipe left for the next trending thread