Meet the Other Phone. Child-safe in minutes.

Meet the Other Phone.
Child-safe in minutes.

Buy now

Please or to access all these features

Property/DIY

Join our Property forum for renovation, DIY, and house selling advice.

Please suggest how best to use these rooms

12 replies

Youknowwhatright · 13/09/2025 10:09

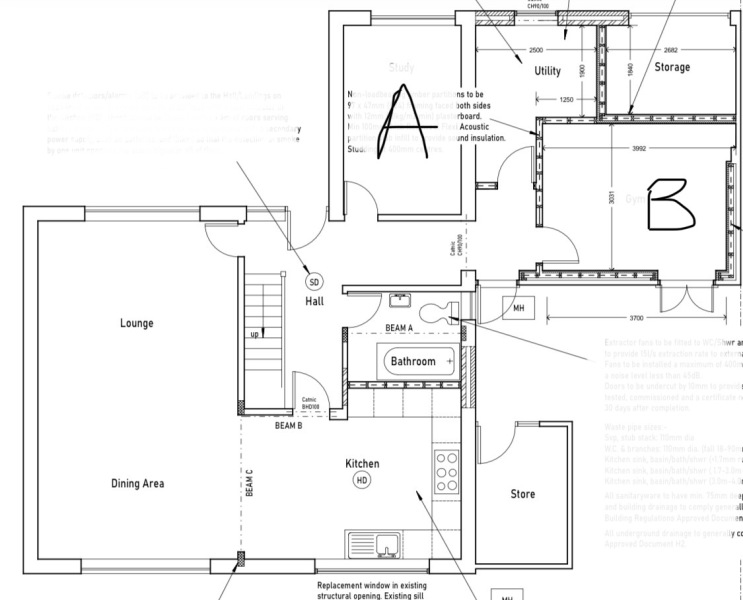
We are just in the process of having a garage conversion, the floor plan is attached. We aren’t sure how best to use the three reception rooms/spaces to fit our needs.

We have three kids under 6 so part of the reason that we went for an open plan kitchen/living/dining is so we can keep an eye on them while we’re doing stuff in the kitchen. We had similar in our old house and it worked really well. At the moment the room that is marked “A” on the picture is used as a playroom and the room marked “B” was going to be a multifunctional room, basically having a desk and all our office stuff to WFH and then also a corner sofa bed so it could double up as a second living/TV space as well as a spare room for guests (DH has taken to referring to this as his “cinema room” much to my disapproval).

However I’m currently having two issues with this:

  1. The playroom doesn’t get used much as the tv and the main living area is in the lounge and there’s not a huge amount of floor space. What ends up happening is that the playroom is effectively a toy storage room and then there’s a constant trail of toys between the playroom and the lounge which is a PITA. We also end up keeping some toys in the lounge for the baby so it just feels like there’s toys everywhere.
  1. I’m struggling to work out how to fit a corner sofa bed (which we already have so don’t really want to buy a new one) as well as a large desk/bookshelves and a wall-mounted tv in room B.

So now I’m wondering if we maybe just accept that toys are an inevitable part of life for now and keep them all in our main lounge area. We have a big 5 x 5 kallax for storage so that hides a lot of stuff. But we also have the usual IKEA play kitchen and various other bits but we could maybe investigate some built in storage. Then we would turn room A into a study and room B into a more grown up Tv room/snug with the corner sofa bed to double as a lounge. My concern with this is that our lounge might end up feeling like a preschool setting, and it will be constantly messy but it is already so no change there I guess. I also worry that room B will end up getting barely used and we will just always end up watching tv in the main living area because it’s close to the kitchen for drinks etc. Needless to say DH is keen on this though because it means room B will mainly be a dedicated cinema room and he will undoubtedly lobby me to allow him to get a projector/surround sound etc 🙄

For reference room A is around 13 x 8ft and room B is around 13 x 10ft so neither is massive. The main living area will be around 14 x 15.

Please don’t suggest any changes to the layout because the builders have already started 😬 well done if you got this far, any tips appreciated!

Please suggest how best to use these rooms
OP posts:
Bluebluetuesday · 13/09/2025 10:27

I think you accept that kods will never play in a play room, ever.
Use A as a grown up room, use B as the office, and have the open plan as a family space.

Beatmeonthebottomwiththewomansweekly · 13/09/2025 10:29

Not a comprehensive answer, but on your first point - our play room is the toy storage room for sure. But I do very much like having the dedicated space to put everything back there and not having toys as a permanent fixture in the lounge and kitchen - despite there always being some around.

My plan is to turn it into a den for them as they get older, with a tv and sofas.

Youknowwhatright · 13/09/2025 12:02

Bluebluetuesday · 13/09/2025 10:27

I think you accept that kods will never play in a play room, ever.
Use A as a grown up room, use B as the office, and have the open plan as a family space.

I don’t think room A would work as a grown up lounge as the sofa would end up too close to the wall to be able to comfortably watch a tv, it’s only about 8ft wide. If we want a grown up room I think it has to be B.

OP posts:
Youknowwhatright · 13/09/2025 12:04

Beatmeonthebottomwiththewomansweekly · 13/09/2025 10:29

Not a comprehensive answer, but on your first point - our play room is the toy storage room for sure. But I do very much like having the dedicated space to put everything back there and not having toys as a permanent fixture in the lounge and kitchen - despite there always being some around.

My plan is to turn it into a den for them as they get older, with a tv and sofas.

I had thought similar in some ways, it’s just somewhere for it all to live, but do you find that they don’t end up playing with half the stuff because it’s all stored away in a separate room from where they are? Kind of out of sight out of mind. The toys that get played with the most by all three DC are the three baskets of toys in the lounge that were theoretically for the baby!

OP posts:
Chasingsquirrels · 13/09/2025 12:07

Our playroom got used as such, mainly due to the sliding double doors which basically made it into part of the lounge - then at ight we just shut the doors. A completely separate playroom is very likely just to end up as storage.

cornbunting · 13/09/2025 12:10

A as the office, B as the grown up room, new big space as family space, for sure. This will also work really well as the kids get older - one of my issues when my kids have friends round is that I have nowhere to escape to give them a bit of space, unless I hide in my bedroom - a grown-up space would be wonderful!

Letthembefree · 13/09/2025 13:00

Definitely use the lounge as the playroom so it's all open plan. Have one sofa in there and a TV for the kids as well as their toys. I imagine you will spend all your days in there. It's also far better having one large play/family when you have friends over with their kids as you can sit at the dining table while they play, otherwise you will find yourselves all squished into the playroom uncomfortably if they aren't old enough to supervise themselves.

Make A a study/spare room, and B a more grown up TV room.

We started off with a layout similar to yours (with one less room) and regretted sealing off the lounge from the dining space to create a grown up room and having our third reception room as a separate playroom. The kids were always underfoot in the kitchen/diner and rarely played in the playroom and our largest lounge space was wasted as we only used it a couple of hours a day.

Far better to accept your kitchen is a family space for a few years and have one room to retreat to (B) once small children are in bed. As they get older you can switch things around

Youknowwhatright · 13/09/2025 13:28

DH is delighted that people are saying to have a separate grown up TV room 😂 and I’m actually warming to the idea as I’ve realised we could have a drinks cabinet in there! I’ve also got a really nice ladder style bookcase that I didn’t know where to put, it can’t go in the main living area as the baby tries to climb it but it would look good next to a corner sofa. I might even let DH get a new TV!

I am still a bit worried about how much shite we have that I currently shove in the playroom. So much craft stuff, books, toys, teddies, loads. My two younger Dc have very small rooms so there’s not much space for toys upstairs.

OP posts:
Beatmeonthebottomwiththewomansweekly · 13/09/2025 14:02

Youknowwhatright · 13/09/2025 12:04

I had thought similar in some ways, it’s just somewhere for it all to live, but do you find that they don’t end up playing with half the stuff because it’s all stored away in a separate room from where they are? Kind of out of sight out of mind. The toys that get played with the most by all three DC are the three baskets of toys in the lounge that were theoretically for the baby!

Yeah, that definitely happens if we leave anything out. But DH is very good at always putting stuff back at the end of the day. And I try (and often fail) to say let’s put this back in the play room and then get the next thing out).

I always find leaving unplayed-with toys by the door for the charity shop quickly gets them back in favour!

Youknowwhatright · 13/09/2025 19:49

Beatmeonthebottomwiththewomansweekly · 13/09/2025 14:02

Yeah, that definitely happens if we leave anything out. But DH is very good at always putting stuff back at the end of the day. And I try (and often fail) to say let’s put this back in the play room and then get the next thing out).

I always find leaving unplayed-with toys by the door for the charity shop quickly gets them back in favour!

Oooh that’s a good tip! (Awesome username by the way)

OP posts:
Beatmeonthebottomwiththewomansweekly · 13/09/2025 19:51

Youknowwhatright · 13/09/2025 19:49

Oooh that’s a good tip! (Awesome username by the way)

A name change yesterday inspired by another poster!

SylvesterandTweetyPie · 13/09/2025 20:08

When we moved into our house, we had a kitchen diner, a living room and 2 smaller reception rooms.

The one closest to the living room was filled with everything toy related with the intention of the children going in there to play and being able to shut the chaos away each evening.
The other room had no real purpose for ages.
We began to realise that the children were just creating a mess in their new playroom finding toys to play with then actually playing with them in whichever room we were in. So after a massive decluttering of toys, we put their most treasured toys into the children's bedrooms.
I then repurposed this room as an office and craft room. The children did their homework in there, we worked in there and any arts and crafts were done in there.

The other room had a 2 seater settee put in there with a television and the PlayStation. It meant that whenever computer games were played, it didn't take up the living room. We called this room the chill out room.

Fast forward again, and we have rejigged the rooms again. The settee, tv and PlayStation were moved into the office room, with the room becoming duel purpose. Office and chill out room.

The original chill out room now has become an eight seater dining room. I can't see the rooms changing again. The layout now seems to be the best we have done. Everything has its place.

New posts on this thread. Refresh page
Swipe left for the next trending thread