Meet the Other Phone. Flexible and made to last.

Meet the Other Phone.
Flexible and made to last.

Buy now

Please or to access all these features

Property/DIY

Join our Property forum for renovation, DIY, and house selling advice.

First floor side extension OR loft

15 replies

SK1987 · 25/08/2025 12:46

Got a semi detached and we are doing a ground floor wrap around. Wanted to add another bedroom but dont particularly need it, so decided on a first floor side seen as we are doing the ground anyways. Having now had the plans drawn up the width of the room internally is only 1780mm. Would you bother? Or go up into the loft for the additional cost? Any help that will help me make a decision would be greatly appreciated!

First floor side extension OR loft
OP posts:
Ilovemyshed · 25/08/2025 21:15

Wow, thats far too narrow. Less than 6ft. Complete waste of space as a bedroom.

SK1987 · 26/08/2025 08:46

Thanks for replying. What if it was a office and wardrobe room? My issue is that i have a winder staircase and will have to create a quarter landing which will bring the staircase forward towards the front door substantially. I do need a office as I work from home, but would it be worth adding a narrow room if the stairs had to be rearranged. I do visually love how a double storey side looks externally but soo confused with whether i should or not.

OP posts:
Seeline · 26/08/2025 11:03

Have you got planning permission?

Only, many Councils require first floor side extensions to be set at least a metre from the side boundary. Yours looks as though it is built right to the boundary, so probably wouldn't be allowed anyway.

Reducing the width by a metre would make the space completely unusable.

Dueindecemberr · 26/08/2025 11:41

Seems completely pointless. It’s far too narrow. I would do ground floor plus loft if you need the space.

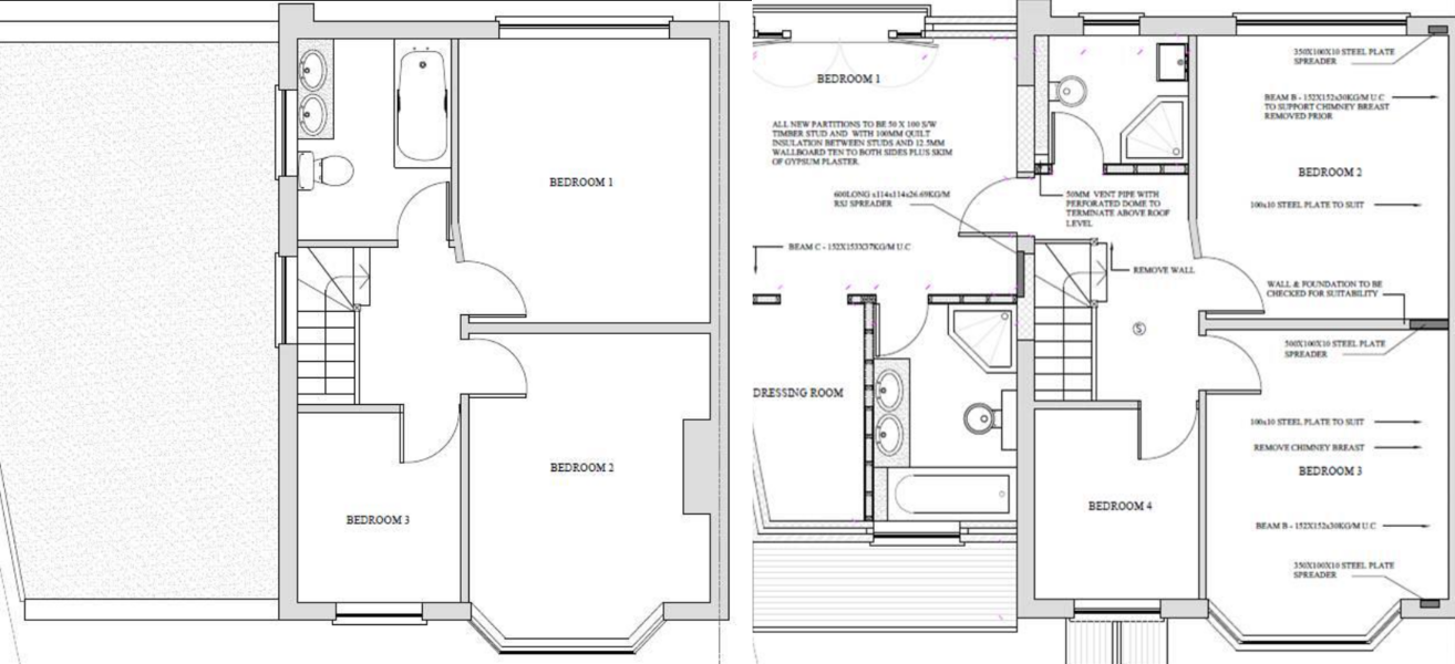
CaurnieBred · 26/08/2025 12:59

Re your issue with the winder stairs; what we did was convert the family bathroom into a family shower room and used the space we freed up to become the walk through to the new extension (as per attached plans). This way we could keep the existing stair. We then put a bath in our ensuite so we still had one.
Do check about coming in from the side. Our original plans were refused due to that but we were able to appeal to go to the boundary line as we share that with a park, not another house. However, they did make us come back in from the front so that it looked "subsidiary" to the original house.

First floor side extension OR loft
MrsMoastyToasty · 26/08/2025 13:11

I'm assuming that the property is similar to mine (1930s semi).
We extended over the ground floor extension. It's not very wide but gives us a single bedroom off the turn in the stairs. We knocked through from the original box bedroom into the extension and created another single bedroom/office accessed through the original box bedroom door.

We were told that the foundations had to be sturdy enough for 2 storeys even if we had only done the ground floor, so it seemed silly not to.

GasPanic · 26/08/2025 13:16

I would make the long bit, ensuite to bedroom 4 at the front. Then the rest of the long bit the family bathroom and dressing room and convert the family bathroom to another bedroom.

Changing all the plumbing would probably be a nightmare though as you would have to get the waste from the en suite and the new bathroom to where it is currently, unless you have something like a toilet beneath that long bit, and of course the issues re pp.

SK1987 · 26/08/2025 19:48

Seeline · 26/08/2025 11:03

Have you got planning permission?

Only, many Councils require first floor side extensions to be set at least a metre from the side boundary. Yours looks as though it is built right to the boundary, so probably wouldn't be allowed anyway.

Reducing the width by a metre would make the space completely unusable.

Hi yes we have permission and it is stepped back 1m per the plans. The measurements of the full room would be 1780 x 6000

OP posts:
SK1987 · 26/08/2025 19:51

CaurnieBred · 26/08/2025 12:59

Re your issue with the winder stairs; what we did was convert the family bathroom into a family shower room and used the space we freed up to become the walk through to the new extension (as per attached plans). This way we could keep the existing stair. We then put a bath in our ensuite so we still had one.
Do check about coming in from the side. Our original plans were refused due to that but we were able to appeal to go to the boundary line as we share that with a park, not another house. However, they did make us come back in from the front so that it looked "subsidiary" to the original house.

Thank you for this. We did consider this arrangement but then thought is it worth rearranging upstairs for a really narrow room. Assuming you have a decent sized side extension to have even considered eating into your existing bathroom?

OP posts:
SK1987 · 26/08/2025 19:52

MrsMoastyToasty · 26/08/2025 13:11

I'm assuming that the property is similar to mine (1930s semi).
We extended over the ground floor extension. It's not very wide but gives us a single bedroom off the turn in the stairs. We knocked through from the original box bedroom into the extension and created another single bedroom/office accessed through the original box bedroom door.

We were told that the foundations had to be sturdy enough for 2 storeys even if we had only done the ground floor, so it seemed silly not to.

Yesss this is why im soo stuck, even are definitely doing the ground floor side and it apparently works out cheaper to do the 1st floor too. Would you mind giving me measurements of your side? And pics of how you've made it flow with the original? Would greatly appreciate it

OP posts:
SK1987 · 26/08/2025 20:00

SK1987 · 26/08/2025 19:48

Hi yes we have permission and it is stepped back 1m per the plans. The measurements of the full room would be 1780 x 6000

Apologies just reread your post. We dont need to be 1m from boundary. Its only 50mm or something. Neighbour has already built upto the boundary

OP posts:
MrsMoastyToasty · 26/08/2025 20:42

Ours is narrow. An unmarked public sewer was unearthed during the first day of groundworks starting and everything was immediately put on hold while we got the water/sewer company to confirm if it was still in use (it was) and then dealing with planning to make the extension narrower.
Internally the bedroom is wide enough to take a single bed, but it's surrounded on 3 sides by walls. It's very snug and we can't have an oversized bed frame. So about 6ft 3 wide internally (obviously wider externally).
You take a step up from the half landing to the extension bedroom. Only annoying thing is if you're going from that room to the bathroom is you have to go down a step and immediately up a step to the main landing.
Sorry, I won't be taking pics. Adult DS won't appreciate it.

CaurnieBred · 26/08/2025 22:29

SK1987 · 26/08/2025 19:51

Thank you for this. We did consider this arrangement but then thought is it worth rearranging upstairs for a really narrow room. Assuming you have a decent sized side extension to have even considered eating into your existing bathroom?

Yes: it is narrow at the front of the house but widens out hugely towards the back.

SK1987 · 27/08/2025 11:00

MrsMoastyToasty · 26/08/2025 20:42

Ours is narrow. An unmarked public sewer was unearthed during the first day of groundworks starting and everything was immediately put on hold while we got the water/sewer company to confirm if it was still in use (it was) and then dealing with planning to make the extension narrower.
Internally the bedroom is wide enough to take a single bed, but it's surrounded on 3 sides by walls. It's very snug and we can't have an oversized bed frame. So about 6ft 3 wide internally (obviously wider externally).
You take a step up from the half landing to the extension bedroom. Only annoying thing is if you're going from that room to the bathroom is you have to go down a step and immediately up a step to the main landing.
Sorry, I won't be taking pics. Adult DS won't appreciate it.

Ah no worries. Thanks for the description though its defo helped. Now having lived with that narrow room, would you say it was worth it? How do you find living in it?

OP posts:
TedTTedT · 27/08/2025 11:58

I’d be a bit wary of a 1780mm width for a full bedroom. Technically it can work as a single, but it’s always going to feel narrow once you factor in furniture and storage. It might be better suited as a study, dressing room, or small guest space rather than a proper bedroom.

If you don’t actually need another room right now, it’s worth thinking about how much value it will add versus how much it will annoy you later if it feels too cramped. A loft conversion will cost more, but you’d usually get a decent double up there (depending on your roof height and layout). Plus, lofts can often be more flexible – you could add a main bedroom with an ensuite rather than squeezing something small on the side.

If you’re on the fence, it might be worth getting quotes for both so you can weigh the cost difference against the usable space you’ll actually gain.

New posts on this thread. Refresh page