Meet the Other Phone. Flexible and made to last.

Meet the Other Phone.
Flexible and made to last.

Buy now

Please or to access all these features

Property/DIY

Join our Property forum for renovation, DIY, and house selling advice.

Any suggests on home to improve this kitchen

19 replies

Animelover · 22/08/2025 17:18

We’re in the process of buying a property that has amazing potential, but I’m concerned about the kitchen layout. I cook a lot from scratch and use several gadgets I’d prefer to keep out on the counter rather than storing away. At the moment, I’m worried there just isn’t enough space to work efficiently.

Ideally, I’d also love to fit in a double fridge. I’m considering converting the current kitchen-diner into a full kitchen, but I’m struggling to visualise how to do this without taking too much space away from the living area, which opens directly into the dining space.

Any suggestions?

Any suggests on home to improve this kitchen
OP posts:
Geneticsbunny · 22/08/2025 17:31

Move the lounge door to lower down the same wall and swap the kitchen and dining areas.

Is bit at the bottom of the stairs a loo or a utility area? Could a fridge freezer go in there?

Animelover · 22/08/2025 17:39

It is a small pantry but it is rather small so definitely wont allow a double fridge but might allow a single standing fridge. But it would be tight and I was looking forward to a pantry 🤣

OP posts:
whatisheupto · 22/08/2025 17:50

What is the room leading off the kitchen that we can't fully see in the plan?
Is there a nice garden and if so would you like patio doors leading onto garden from the kitchen?
How much is your budget? Would it allow for knocking down and moving a wall?
Is there a chimney in the lounge?

Animelover · 22/08/2025 18:03

The room lead off is another dining room. The current owners put in a back extension and a garage conversion. I don't think we can move any of the walls as there are doors either side and the door from living room to the dining area has been enlarged to improve flow.
Budget could go up to 8000.
No chimney opening in the living room

OP posts:
WearyLady · 22/08/2025 18:12

It would help if you could post a version of the plan showing the whole of the ground floor.

eurochick · 22/08/2025 18:14

Use the whole room as a kitchen, including the current dining area within it.

MrsPositivity1 · 22/08/2025 18:17

Would this work?

Any suggests on home to improve this kitchen
Animelover · 22/08/2025 18:24

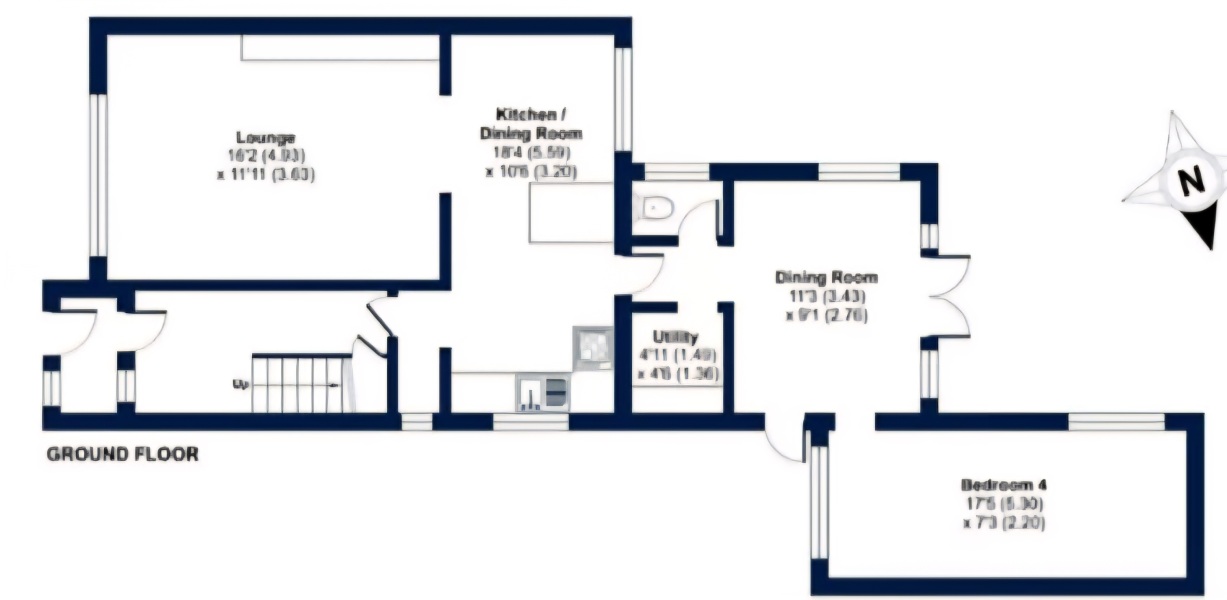
Here is the whole floor plan.
There is a lot of extension work done. Ideally my partner wants to living room door to stay the way it is as he thinks the living room feels cramped otherwise but possible to change it maybe

Any suggests on home to improve this kitchen
OP posts:
Animelover · 23/08/2025 09:32

Better image

Any suggests on home to improve this kitchen
OP posts:
FiveBarGate · 23/08/2025 19:39

If you want to keep dining in there, could you block up the door between the lounge and the kitchen diner and create an opening from the hallway for the living room (did it have one originally?)

That would give you more walls to put a sofa etc against.

I'd then wrap the kitchen in a u shape around the top part that currently connects to living room and have the table (perhaps banquet style) at the end where the sink is now.

For fridge/freezer space, we got extra in the equivalent of your back dining room. We have it as second living space as we kept the table in the kitchen.

Had a similar alcove to the one you have on the back wall where the toilet in. Here we ran a full length of wooden worktop with hidden appliances underneath (with Matt handleless cupboards so looks like a big sideboard).

We have two under counter freezers, a fridge and extra cupboard for baking/lesser used kitchen overflow. TV is above it. Not sure what else we'd have done with that space anyway other than have some kind of TV unit with space either side.

Cerialkiller · 23/08/2025 19:50

Is the bedroom 4 going to be used as a bedroom?

I would be tempted to remove the non loadbareing (I assume these are the thinner walls) around toilet and utility to make the current dining room larger to turn it into a kitchen .

Toilet, utility and pantry then go in a row at the bottom on the current kitchen diner to square it up. Could shift the corridor into the room slightly if you wanted and extra door between the dining room and toilet. Should be a nice space for a decent sized dining table and possibly more logical to have that between the lounge and kitchen.

Animelover · 23/08/2025 23:02

We are not sure about bedroom four and the minute. We might turn into an office or something else. It was previously a garage so not sure what we can do to it. We want to remove one of the dining areas as we wont need two. It just what to do with the space.

I am sort of regretting this house now as getting a nice kitchen seems like it's gonna be a bit of a headache and a lot of money.

Is the general consensus that we need to remove/add walls? And maybe extend the kitchen into the dining room or somewhere else?

OP posts:
MiddleAgedDread · 23/08/2025 23:09

£8000 is not going to sort out the horrendous floor plan of that house!

Animelover · 23/08/2025 23:27

MiddleAgedDread · 23/08/2025 23:09

£8000 is not going to sort out the horrendous floor plan of that house!

Hahaha thanks for that! Any idea how much i would need then?

OP posts:
CoastalCalm · 23/08/2025 23:32

I’d consider using the second dining space as a butlers pantry where you can have runs of low level units installed fairly cheap and have your gadgets permanently out on the surface , do your prep in there and cook in the main kitchen area - put the large fridge freezer in the dining area and a smaller drinks fridge in the kitchen

Animelover · 23/08/2025 23:38

CoastalCalm · 23/08/2025 23:32

I’d consider using the second dining space as a butlers pantry where you can have runs of low level units installed fairly cheap and have your gadgets permanently out on the surface , do your prep in there and cook in the main kitchen area - put the large fridge freezer in the dining area and a smaller drinks fridge in the kitchen

I like that idea. It might be possible to get rid of the utility room to make it a flow better and least I could look into the garden while I prep and have the double doors open in summer to keep the smells away. But I do love it good utility room hahaha 😆

OP posts:
Animelover · 23/08/2025 23:41

Or turn bedroom 4 into a butlers pantry? Or is that over the top as that is a massive room and I don't think j can justify that to everyone 🤔

OP posts:
MiddleAgedDread · 24/08/2025 07:22

Animelover · 23/08/2025 23:27

Hahaha thanks for that! Any idea how much i would need then?

I’d want to completely re figure it, the layout is hideous. It needs a door from the hallway into the living room to save you walking all the way through the to get into it.
why would you walk through the utility area and toilet get to your dining room? All that needs moving, ideally with a door out of it to the garden, and goodness knows what do with bedroom 4!! Honestly, apart from the living room I’d rip it all out, knock the walls down and start
again.

Animelover · 24/08/2025 08:05

There is a door from the hall to the living room! I didn't realise it wasn't shown on the floor plan till now.

OP posts:
New posts on this thread. Refresh page