Meet the Other Phone. Only the apps you allow.

Meet the Other Phone.
Only the apps you allow.

Buy now

Please or to access all these features

Property/DIY

Join our Property forum for renovation, DIY, and house selling advice.

Floorplan / ground floor remodelling help and ideas!

48 replies

NoPrivateSpy · 16/08/2025 17:05

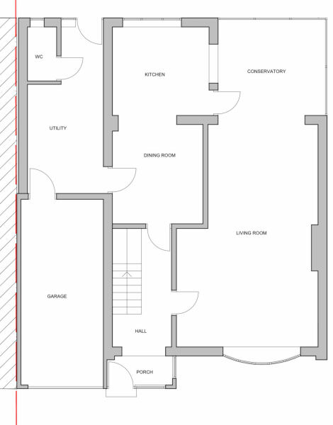
We are having our ground floor remodelled.

We have plans submitted and approved to knock the current utility wall down, replace the conservatory with an extension and create a large open plan kitchen-diner-lounge but I am worried it will now be too cost prohibitive.

We were also planning to section off the front lounge area to create a separate room.

  1. What would you do with this space?
  2. If we didn’t remove the existing utility wall, do you think the current dining room, kitchen, back lounge bit plus conservatory would be large enough for a kitchen-diner-lounge? It would be 6m by 6m.

Ideally we wanted a separate front room that we can use as an occasional bedroom.

We are not open to a garage conversion as it is joined to next door’s garage.

Any advice or help very much appreciated.

Floorplan / ground floor remodelling help and ideas!
OP posts:
Thread gallery
6
SUPerSaver721 · 16/08/2025 17:25

Your kitchen is still very small..do you not want a bigger kitchen? The garage door into garage i would move a few feet across so you can have a straight line of kitchen units.

Plantatreetoday · 16/08/2025 17:38

A comfortable size living room for a house that size is 4mx4m. So I think 6mx6m isn’t large enough
It’s all a matter of taste though. If you are happy with a small kitchen or just want a dining table tucked against a wall then it’s fine

Confused why you can’t go into the garage
I’d move the garage door to nearer the WC so you have more wall space and less routes though

In order to appreciate the space I’d move furniture around to create the dining living etc within that space. Even if all you’ve got is empty boxes it can help to appreciate the scale

Seaside3 · 16/08/2025 17:41

Why not make current utility in to a spare room, block off back door and install a downstairs shower.

Then the 'through' bit that's currently dining becomes a 2nd.kitchen/utility space and you have a kitchen diner at back, with doors into lounge.

Floorplan / ground floor remodelling help and ideas!
Advocodo · 16/08/2025 19:03

We recently did an L shape kitchen, dinning and snug area extension by removing conservatory and is approx 6.5 metres wide and 7 metres deep. This includes keeping our small utility room. I wouldn’t want it any bigger. We have a separate large lounge/diner.

Advocodo · 16/08/2025 19:22

I think,6m by 6m woukd be fine with a clever use of space, say the dinning table has a bench against the wall backing onto the new small lounge then your table. We have only a 2 seater sofa so ours is a snug rather than a full lounge.

Advocodo · 16/08/2025 19:25

if you took down your utility wall then wouldn’t your toilet be accessed from the new kitchen, dinning room and lounge. It would probably save you quite a bit of money if you didn’t take the wall down but I am no expert.

MrsPositivity1 · 16/08/2025 19:28

Would this work?

Floorplan / ground floor remodelling help and ideas!
chunkybear · 16/08/2025 19:31

I’d make the conservatory into an orangery type space and knock through to the kitchen so you could do what a pp showed on the floor plans. Having an L shaped kitchen dining area and the separate lounge. If it’s big enough I’d have a tv and couch in the orangery plus large doors onto the garden

HarryVanderspeigle · 16/08/2025 19:42

How big is the open plan kitchen area if you go with @MrsPositivity1 ? I would want to go with that plan and keep the utility, as you don't want washing machine noise in an open plan area. Then a sofa bed in the closed off front room for occasional guests.

MimiSunshine · 16/08/2025 20:15

MrsPositivity1 · 16/08/2025 19:28

Would this work?

I was going to suggest the same thing. You could put a sofa on the new wall separating the living room off. The kitchen down the left hand side and a dining table in the old conservatory space.

Plus I’d prefer to keep a utility anyway.

OP were you thinking you’d knock down the conservatory and rebuild?
could you get away with keeping it and putting a lightweight roof with insulation on and opening it up as per this plan?

Advocodo · 16/08/2025 20:37

I would try to keep the utility room too with the toilet of as per what you currently have.

NoPrivateSpy · 16/08/2025 21:43

SUPerSaver721 · 16/08/2025 17:25

Your kitchen is still very small..do you not want a bigger kitchen? The garage door into garage i would move a few feet across so you can have a straight line of kitchen units.

I don’t think I explained it that well, sorry @SUPerSaver721

This is the current floorplan. So if we knocked through to the dining room and conservatory and squared it off with the lounge, it would 6m x 6m.

OP posts:
NoPrivateSpy · 16/08/2025 21:46

@Plantatreetoday- thank you. I am not sure what you mean about the garage door?

I don’t want to convert the garage as I don’t want a living space joined to the house next door when the the rest of the house is detached. That probably doesn’t make sense!

OP posts:
NoPrivateSpy · 16/08/2025 21:48

Seaside3 · 16/08/2025 17:41

Why not make current utility in to a spare room, block off back door and install a downstairs shower.

Then the 'through' bit that's currently dining becomes a 2nd.kitchen/utility space and you have a kitchen diner at back, with doors into lounge.

Ingenious if we didn’t want to take down any walls @Seaside3

thank you - food for thought. I have toyed with having a bedroom on the side but apparently not a great idea so close to the kitchen? Not sure if that really bothers me though.

OP posts:
NoPrivateSpy · 16/08/2025 21:51

Advocodo · 16/08/2025 19:25

if you took down your utility wall then wouldn’t your toilet be accessed from the new kitchen, dinning room and lounge. It would probably save you quite a bit of money if you didn’t take the wall down but I am no expert.

Yeah, in the architectural plans they have moved the toilet to under the stairs. I think it’s going to be quite pricey. I’m too scared to get quotes 🤣

Good to know in comparison to the size of yours. Thank you for the advice.

OP posts:
NoPrivateSpy · 16/08/2025 21:52

MrsPositivity1 · 16/08/2025 19:28

Would this work?

Hello @MrsPositivity1- this is exactly what I was wondering. This layout creates a 6m by 6m space.

do you think that it is big enough for a kitchen diner lounge or just a kitchen diner?

OP posts:
NoPrivateSpy · 16/08/2025 21:57

MimiSunshine · 16/08/2025 20:15

I was going to suggest the same thing. You could put a sofa on the new wall separating the living room off. The kitchen down the left hand side and a dining table in the old conservatory space.

Plus I’d prefer to keep a utility anyway.

OP were you thinking you’d knock down the conservatory and rebuild?
could you get away with keeping it and putting a lightweight roof with insulation on and opening it up as per this plan?

Thank you. It would be 6m by 6m so I just can’t work out if that would be big enough or not for a lounge section?

I was definitely going to take the conservatory down because it was erected in the 90s I think. Although it is water tight and quite solid, it has seen better days and isn’t very attractive. I love the orangery look though so would definitely incorporate lots of glass on that side.

OP posts:
NoPrivateSpy · 16/08/2025 22:01

Thank you all so much - it’s good to hear that some people think it might be doable size wise.

I explained my post really badly but essentially the plans we had accepted remove the utility wall, place the toilet under the stairs and take out a bit of the garage for the utility room. So essentially we maintain all those things but with nearly 3m more width on the back kitchen etc. to make it 9m x 6m. That seems to make the space really generous and I am just worried it might look cramped otherwise.

OP posts:
Reallybadidea · 16/08/2025 22:02

I'm not sure that keeping the wall will necessarily save that much in the big scheme of things, I think the extension will be the major cost. There comes a point where you may as well spend a bit extra to do it properly. What does your architect say about it?

NoPrivateSpy · 16/08/2025 22:14

Reallybadidea · 16/08/2025 22:02

I'm not sure that keeping the wall will necessarily save that much in the big scheme of things, I think the extension will be the major cost. There comes a point where you may as well spend a bit extra to do it properly. What does your architect say about it?

The architect has commented that it would be much more cost effective to keep the structural walls (of which that utility wall is one). And to keep supporting columns where we can (such as between the current dining room and lounge). These are the original exterior walls of the house.

I haven’t got structural engineer plans yet though.

OP posts:
MrsPositivity1 · 16/08/2025 22:23

Chat GPT

Floorplan / ground floor remodelling help and ideas!
NoPrivateSpy · 16/08/2025 22:42

I did run it through chat GPT and got nothing very useful 🤣 Yours at least looks like a kitchen!

OP posts:
Plantatreetoday · 16/08/2025 22:45

NoPrivateSpy · 16/08/2025 21:46

@Plantatreetoday- thank you. I am not sure what you mean about the garage door?

I don’t want to convert the garage as I don’t want a living space joined to the house next door when the the rest of the house is detached. That probably doesn’t make sense!

If you move the door between garage and etg kitchen north to next to your double doors into the garden you are waisting less useable wall space
and using up less room in terms of routes around the space
Doors in the middle of kitchen walls are a pain to design around so stick it next to the double doors
It also creates more utility space for storage
and means you can walk straight into a lobby to your grd fl WC

If the garage it attached then your property is more link detached than detached but I appreciate what you mean by its perception

Plantatreetoday · 16/08/2025 22:56

You’re going to have some expensive beams to take the first floor load at that structural corner you’ve just removed.

I wouldn’t advice removing that corner @MrsPositivity1 19:28

Plantatreetoday · 16/08/2025 23:03

NoPrivateSpy · 16/08/2025 21:51

Yeah, in the architectural plans they have moved the toilet to under the stairs. I think it’s going to be quite pricey. I’m too scared to get quotes 🤣

Good to know in comparison to the size of yours. Thank you for the advice.

Re toilet moving to under the stairs

Id concider where the existing plumbing is upstairs
If any bathrooms are above or to the side of the stairs sticking a WC in at grd floor below is not expensive
If they are remote you’ll have to dig in new drainage, provide water and venting aswell = more expensive.

Id also concider all of the above if you in any way want to move the kitchen too much. Drainage and pipe work is a pain and if your grd fl construction is solid expensive to install.