Meet the Other Phone. Only the apps you allow.

Meet the Other Phone.
Only the apps you allow.

Buy now

Please or to access all these features

Property/DIY

Join our Property forum for renovation, DIY, and house selling advice.

Advice on our extension plan

24 replies

pixaar3101 · 12/08/2025 14:24

Hello Everyone,

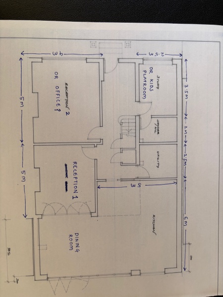
Looking for some advice on the proposed layout and usage of our ground floor space. I have attached a picture of the plan.

Essentially we have a 1930s semi that we are now extenging on the side and at the back. New space is intended to have the following: 1. Study/Office 2. Bathroom 3. Utility Room & 4. Larger Kitchen diner.

As you can see with this layout we will end up with two reception rooms. Our original reception room (Reception 2) and Reception 1. Study/Office would be smaller in this case (about 8 sqm).

We are thinking whether this still makes sense or whether to convert Reception 1 into a spacious home office/library (we both work from home twice a week - sometimes both of us work from home on the same day). This will create a very spacious office (20sqm) then free up what is highlighted as "Study" to be converted into a kids playroom/storage room.

Would you keep two separate reception rooms or a reception and a nice office/library. Most of our friends say that once you have a larger kitchen diner with seating area the formal reception room doesn't really get used so you might as well get a nicer home office/library.

Thanks a lot.

Advice on our extension plan
OP posts:
BarnacleBeasley · 12/08/2025 14:29

If this were my house, my DP and I share a study and dream of having two separate studies, so I would keep the study on the plan as a study, but also make Reception 1 into a study/library/grown-up sitting room. Reception 2 becomes the family living room. Depending on the age of the kids they'll probably play in the family room (small kids - easier to keep an eye on them from the kitchen and they tend to like to be near you anyway) or in their own rooms (if bigger kids) so the playroom would be less useful than separate studies.

pixaar3101 · 12/08/2025 14:44

BarnacleBeasley · 12/08/2025 14:29

If this were my house, my DP and I share a study and dream of having two separate studies, so I would keep the study on the plan as a study, but also make Reception 1 into a study/library/grown-up sitting room. Reception 2 becomes the family living room. Depending on the age of the kids they'll probably play in the family room (small kids - easier to keep an eye on them from the kitchen and they tend to like to be near you anyway) or in their own rooms (if bigger kids) so the playroom would be less useful than separate studies.

Thanks. Yes so we have the option to keep "Study" as an open option for now and then see whether it's better used as second office or for kids or even a temporary small downstairs bedroom for when grandparents visit (knee problems so can't climb stairs).

But what you are saying is that it does make sense to convert Reception 1 into a main office area. Our thought is that it's big enough for two sets of tables which our kids can use for homework in future.

OP posts:
BarnacleBeasley · 12/08/2025 14:48

Well, sort of, except that I'd put just one desk and work set up in there, and have lots of bookshelves and then also a comfy seating area with sofa and armchair, rather than having two workstations. Probably I'd have the desk and work stuff by the window, and then sort of divide the room with the back of the sofa.

pixaar3101 · 12/08/2025 14:55

BarnacleBeasley · 12/08/2025 14:48

Well, sort of, except that I'd put just one desk and work set up in there, and have lots of bookshelves and then also a comfy seating area with sofa and armchair, rather than having two workstations. Probably I'd have the desk and work stuff by the window, and then sort of divide the room with the back of the sofa.

okay got it. I did have something similar in mind. we do have lots of books so definitely built in bookshelves and comfy seating area to relax with a book for when it's not being used for work. thanks!

OP posts:
Pfpppl · 12/08/2025 15:42

We had a rear extension a few years ago to create a loo, utility and "snug" type area (plus a rejig of the existing kitchen and dining room). I can confirm our "formal" lounge rarely gets used. Even when we have both families over, everyone congregates in the kitchen/diner/snug. Annoys me on those occasions as we only have a large 2 seater sofa and foot stool in the snug, whereas we have 2 large 3 seater sofas in the lounge!

In your situation I'd probably make reception 2 a multi functional room - office area, sofa and play area and keep the other office separate, but it depends how much you like sharing an office with your DH. It's a nightmare when we both wfh in the same room as DH is always on video calls and has a really loud voice.

pixaar3101 · 12/08/2025 15:58

Pfpppl · 12/08/2025 15:42

We had a rear extension a few years ago to create a loo, utility and "snug" type area (plus a rejig of the existing kitchen and dining room). I can confirm our "formal" lounge rarely gets used. Even when we have both families over, everyone congregates in the kitchen/diner/snug. Annoys me on those occasions as we only have a large 2 seater sofa and foot stool in the snug, whereas we have 2 large 3 seater sofas in the lounge!

In your situation I'd probably make reception 2 a multi functional room - office area, sofa and play area and keep the other office separate, but it depends how much you like sharing an office with your DH. It's a nightmare when we both wfh in the same room as DH is always on video calls and has a really loud voice.

We don't share the office on a daily basis. Both of us can work only two days from home and we make sure these are separate days as it's easier to have some home 4 days a week to manage pick up and drop offas for kids. This arrangement will continue for forseeable future. The rare ocassion we work together is during summer when things are a little relaxed at our workplace.

Your extension sounds similar to what we are doing. Your point regarding seating capacity is noted. We have hired a designer to help us with the layout and decoration of the rooms - but the first question she asked us was how do you intend to use all the sapce, so getting clarity on this reception vs office was crucial to move forward.

Let me know if you think of anything to keep in mind specially with respect to the snug area you mentioned.

Thanks again.

OP posts:
UpUpAwayz · 12/08/2025 15:59

I may be misunderstanding but it doesn’t make sense to make reception 1 an office. It’s attached to your kitchen diner so will be the noisiest part of the house. That needs to be your main family space. Keep the office in the smaller room marked “study” and maybe have a sofabed in there for guests. Then reception 2 should be a multi-functional room that can serve as a second lounge/playroom and additional workspace when needed.

pixaar3101 · 12/08/2025 16:08

UpUpAwayz · 12/08/2025 15:59

I may be misunderstanding but it doesn’t make sense to make reception 1 an office. It’s attached to your kitchen diner so will be the noisiest part of the house. That needs to be your main family space. Keep the office in the smaller room marked “study” and maybe have a sofabed in there for guests. Then reception 2 should be a multi-functional room that can serve as a second lounge/playroom and additional workspace when needed.

Yes, I made a mistake in my OP. Reception 1 will turn into the main family area with seating / tv room etc. It is Reception 2 that we are thinking of turing into an office. Can't change it now.

OP posts:
chunkybear · 12/08/2025 16:11

I’d have one of the reception rooms as a snug, adults only, probably the one that’s opposite the office. The other I’d have as a family lounge / play room as it’s close to the kitchen so you can keep an eye on the kids when cooking etc. I’d certainly have 2 separate working spaces, my DH WFH and I usually WFH and it’s a nightmare if you have to share, so personally I’d have 2 desks in separate rooms.
quick observation, from my own home, my office is opposite master bedroom and one desk set up I had was such that behind me you could see across the corridor into our bedroom, and you could see people walking out of the en suite … my DH walked out of the shower straight into our bedroom once … thankfully I wasn’t on a Teams call 😵‍💫 … so keep your screen away from the shower room door exit 🤣

MiddleAgedDread · 12/08/2025 16:31

I think it depends how old your kids are. If you've got babies and toddlers then I'd use the reception room off the kitchen/diner as the playroom for the next few years so you can keep an eye on them while cooking etc. But if they're older then I'd be tempted to make that a more civilised reception room and put the play room as you've marked it on the plan. Could you have a desk in there doubles up for adult and child home working? I wouldn't want to share an office space on the days you both WFH. We'd get nothing done and some calls / meetings shouldn't be overheard.

MiddlingMarch · 12/08/2025 17:17

I would murder DH with a keyboard if I had to share an office with him. He is so loud.

On that basis, I would keep the study for DH. And turn the front reception into my dream library/moody sitting room with my desk and office set up in there too. A wall of bookshelves with a library bookcase I could slide along the shelving would be my dream.

pixaar3101 · 12/08/2025 17:58

Some more info and a combined reply to a few posters above. Our kids are 6 and 4 so not really where we need to contantly sight them. We can leave them in a separate room for some time and they play together. Of course there is the eventual screaming but the timespan they tolerate each other keep on increasing. So I am leaning towards the main family being a little more civilised but I still do have my doubts as to whether it will maintain its shape and assault from the kids.

We WFH together probably 6 to 7 days in a year. I don't think we need to provision for a separate study just to accommodate these special days. Husband has a fixed setup as he has Bloomberg terminal etc. Wife is more mobile and can easily move if we both have to take calls at the same time. In any case, we will put a small table in the smaller "study" so that if she has to move to take a call she has a decent place to sit down and do that - and not doing this from Kitchen island or the living room sofa for example. So point taken.

Coming back to the main topic of turning Reception 2 into main office/library, what I read here seems to validate our change of plans. We will look to turn this into a multifunctional office/library room.

Thanks for all the input so far.

OP posts:
itsgettingweird · 12/08/2025 18:17

I’d also have reception 2 as study/library/ adults room and the study as another office which can also be used by children for homework etc.

Reception 1 as the family lounge next to kitchen/diner.

as the kids get older you can always re purpose the bigger study as a teen den if the smaller office/study is enough for you and DH.

itsgettingweird · 12/08/2025 18:18

They are nice big rooms though so it’s going to be lovely deciding how to use the space.

pixaar3101 · 12/08/2025 18:27

itsgettingweird · 12/08/2025 18:17

I’d also have reception 2 as study/library/ adults room and the study as another office which can also be used by children for homework etc.

Reception 1 as the family lounge next to kitchen/diner.

as the kids get older you can always re purpose the bigger study as a teen den if the smaller office/study is enough for you and DH.

thanks - that's pretty much what we are convering on here. I feel better now. Initially I thought I was crazy to get rid of the original reception room but the more I think about how we will be using the space, this makes sense now.

OP posts:
pixaar3101 · 12/08/2025 18:29

itsgettingweird · 12/08/2025 18:18

They are nice big rooms though so it’s going to be lovely deciding how to use the space.

Thank you and I do hope so. We bought the house in 2018 and then had two kids so never really found the time to do the house nicely. Looking forward to turn it into the dream house we thought it would be when we bough it.

OP posts:
labradormam · 12/08/2025 18:32

It’s just different furniture, isn’t it?

So it’s pretty flexible and you can switch it around as needed

pixaar3101 · 12/08/2025 18:45

labradormam · 12/08/2025 18:32

It’s just different furniture, isn’t it?

So it’s pretty flexible and you can switch it around as needed

It is indeed. We just wanted some reassurance on the decision to be honest. Once it is decided, the actual transformation is not difficult.

OP posts:
menopausalmare · 12/08/2025 18:55

The utility is quite small and you'd struggle to get a couple of clothes airers plus washing machine etc in there, plus coats and boots. I'd consider making it into a pantry and maybe turning the dining room into a bigger utility room.

UpUpAwayz · 12/08/2025 19:12

menopausalmare · 12/08/2025 18:55

The utility is quite small and you'd struggle to get a couple of clothes airers plus washing machine etc in there, plus coats and boots. I'd consider making it into a pantry and maybe turning the dining room into a bigger utility room.

It looks approx 2.5 x 2.5 which is big enough for at least one airer plus a ceiling pulley providing you don’t have too many units. It feels about right for a house this size and if you sacrifice the second reception for a utility then it won’t add as much value.

UpUpAwayz · 12/08/2025 19:47

Also the kitchen looks to be 6m by 5m which is massive and so an additional pantry is unlikely to be needed. If anything you could steal some space from the kitchen to add to the utility by putting the door to the utility in the kitchen area itself and then you could use the bit where the current utility door is for extra storage.

pixaar3101 · 12/08/2025 19:58

UpUpAwayz · 12/08/2025 19:47

Also the kitchen looks to be 6m by 5m which is massive and so an additional pantry is unlikely to be needed. If anything you could steal some space from the kitchen to add to the utility by putting the door to the utility in the kitchen area itself and then you could use the bit where the current utility door is for extra storage.

Excellent point and this is precisely what my architect told me. We are going to move the kitchen wall slightly (by 0.5M) inwards to allow for a slighlt larger utility room. We will most likely end up with 3Mx2.5M, which I believe should be sufficent for a washer, dryer and drying racks and pulley maids.

@menopausalmare - valid point and as mentioned above, we are making it slighly larger. We do have a separate cabinet for coats etc. Ths square space you see next to stairs and utility is for a two-shelf pull out cabinet for coats.

OP posts:
Seaside3 · 13/08/2025 22:12

As you sometimes have family who cant do stairs, why not use the study as a spare room/kids den? Its got an 'ensuite' shower room..

Then, use reception 2 as a really nice office with book case, desk and a.comfy seating area so you can use it as a quiet 2nd reception in evening?

pixaar3101 · 14/08/2025 10:41

Seaside3 · 13/08/2025 22:12

As you sometimes have family who cant do stairs, why not use the study as a spare room/kids den? Its got an 'ensuite' shower room..

Then, use reception 2 as a really nice office with book case, desk and a.comfy seating area so you can use it as a quiet 2nd reception in evening?

Yes, this is what we have decided now. Makes complete sense and good usage of the space. Thanks

OP posts:
New posts on this thread. Refresh page