Meet the Other Phone. A phone that grows with your child.

Meet the Other Phone.
A phone that grows with your child.

Buy now

Please or to access all these features

Property/DIY

Join our Property forum for renovation, DIY, and house selling advice.

Kitchen HELP

22 replies

HAli96 · 25/07/2025 08:46

Hi all

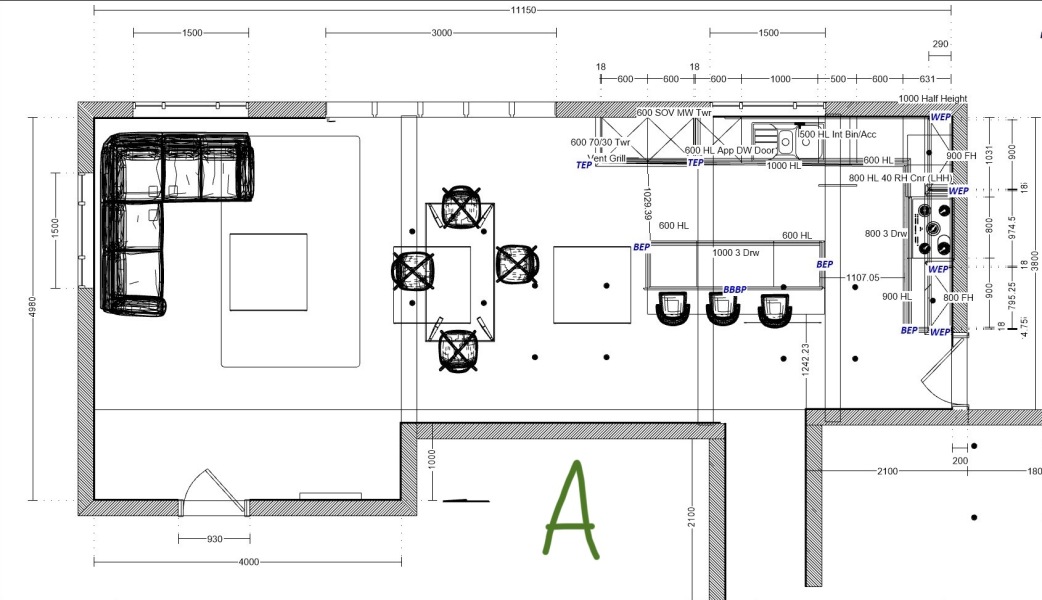
What’s people’s thoughts on these 2 plans.

Struggling to decide which side to have the kitchen on and whether the living area should be the bigger space or the kitchen as well as the practical side of both. For reference the Left side is the bigger side.

A ticks all the boxes however the stools will need to go as I think they’ll obstruct the door way - they could be 2 on the side of it instead.

B ticks all the boxes and is a bigger kitchen with bigger island etc however it’s in the far corner plus not sure on bringing shopping in etc having to walk to the far corner (I may be over thinking that bit).

I’ve attached the plans as well as the 3D images to give an idea!

I just want it to work practically as well as be a nice space to be in especially with the kids currently 2 and 4 but time flies!

would appreciate any help or advice thank you

Kitchen HELP
Kitchen HELP
Kitchen HELP
Kitchen HELP
Kitchen HELP
OP posts:
MonteStory · 25/07/2025 08:52

B because you aren’t walking through the living area to get to the kitchen

HAli96 · 25/07/2025 09:03

MonteStory · 25/07/2025 08:52

B because you aren’t walking through the living area to get to the kitchen

sorry I should have mentioned, the left door just goes into the study so the main access in and out would be the door on the right side so it would be either walking through the living area to get to the kitchen (B) or straight into the kitchen (A)

OP posts:
MonteStory · 25/07/2025 09:13

HAli96 · 25/07/2025 09:03

sorry I should have mentioned, the left door just goes into the study so the main access in and out would be the door on the right side so it would be either walking through the living area to get to the kitchen (B) or straight into the kitchen (A)

Hmmm well then A. Although I prefer the island that faces in rather than side on. Although ironically our kitchen designer has also turned our island side on so maybe my ergonomics/feng shei is off

HAli96 · 25/07/2025 09:18

MonteStory · 25/07/2025 09:13

Hmmm well then A. Although I prefer the island that faces in rather than side on. Although ironically our kitchen designer has also turned our island side on so maybe my ergonomics/feng shei is off

Yea feng Shei is important which is why initially I had thoughts of coming through the door and having the island side ways although there is space to go around it/leading up to it.

we tried a peninsula as well but that would mean compromising the higher up oven and fridge freezer to make it work which I wasn’t keen on.

B is the bigger kitchen with big island which i prefer it’s just being on the left and having to walk past the living area and table before getting to it. Certainly harder to make a decision than I anticipated 😭

OP posts:
LadyDanburysHat · 25/07/2025 09:23

A is more practical, as I wouldn't want to have to walk through the living area with all my shopping etc. But with both I would wonder how important are the stools at the island, given the dining table is steps away. I don't think they will be used.

Advocodo · 25/07/2025 09:30

I like B best because as you said A you have to walk past the lounge. Also if you want to pop into the kitchen for a drink etc B woukd be easier? How often would people be sitting in the chairs to be an obstruction especially when you have dining room nearby. However is in A the kitchen near the garden back door? That would be useful for children running in and out in the summer needing a drink etc.

ButtSurgery · 25/07/2025 09:31

Neither, because I'd want the kitchen separated from the living room for smells, noise, privacy etc.

Iclyn · 25/07/2025 09:33

Can I ask why 2 separate seating arrangements ?

HAli96 · 25/07/2025 09:33

LadyDanburysHat · 25/07/2025 09:23

A is more practical, as I wouldn't want to have to walk through the living area with all my shopping etc. But with both I would wonder how important are the stools at the island, given the dining table is steps away. I don't think they will be used.

Yea I agree, I think in kitchen A especially, the stools would be lost to make more room.

and totally agree with the shopping side and bringing it round, definitely a valid point hmm

OP posts:
Larooba · 25/07/2025 09:35

Honestly I don't know much about feng shei but I would go for B. Firstly your view into the room would be the relaxing lounge bit not the kitchen. You get more kitchen and although you might feel like it has enough storage you would be amazed at how much space your things take up. I doubled the size of my kitchen and a decade later every cupboard is full.

B also looks better from the images and I prefer the way the island goes across the room as opposed to with the room in A which makes A look longer and more narrow.

I think you are getting too hung up on the walking though the lounge to get to the kitchen but it is all one large space. I have lived in a house with no hallway so through the front door into a small hall then into a lounge, dining room and into the kitchen. It is so not an issue.

HAli96 · 25/07/2025 09:35

ButtSurgery · 25/07/2025 09:31

Neither, because I'd want the kitchen separated from the living room for smells, noise, privacy etc.

There is a separate living room this is just additional open family space

OP posts:
Advocodo · 25/07/2025 09:36

ignore my previous . I think the one where you walk straight into the kitchen woukd be more practical. Are you sure that you want stools with young children around clambering all over them especially when you have a dinning table nearby. I chose not to have stocks but extra storage instead where children’s jigsaws, games coukd go instead. Extra storage is always useful.

LadyDanburysHat · 25/07/2025 09:37

If there is an additional living room, then I change my mind to B. The kitchen should be the main part of the room. I assumed it was the only living space and would want a larger seating area. But if this is just additional, go for B.

january1244 · 25/07/2025 09:37

Do you have another seperate lounge, or will this be your main lounge? I prefer the bigger kitchen, however if it’s your only lounge, you probably wouldn’t want it to be a corridor

HAli96 · 25/07/2025 09:40

january1244 · 25/07/2025 09:37

Do you have another seperate lounge, or will this be your main lounge? I prefer the bigger kitchen, however if it’s your only lounge, you probably wouldn’t want it to be a corridor

Edited

Yea totally agree, There is another complete separate living room. This would just be the more social family space for the kids as well as if friends are over.

OP posts:
HAli96 · 25/07/2025 09:42

Iclyn · 25/07/2025 09:33

Can I ask why 2 separate seating arrangements ?

Which do you mean sorry?

OP posts:
january1244 · 25/07/2025 09:42

In that case I’d go for the larger kitchen (we did), and I love it. People congregate in the kitchen when they come over, and it seems like the sofa area is for guests and children, so not a big deal to walk through it

FruityPooty · 25/07/2025 11:03

I prefer A. I think you could keep the stools at the island as long as they are just bar stools rather than high dining chairs. They could be scooted out of the way when not in use. Like these: mango wood bar stools

The layout of A flows better because the busy end is on the right and the relaxing end on the left. If you are sitting at the island of A then you have a better view out the windows. B's island faces the kitchen with backs to the rest of the room. If you envision entertaining in the space then A is better suited.

Iclyn · 25/07/2025 11:21

HAli96 · 25/07/2025 09:42

Which do you mean sorry?

Maybe it's the way I'm seeing it !
To me it looks like you have a table with chairs and then a breakfast bar / island with chairs .

MH0084 · 25/07/2025 11:25

Since you have another living room, I would go for the option that emphasises more kitchen and dining area. It seems like it's option A, specially as you said, you can walk straight into the kitchen.

LibertyLily · 25/07/2025 12:06

I hate having to walk through a living space to get to the kitchen, so definitely A for me - although I'd lose the island stools as they seemsuperfluous.

Similar to a previous poster, we previously owned a large cottage with small lobby-style hall where the only door off it originally opened into the main living space, with the kitchen beyond the dining room.

Unlike that poster though, we found it a real faff so we completely reconfigured the layout, so the kitchen - with large island - was the first room you entered. It was great coming in and dumping shopping bags onto the island, instead of traipsing past sofas etc. At the far end we had a cosy seating area by an original fireplace with wood burner (originally we had a large dining table instead of the sofa, but two sets of dining chairs/stools felt like overkill).

This setup worked so well for us (plus our buyers last year loved it) that we're currently doing similarly in our downsize cottage, albeit without the island but where the kitchen table is the drop-off point you arrive at first.

HAli96 · 25/07/2025 12:15

LibertyLily · 25/07/2025 12:06

I hate having to walk through a living space to get to the kitchen, so definitely A for me - although I'd lose the island stools as they seemsuperfluous.

Similar to a previous poster, we previously owned a large cottage with small lobby-style hall where the only door off it originally opened into the main living space, with the kitchen beyond the dining room.

Unlike that poster though, we found it a real faff so we completely reconfigured the layout, so the kitchen - with large island - was the first room you entered. It was great coming in and dumping shopping bags onto the island, instead of traipsing past sofas etc. At the far end we had a cosy seating area by an original fireplace with wood burner (originally we had a large dining table instead of the sofa, but two sets of dining chairs/stools felt like overkill).

This setup worked so well for us (plus our buyers last year loved it) that we're currently doing similarly in our downsize cottage, albeit without the island but where the kitchen table is the drop-off point you arrive at first.

Edited

yea it’s a great point - the stools will definitely go if we did option A.

my only thing is the island is only 600mm wide. It’s 2m which is a decent length but don’t want it to feel long and thin if that makes sense.

if both the right and left were the same size then we would do kitchen B design where A is. But as A is slightly thinner (approx 1m) the design is different. But totally agree with what you are saying. I just want it to be a used inviting space not a space that isn’t used

OP posts:
New posts on this thread. Refresh page
Swipe left for the next trending thread