Meet the Other Phone. A phone that grows with your child.

Meet the Other Phone.
A phone that grows with your child.

Buy now

Please or to access all these features

Property/DIY

Join our Property forum for renovation, DIY, and house selling advice.

Last minute change of heart on kitchen layout. Need help deciding!

69 replies

vera16 · 16/07/2025 10:04

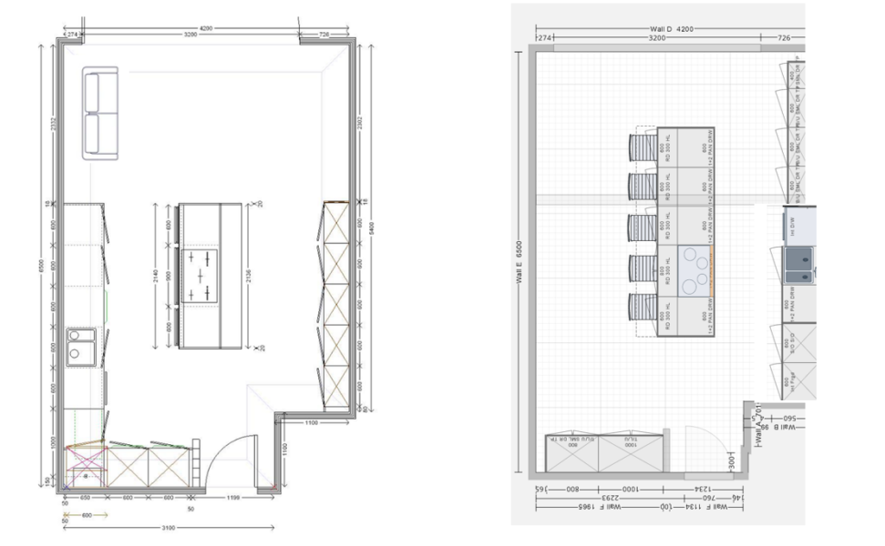
Electrician coming tomorrow to run cables and after marking out the floor plan with tape I am thinking that the layout looks cramped. I am trying to squeeze in a sitting area and a kitchen island but actually I think both are compromised. I have redrawn with just one large feature island and I think I prefer it but not sure if I'm just having a last minute panic! If you have a minute please can you help me out by saying which layout you prefer and why? Left is island plus seating area. Right is island only. Thanks.

Last minute change of heart on kitchen layout. Need help deciding!
OP posts:
Thread gallery
17
Michele09 · 16/07/2025 10:55

Could you have a small island as a working area then a dining table at right angles in the big space at the bottom? Hard to tell if the space is feasible without seeing it. Pic 2 looks like you have lost all units on lhs.

vera16 · 16/07/2025 10:57

I would probably have some shelving/shallow units on the long empty wall on right hand picture.

OP posts:
Drivingthevengabus · 16/07/2025 10:59

What's the gap between the island and the units on the original? I wonder if your re-drawn option will look odd with one big long blank wall on the left. Personally I prefer the original. You'll have space for a TV (if you want it) opposite your sofa. Although what are you doing about a dining table?

Drivingthevengabus · 16/07/2025 10:59

Ah crossed posts with you about LH wall.

FuzzyPuffling · 16/07/2025 11:00

Michele09 · 16/07/2025 10:55

Could you have a small island as a working area then a dining table at right angles in the big space at the bottom? Hard to tell if the space is feasible without seeing it. Pic 2 looks like you have lost all units on lhs.

This is roughly what I have in my kitchen and it works very well. The "activity" area being separate from the "sit and eat/chat" area means you're not tripping over people.

My small island is a free standing butchers block type thing, that I was lucky enough to pick up in a junk shop for a bargain price.

Zempy · 16/07/2025 11:01

I wouldn’t have an island at all tbh

vera16 · 16/07/2025 11:04

Drivingthevengabus · 16/07/2025 10:59

What's the gap between the island and the units on the original? I wonder if your re-drawn option will look odd with one big long blank wall on the left. Personally I prefer the original. You'll have space for a TV (if you want it) opposite your sofa. Although what are you doing about a dining table?

On the original the gap is 100cm which means the island is restricted to 90cm width. I have just read that the minimum recommended for a hob is 100cm so its definitely on the small side.

OP posts:
MaJoady · 16/07/2025 11:04

What do you want to use the space for? Option 1 doesn't seem to have anywhere for eating

Personally, I have a pet hate of big islands (if you have to stretch to reach the middle, it's too big imo) so would consider scrapping the island in favour of a dining table. Unless you have a dining room that you use regularly elsewhere.

I'm which case, option 1 looks better than 2 (is someone really doing eat a meal sat opposite the hob?)

bilbodog · 16/07/2025 11:05

I prefer the first layout. Ive seen a number of houses on rightmove with the larger island and nothing on the left hand wall and it just looks like a waste of space ‘corridor’ to me. It seems to be a current trend. Much prefer a dining/seating area near the garden doors.

1apenny2apenny · 16/07/2025 11:12

Also prefer the first one. Do you have to have the cooking in the centre island? How about putting it on the left wall? Where is the fridge?

vera16 · 16/07/2025 11:13

I do agree that a dining table near the window would be nice but it would make the room look even more cramped I fear. The width availablable at the end of the room is only about 2.4 m.

OP posts:
minipie · 16/07/2025 11:55

I prefer the first one too

I think having space for seating or a dining table in your kitchen makes it so much nicer

Is the gap 100cm on both sides of the island?

minipie · 16/07/2025 12:02

Actually I do prefer having the main run of units on the right hand side so I’d do option 1 but flipped so main run is on the right and shallow cupboard/shelves on the left

Agree you need somewhere to eat, can you fit a small round table in maybe.

I don’t like the 5 bar stools in option 2, nobody will want to sit in a line like that. if you go with option 2 then make the island wider and have bar stools going round the corner

BarnacleBeasley · 16/07/2025 12:04

With a smaller space than yours but a similar issue, we went for a peninsular instead of an island - you could have this sticking out from the left-hand side, and it would demarcate the seating area while still allowing space to walk through from the door to the windows at the end.

PragmaticIsh · 16/07/2025 12:08

Agree with @BarnacleBeasley , I'd scrap the island (it's all too tight) and have a peninsular. Have fixed bench seating on the other side of the peninsular part and a dining table. Way nicer to have people eating there than in a row at an island with a hob on it.

GoldDuster · 16/07/2025 12:24

I'd sack the island. Unless you've got a whacking great big room, it's always going to look a bit shoehorned in. In version 2 there's no where near enough space between the island and the units on the right hand side for it not to feel cramped. Also sitting in a line is like waiting for a bus, I'd much prefer something to sit round.

You've only got so much room to work with so like everything, you need to compromise, how do you behave in the space? Do you need another sofa? Would you even use a dining table? Do you cook loads? How many people are generally in the kitchen at once trying to get past each other?

JollyMollyPolly · 16/07/2025 12:24

I used floorplanner to visualise my new kitchen becasue you can view it in 3D. I would also look at a penisular, small islands can look a bit lost, the large island would look ok if you had a much bigger space.

Travellingraspberry · 16/07/2025 12:29

Is losing the island and extending the units across an option? Will give you more floorspace in the kitchen area but still keep your seating area

Last minute change of heart on kitchen layout. Need help deciding!
vera16 · 16/07/2025 12:39

I was originally going for the peninsular but I really don't like all the corners and sitting with your back to the outside view. I have added some seating into the right hand design. Either a smaller island plus table, or a funky perpendicular add on the island.

Last minute change of heart on kitchen layout. Need help deciding!
OP posts:
BarnacleBeasley · 16/07/2025 12:43

We don't actually sit at our peninsula facing away from the windows, we've put built-in banquette seating behind it in an L-shape (back to the peninsula and along the wall) and put a dining table there. That means we can sit looking out to the garden, but there's still space to use the rest of the space as a living area.

FuzzyPuffling · 16/07/2025 12:45

We had a peninsula just like that when we moved in and I hated it. It felt pointless, made the dining area tight, too many corners, and made the space feel much smaller.
So glad when it got ripped out!

But that's just me.

Loveduppenguin · 16/07/2025 12:48

What about a built in corner table and banquet seating by the door and move down the island or make it smaller….see pic

Last minute change of heart on kitchen layout. Need help deciding!
vera16 · 16/07/2025 12:55

Loveduppenguin · 16/07/2025 12:48

What about a built in corner table and banquet seating by the door and move down the island or make it smaller….see pic

I do really like this! However the sink needs to go near to where it is because that section of the wall is recessed. The wall near the large sliding door is only 45cm deep.

OP posts:
vera16 · 16/07/2025 12:59

This image shows the recessed section of the wall a bit better.

Last minute change of heart on kitchen layout. Need help deciding!
OP posts:
minipie · 16/07/2025 13:00

BarnacleBeasley · 16/07/2025 12:43

We don't actually sit at our peninsula facing away from the windows, we've put built-in banquette seating behind it in an L-shape (back to the peninsula and along the wall) and put a dining table there. That means we can sit looking out to the garden, but there's still space to use the rest of the space as a living area.

This sounds great