Meet the Other Phone. Protection built in.

Meet the Other Phone.
Protection built in.

Buy now

Please or to access all these features

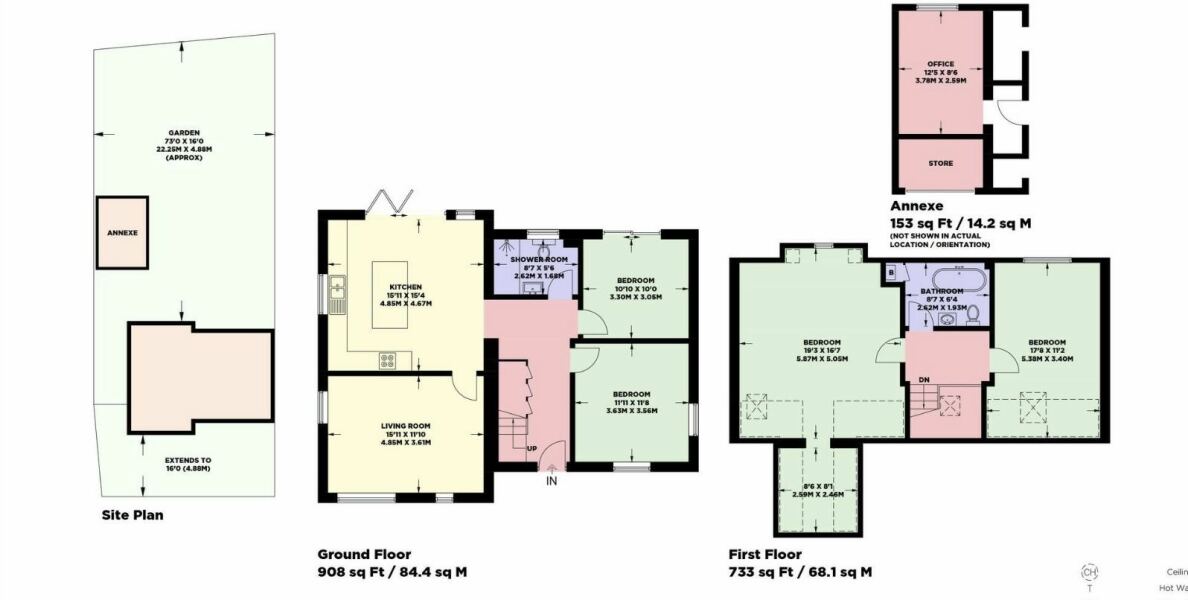
Property/DIY

Join our Property forum for renovation, DIY, and house selling advice.

Who would you put where - now and when they’re teenagers

10 replies

Bathroomq · 30/04/2025 17:57

Hi all.

We've had an offer accepted on a bungalow, which wouldn’t be my first choice but it’s slim pickings where we want to move.

I think we’ll put the kids upstairs (DD4 and DS6) sharing a room and we’ll have the other to start off with, but what about when they are teenagers? We absolutely need one property spare room and would love two (DH is a snorer and we have visitors for a month at a time a few times a year), but I think the downstairs rooms are a bit small and would also love to give the kids a playroom/ hang o it room.

Would love some ideas!

Who would you put where - now and when they’re teenagers
OP posts:
TheMagicDeckchair · 30/04/2025 19:44

Those bedroom sizes downstairs look fine, big enough to fit a double bed in and you could get a high sleeper with desk underneath when they’re older.

Can you convert the annex into a separate suite, with or without a bathroom for guests, teenage annex etc?

Looks like you have plenty of room to play with here.

Bathroomq · 30/04/2025 19:45

Thank you, that’s really reassuring

OP posts:
Rellotello · 30/04/2025 19:59

What does the external look like with windows and dormers? Similar position with young kids and we turned the 2 beds upstairs in our bungalow into 3 beds by splitting the biggest and adding windows. Adding dormers would have given us 4 beds but couldn’t afford it at the time

parietal · 30/04/2025 20:54

If there is scope to add an extra window in the big upstairs bedroom, it do that and also split the room into 2 for the 2 kids.

Bathroomq · 30/04/2025 21:32

There are windows at either end of the big room so could totally be split. Interesting you’ve done that @Rellotello!

OP posts:
Rellotello · 01/05/2025 21:26

We’ve ended up with a single and two doubles upstairs and it works really well. If we’re still here when the kids are teenagers our plan is then for us to move into one of the bedrooms downstairs (currently playroom) and they can have the two doubles upstairs. It feels really flexible for resale too.

Notyetthere · 02/05/2025 15:23

We have two small double bedrooms, a small office and bathroom upstairs in our dormer bungalow. Our two DC(4 and 8 year old) have these bedrooms. We have our bedroom on the ground floor.

GreenShadow · 03/05/2025 17:30

Yes, family bedroom allocation in dormer/chalet bungalows can be interesting.
When we first moved in our we ended up with the two younger children downstairs (8 & 11) and us and older DS upstairs. Most people wouldn't go for that option but it did work for us.

Caspianberg · 03/05/2025 17:40

I would probably have your bed downstairs now.
Guest room / downstairs playroom downstairs - get a bed that folds up into wall. So it’s a proper bed. But can use as playroom day to day the rest of the time.

Child bedroom each upstairs - as bedroom each you don’t need as much stored in playroom.

We have similar with a playroom/ guest room. We have a decent corner sofa bed instead.

Then kids can all head upstairs and play also as they grow on play dates. And use downstairs playroom day to area more for setting up bigger things like car track, games etc than can be moved as needed. We have kids books in there also

Gloschick · 03/05/2025 17:51

I would have everyone upstairs for now. You can have a good 4 years of sharing a room, then 1 guest room and one playroom downstairs.
When they are older, claim both downstairs rooms for the grownups. So you can sleep in separate rooms a lot of the time if snoring gets worse, and spread out your things over 2 rooms so it doesn't feel squashed. When you have visitors, you both sleep in the front room, leaving the room nearer the bathroom for guests.

New posts on this thread. Refresh page