Meet the Other Phone. Flexible and made to last.

Meet the Other Phone.
Flexible and made to last.

Buy now

Please or to access all these features

Property/DIY

Join our Property forum for renovation, DIY, and house selling advice.

Floor plan help / suggestions

10 replies

spm20 · 28/04/2025 16:05

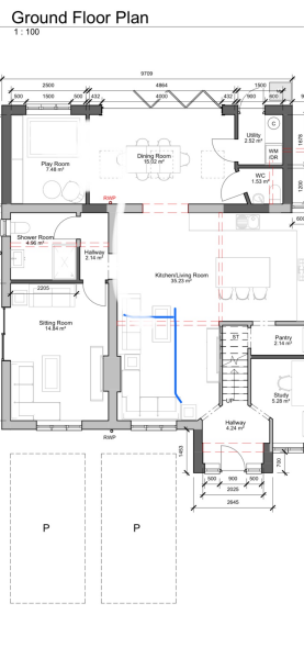
We have recently purchased a 1970s semi-detached house, which already had an existing side extension. We are planning to extend the property further to the rear, and as part of the project, knock through the walls between the kitchen and dining room, and between the dining room and living room.
Our architect has drawn up initial plans based on this idea. However, I’m now considering a different approach; instead of opening up the dining room and living room completely, I’m thinking about keeping a wall between these two spaces. This would allow us to create a small hallway, one corridor leading into the kitchen/dining area, and another leading into the front room. The front room would eventually be used as a playroom or family room.
I've attached the floor plans our architect created. The blue line on the plan shows where we are proposing to add the wall to create the hallway.
I’m just wondering, would it be a bad idea to lose some space in order to create this hallway? Can anyone suggest any other layouts that may flow better?

Floor plan help / suggestions
OP posts:
SpidersAreShitheads · 28/04/2025 16:46

Could you upload a plan of what it looks like at the moment? There's quite an awkward flow to what you have suggested above.

PixellatedPixie · 28/04/2025 16:49

I would not take away living space for a hallway! I would put the dining area into the kitchen so that all the eating and food prep takes place there. You have a separate sitting room and then could make the whole long room into a playroom which is a godsend with kids even when they get older!

Bruisername · 28/04/2025 16:55

I wouldn’t have that toilet opening into the living space given you have a toilet downstairs already

i also don’t like the dining room opening into the garden like that and would prefer that to be living space

and I don’t think you need a hallway as suggested

spm20 · 28/04/2025 17:45

@PixellatedPixie wouldn't that area be very big for a play area? I was going to have a seating / sofa area in that area as well as a dinning table but would that not work?

OP posts:
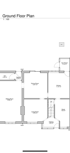
spm20 · 28/04/2025 17:46

Heres an image of the existing floor plan

Floor plan help / suggestions
OP posts:
SpidersAreShitheads · 28/04/2025 17:47

Bruisername · 28/04/2025 16:55

I wouldn’t have that toilet opening into the living space given you have a toilet downstairs already

i also don’t like the dining room opening into the garden like that and would prefer that to be living space

and I don’t think you need a hallway as suggested

I was thinking similar. That's why I'd like to see the current floor plan to see what OP is working with.

littlemissprosseco · 28/04/2025 17:54

Move the shower room/ loo into the ‘hallway’ build cupboards around for coat and shoe storage, then you have a big practical hallway. You then also have a very big new living which won’t feel as awkward as it’s off the main kitchen area

spm20 · 28/04/2025 18:03

Oh just to add we have decided against putting a second toilet off the utility as it just doesn't flow very well and yes I also don't want a toilet opening up in the kitchen are.

OP posts:
spm20 · 28/04/2025 18:04

@littlemissprosseco I would need to create a hallway then to access the kitchen / dinning area or it would be open plan from entering the room to the left.

OP posts:
littlemissprosseco · 28/04/2025 18:11

In a way you would but it wouldn’t have to be as log as the one you’ve drawn. Your blue line could just extend half way towards the front door, the rest of the hall would be large and open.
Or you could access from the dining area? But I don’t think building regs will allow that

New posts on this thread. Refresh page