Meet the Other Phone. Only the apps you allow.

Meet the Other Phone.
Only the apps you allow.

Buy now

Please or to access all these features

Property/DIY

Join our Property forum for renovation, DIY, and house selling advice.

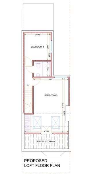
L shaped loft conversion layout advice – 5 options, Views please

14 replies

Saf06 · 23/04/2025 23:49

Hi all,

We’re planning a loft conversion in our Victorian terraced house and I’ve had five draft layouts drawn up based on our space and needs (see below). I’d really appreciate any thoughts or experiences you’re happy to share.

Quick context:

  • Victorian terrace with 4.25m outrigger
Current layout:
  • Ground floor: through lounge, small WC under stairs, kitchen
  • First floor: 3 bedrooms (large front, medium middle, small rear) and 1 bathroom
  • Household: 2 adults, 3 daughters and a baby son
  • Plan: convert loft into 2 bedrooms and 1 bathroom. One room will double as a study/guest room for visiting in-laws.

Key aims / constraints:

  • Maximise natural light in the main bedroom – ideally with a full-size window, not just rooflights
  • Add a second family bathroom (not en-suite)
  • Bathroom can’t go at the front due to limited head height
  • Ideally avoid using the best space (light/head height) for the bathroom
  • Hoping to stretch the budget to include A/C, as I have read the top floor gets hot in summer
  • Planning to add a window at the rear of the outrigger for extra light
  • If we add a window to the right side of the outrigger (shown in plans), it’ll be frosted for neighbours privacy

The 5 layout options are below. I’d love your views – especially around:

  • Preferences
  • Functionality
  • Natural light
  • Any clever design ideas that worked well in your own loft

Thanks so much in advance! Any feedback really appreciated.

L shaped loft conversion layout advice – 5 options, Views please
L shaped loft conversion layout advice – 5 options, Views please
L shaped loft conversion layout advice – 5 options, Views please
L shaped loft conversion layout advice – 5 options, Views please
L shaped loft conversion layout advice – 5 options, Views please
OP posts:
itsgettingweird · 24/04/2025 04:22

I prefer option 5. Window has a bathroom and both rooms are bigger and more equal in size. Allows for one of those rooms to be a permanent room if 2 children want to move up there and your current small bedroom becomes the guest.

Id make the bath have a shower over it offering g both bath and shower.

Caspianberg · 24/04/2025 04:47

Option 1. Otherwise the others cut wierd shapes into bedrooms making then awkward to use. Plus bed 5 won’t have a window to see out in option 5.

Will you not use both bedrooms for children? I wouldn’t have one left empty for occasional guests if children are then sharing small rooms

GettaWok · 24/04/2025 05:33

Which option allows you to have a king size bed you can walk either side of in the main bedroom?

BigRenoLittleBudget · 24/04/2025 05:46

It really depends on what those specific bedrooms are actually going to be used for. If bed 5 is going to be a permanent childrens room and bed 4 will be the spare then option 1 makes sense. If they are both going to be used on a day to day basis then they need to be more equal in size so option 3 or 4 makes sense.

You also need to think about whether you’re concerned about resale value or not. If you are then you arguably should be trying to get two decent sized double rooms rather than one big generous room and a second smaller room. It sounds like your master bedroom is the front bedroom on the first floor so after that you’d want to maximise the number of good sized double rooms so you have: master bed, three further doubles, one single rather than master bed, two further doubles, two singles. You can only really market a bedroom as a true double if you can walk round both sides of a double bed and also fit in some other furniture like wardrobe etc.

If you already have a main bathroom on the first floor with a bath then there’s no need to make this second bathroom particularly big IMO. However I personally prefer bathrooms to have a window.

BigRenoLittleBudget · 24/04/2025 05:57

Further thoughts… option 4 (I think) that has the bathroom effectively in the middle of the floorplan is very odd and although it includes a window for the front bedroom that space is wasted IME.

on the other plans it’s hard to comment because we can’t really see how limited the head room is in the front bedroom so not sure where a double bed could easily fit. I’m tempted to go with option 5 as my preference but if that would mean head height very limited to access the bed then maybe not. Can you get this added to each of your drawings? Our draghtsman added a double sized bed to our drawings and it was really helpful to try to visualise how big the space was for each prooosal.

Saf06 · 24/04/2025 11:16

Thanks all,

I’ll try to respond to the points raised above (though I realise we won’t be able to tick every box).

Option 5 seems to be the standard choice in my area, but we’re really hoping to have a proper window in the room, if that’s possible.

Our current thinking is to have the two girls share the largest room, with the other two having a (smaller) room each — just to keep things fair.

All the options should allow for a king size (1.5m wide) or double (1.35m) bed in the main room. It’ll be a tight fit in the smaller room under Option 1, though.

We hadn’t considered resale value — thank you for raising that. It’s definitely worth looking into whether any of these layouts could negatively impact that.

In terms of head height: at the moment, the eaves storage starts at 1.1m. The next dotted line marks the point where the space becomes usable (where most people can stand comfortably).

OP posts:
GettaWok · 24/04/2025 16:23

If the loft bathroom is going to be regularly used, I'd try and go for an option that has a window. Victorian houses don't do well with excess moisture lurking about the house.

Chewbecca · 24/04/2025 16:28
  1. but with a window added to the bathroom - is that possible?

I dislike the irregular shaped bed 5 and the idea of not having a window on a flat wall.

Saf06 · 24/04/2025 16:44

GettaWok · 24/04/2025 16:23

If the loft bathroom is going to be regularly used, I'd try and go for an option that has a window. Victorian houses don't do well with excess moisture lurking about the house.

Thanks - I’ll ask to add a window to the bathroom

OP posts:
Geneticsbunny · 25/04/2025 00:40

1 and 5 are the only sensible options. The rest just look like drug induced fever dreams. Depends if you want a smaller and a bigger room or two more equal sized rooms.

Littlebeausheepish · 25/04/2025 11:49

Option 5! If kid bedrooms, then both can fit enough in, plus I think you actually have an option for king bed in both if did want to switch to a guest over time. Although I actually think most of these options will be great :) Very lucky to have these options and excited for you to have this extra space! If you have a bath elsewhere in the house, then leave the bath :)

Enjoy!

JustLikeThatBluebird · 26/04/2025 14:38

1 or 5, the others are all really oddly shaped and leave you with awkward spaces. If it were me, I'd probably go for option 5 but I'd try to rearrange the bathroom so the door opens along the long wall, not the side wall.

Dinnerplease · 27/04/2025 09:27

Option 5 but also make all the doors pocket doors to save space and make the central area neater.

sellotape12 · 16/11/2025 19:30

What did you go for, OP? And are you happy? We had theses layouts too and ummed and ahhed so much. We wanted the main room under the eaves to benefit from an additional proper window, but in the end the only way to do that was to make the ensuite/ shower room teeny tiny. Most people told us that when kids get older you'll want a proper additional bathroom (alongside existing one) so we went for

  • double in the dormer room
  • bigger bathroom off the landing (not en suite)
  • still get a double at the front of the house, Velux only

only just started building works though so who knows if it's the right choice

New posts on this thread. Refresh page
Swipe left for the next trending thread