Meet the Other Phone. Only the apps you allow.

Meet the Other Phone.
Only the apps you allow.

Buy now

Please or to access all these features

Property/DIY

Join our Property forum for renovation, DIY, and house selling advice.

Floorplan help please

8 replies

Heavycream · 21/04/2025 13:37

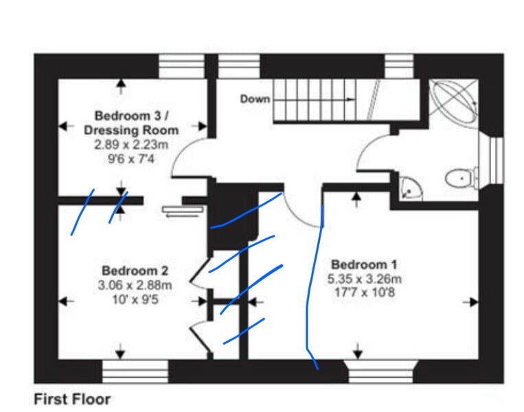
I'm looking at a house next week and trying to figure out how I could rejig the upstairs.
Have always wanted a big bedroom & big bathroom, I don't really have guests and looking to enjoy the house for many years to come so just want to rejig for me. I realise that the house will lose value by loosing bedrooms but don't think I care.
Can anyone help with ideas for big bedroom, big bathroom and a smaller office room please?

Floorplan help please
OP posts:
TwoBlueFish · 21/04/2025 14:41

Is the kitchen underneath the current bathroom? Is there a downstairs toilet that guest could use?

remove walls between bed 1 and 2 and bed 2 and 3. Partition bed 1 to make a new bathroom with a window. Remainder of bed 1 gets added to 2 & 3 for large main bedroom and bathroom becomes office. If there’s a downstairs toilet then bathroom is ensuite, if not then add a door from the hallway.

whats the dark part in the middle of the floor plan? Is it a chimney?

Floorplan help please
Heavycream · 21/04/2025 15:24

@TwoBlueFish thanks. I've attached the ground floor layout so hopefully clearer. The current bathroom is above the sitting room and the dark bit probably is the chimney yes.
I'll try to figure out how the pipes are run when I view this week.

Floorplan help please
OP posts:
parietal · 21/04/2025 22:30

if you aren't bothered about your bathroom being ensuite, I'd merge bed 2 and bed 3 into your one big bedroom. don't move the chimney because that will be VERY expensive and complicated and disruptive.

then you could take a chunk off both the hall and bed 1 to make the bathroom bigger but keep it in the same location to save on having to re-arrange all the plumbing.

you'll be left with a slightly smaller bed 1 as your office / guest room.

HolidayHappy123 · 21/04/2025 22:50

Combine bedrooms 2, 3 and a chuck of room 1 to make a large bedroom/dressing room/bathroom suite. I’d use most of bedroom 2 for your bathroom with a beautiful freestanding bath in front of the window. The strip from bedroom 1 could be your dressing room as it doesn’t need a window.

The remainder of room 1 can be used as a bedroom or study depending on your requirements. I’d put a small sofa bed in there in case you have guests (e.g. a one-seater Langrid from Willow and Hall) together with a desk and office furniture.

I’d remove the bath from the current bathroom and replace it with a shower cubicle as you will have a bath in your en-suite.

MouldyCandy · 21/04/2025 23:00

Just incase you haven't noticed, Bed2 is only accessible via Bed3. It's therefore a 2 bedroom house and any offer should reflect this.
It could be that this a just a stud partition wall and therefore easy to remove (although making good to ceilings, wall, floor is another matter).
There seems to be a sink in the study so possibly suitable pipework there too to make Bed1 your bathroom.

user1471548941 · 22/04/2025 00:37

We basically have the same layout except Bed 2 is accessible directly from the landing. We installed a brand new bathroom in Bed 3- walk in shower, free standing tub etc. Old bathroom is currently becoming dressing room. Bed 2 is a guest room with storage so study for you.

We have Bed 1 as a lovely master with no furniture in except super king sized bed, bed side table and ottoman and it feels luxurious!

Heavycream · 22/04/2025 09:19

Thanks to all, lots to think about there. @user1471548941 luxurious feeling is exactly what I'm wanting. For the first time ever I don't have to be practical and can do what makes me happy ( funds allowing! ).

OP posts:
OttersAreMySpiritAnimal · 23/04/2025 22:41

I'd put a new bathroom in bed 2. Take the wall out between bed 3 and the hallway and make that the office space (or adjust the wall between hall and bed 3 to make the door to the new bathroom accessible from the hallway if you need the office space to be enclosed. Or you could make it a jack and Jill bathroom by adding a door from bed one and then no access from the hallway would be needed).
Then I'd take out the old bathroom, remove the wall between it and bed one. I'd also remove the wall between bed one and the hallway and reposition it much closer to the head of the stairs, past the existing doorway to bed one. The new doorway to bed 1 would bed directly opposite the door to bed 3 on the current floorplan, this would make one huge room in that space without having to work around that fireplace. I'd fit wardrobes all along one wall, if doing the door to the new bathroom from that huge bedroom it'd be that wall as I love the aesthetic of cabinets surrounding a doorway and making it look really deep. Or you could put in frosted french doors to the new bathroom, that'd look very lux.
I'd probably add a reading nook where that corner bath is, and I'd be really tempted to squeeze a utility cupboard in the new bathroom too, no more lugging washing up and down the stairs.

New posts on this thread. Refresh page
Swipe left for the next trending thread