Meet the Other Phone. Only the apps you allow.

Meet the Other Phone.
Only the apps you allow.

Buy now

Please or to access all these features

Property/DIY

Join our Property forum for renovation, DIY, and house selling advice.

Do you think this would look silly - kitchen layout Q

63 replies

YouBelongWithMe · 19/04/2025 10:34

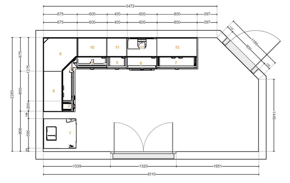
We had IKEA do a mock up based on our own design. Now we've had a chance to sit with it, we think there is too little prep/surface space.

Have been through many options and the one that feels like the best compromise is to reduce the length and height of the tall cupboards on the shorter wall, as indicated by the orange line. The one nearest the wall would have an integrated fridge freezer, and the one next to it would be two ovens, with drawers underneath. The rest of the cupboards would all be single level.

Thoughts? Would it look daft? Have attached an image I saw on instagram that doesn't look too bad?

(The tiles aren't what we're having).

Do you think this would look silly - kitchen layout Q
Do you think this would look silly - kitchen layout Q
OP posts:
Thread gallery
10
YouBelongWithMe · 19/04/2025 17:19

Please ignore the roughness round the edges. This poor kitchen is in need of some desperate TLC.

This is the other side of the kitchen..nothing usable that will fit into a new kitchen design.

Do you think this would look silly - kitchen layout Q
OP posts:
YouBelongWithMe · 19/04/2025 17:21

Boatsandtrains · 19/04/2025 15:07

I did something similar and I do regret the lack of storage and countertop I’ve ended up with. I didn’t get top cupboards as I thought it would make the room dark, but now I’ve got barely any countertop and it’s all covered in stuff.

Is that two tall cupboards on the end? One for fridge and one for an oven?

Could the oven go under the hob? Then one tall cupboard could be short and you get that extra bit of worktop?

Yes, I'm also open to having two ovens underneath a hob. Like this?

Do you think this would look silly - kitchen layout Q
OP posts:
YouBelongWithMe · 19/04/2025 17:27

BFG2023 · 19/04/2025 16:15

How about putting the fridge freezer to the left of the sink, having a built-in oven to the right hand side and hob beside it, so hob and sink are perpendicular and you have more worktop space between. There's no need for two ovens. I've doodled over your image, hope it comes up.

Edited

I really like this idea but unfortunately, due to the shape and position of our window, we can't use that back space for tall cupboards. A full unit sticks out too far.

This is a weird layout because it was originally two different rooms, and was knocked together by the previous owner. The two kitchen windows are even at slightly different heights!

Do you think this would look silly - kitchen layout Q
OP posts:
Bruisername · 19/04/2025 17:30

Do you have another dining space?

Bruisername · 19/04/2025 17:31

What is the door on left of the picture wall?

Vivienne1000 · 19/04/2025 17:34

Try Chat GPT. Ask for help with designs and see where it takes you.

YouBelongWithMe · 19/04/2025 17:43

No. At Christmas and big gatherings we bring in our plastic garden table and extra chairs. It's a squeeze but doable!

Do you think this would look silly - kitchen layout Q
OP posts:
YouBelongWithMe · 19/04/2025 17:45

Bruisername · 19/04/2025 17:31

What is the door on left of the picture wall?

How annoying. I labelled it and then uploaded the wrong one 🤣 it is a deep cupboard with our washing machine and shelves (and gas meter - annoyingly, because an option could have been to put a tall fridge/freezer in there instead and move an integrated washing machine over to the main kitchen space.

OP posts:
YouBelongWithMe · 19/04/2025 17:51

Bruisername · 19/04/2025 17:48

If you got rid of the cupboard could you fit a fridge in there depth wise?

or what about something like this that you can use as an extra work surface but can also leave the room for xmas!!

https://www.ikea.com/gb/en/p/bror-trolley-black-pine-plywood-60333850/

The far left cupboard, or the two-doored pantry? The former would comfortably house a fridge freezer but would involve an expensive gas meter move. The latter is not deep enough by at least half.

OP posts:
HiRen · 19/04/2025 17:54

I think your starting place is accepting that your space is too small for all the things you want to achieve 😬. That would make it easier to decide what you give up.

A family of 5, with three teens, and cooking holiday meals, means (1) worktop space (2) storage space (this doesn’t need to be in the kitchen necessarily) (3) a large enough fridge and feeezer (although secondary ones can go in a garage if you have one) (4) the rest. Open shelves are wasted space. Cabinets will allow you to store much more above, leaving below-countertop space free for appliances which means you can free up counter space. Can your washing machine go anywhere else?

Youre not going to gain much more counter space by your amendment. Can you put a ledge under one of the windows for kettle/toaster? I would move the sink to the end of the run if counter space, move the ovens to under the hob, convert the oven space to storage space (maybe an appliance garage if you need it), convert shelves to cabinets. You don’t have an extractor fan but you have two windows and a door so you might get away with it.

Where is your bin kept?

Don’t forget to plan out lighting!

YouBelongWithMe · 19/04/2025 18:07

We currently have some wall units and I HATE THEM. Three of them house our crockery and glasses which I'd be happy keeping on the open shelf. The other one is herbs/oils/sauces and I feel like we could definitely have them in a drawer set up in the lower run of units. As the kitchen currently stands, our corner space isn't utilised effectively with some dead space and we also have a slimline dishwasher and a 300 cupboard we don't use at all, so totally dead space.

I'm not worried about storage space at all, it's the worktop situation. You've all given me loads to think about though! Thanks.

OP posts:
TooManyCupsAndMugs · 19/04/2025 18:13

I had an L-shaped kitchen in a new house, with tall built in oven house too. I ended up having to buy an island for prep space as there was hardly any worktop left once I'd put kettle, toaster etc on. Is there space for a free standing island?

YouBelongWithMe · 19/04/2025 18:27

No,sadly no space for anything free-standing.

We don't have a toaster or a microwave (this is always so controversial when I disclose this haha), so other than a kettle and slimline nespresso machine, we don't have anything on our surfaces.

OP posts:
FiveBarGate · 19/04/2025 19:16

Do you have a floor plan for the kitchen showing doors and window and table position?

We had a bit of the same issue and in the end didn't bother with tall units (ours is u shaped though). We have under counter fridge and oven and then two integrated freezers and a fridge hidden in full run of low units in the connecting room with a big wooden worktop so it looks like a giant sideboard.

Other things to consider, where will your kettle and toaster go? If you have more of a dead corner this can be handy for them.

Have you mocked it up with top cupboards? If you go for under counter oven you would gain places for pots and pans etc at the top.

I think if you are stuck with limited worktop you at least want a decent run. Where would you put five plates and a baking tray in order to serve up dinner?

BertieBotts · 19/04/2025 19:31

IKEA do some tall cupboards which are 37cm deep rather than the ~60cm depth of a full counter, which would fit behind your window.

Or you could also have a built in dead space there, perhaps fill with something like this unit all the way up: https://www.ikea.com/gb/en/p/tornviken-open-cabinet-off-white-20358970/

We have an L shaped tiny kitchen with no possibility to put anything on the third or fourth walls - the third wall has no sockets and a large window, and the fourth wall is a weird diagonal door. I designed it myself with Ikea's tools and we built it ourselves, this is the layout (to the far left of the picture is a fridge-freezer, full height, about 60cm wide). It it tight, you can't comfortably have two people doing their own thing at once, but I am pleased with it.

We have cupboards on top because I don't like open shelving in the kitchen, we don't clean often enough and I find things get dusty and grimy. There should be an extractor fan fitted, but Ikea didn't have the right cupboard in stock, and my idea to just stick a longer door on didn't work due to the position of the hinges, so it's a work in progress. I would like to do some tiling or cover the rest of the backsplash because I think it's too much white at the moment. We do have a few different countertop "gadgets" as you can see - but we went for a smaller sink and this has been fine, the only issue is that I went for a 10L/min flow tap and if you put it up to full speed and it hits anything other than the bottom of the sink, it sprays everywhere. But this is easily avoided. We don't have a draining board, and don't miss it. If we wash something up by hand (rare) we just dry it immediately. The corner bit of the counter is where we keep our kettle and toaster. Under UK law, I think the plug sockets here would be too close to the sink so be careful with that (they are fine here apparently, we are in Germany).

The furthest away unit on the longer counter side is a freestanding dishwasher. IKEA's system would not let me put a dishwasher, or an empty cabinet here, but I did and it works fine. I used some shower curtain rods to support the end of the longer counter! It does mean that you can't open the under-sink cupboard while the dishwasher is open - we keep the dishwasher tablets in the thinner cupboard between DW and oven instead.

We do have a drawer unit temporarily on the opposite wall, and there is a bit of dead space between the fridge and short counter end, which we use to store a fold up chair and folding set of steps (to access the top of the cupboards/let DC help with cooking).

Note that Ikea don't have UK standard size cabinets - their cabinets are 40cm, 60cm, and 80cm wide (which is 2x40 when done with doors) and UK ones are wider than 40 but narrower than 60, I'm not sure the exact width.

What was really helpful was when I'd mocked up the design I wanted, I took the diagram with me to the Ikea showroom and I looked at all their mocked up kitchens, being very familiar with the cabinet sizes by this point, so I could judge it easily enough, and I found a combination where the sink, stove, high sided cabinet or fridge and corners were as close as I could get to my design, and stood in it and pretended to cook to get a feel for the space. That helped a lot with spacing the long side.

Do you think this would look silly - kitchen layout Q
GoatCatTaco · 19/04/2025 19:33

Given the pantry style cupboard, and your lack of concern about storage space, I'd put the fridge freezer at the end of the short wall, like in your I initial plan, and then have JUST worksurface for the rest of the run. Put the ovens under the hob (we have a range style cooker - a normal oven, a grill, and a tall narrow oven - now we have the right shaped bake wear it's really useful - 4 trays of things in there at once. Might be worth considering, and would fit with the age of the house - also gives us a 5th ring on top), have a sink - consider getting the draining board as part of the worktop, rather than the sink - even if you dont use it as work top, it will make the worktop look bigger!

The more tall cupboards you put in, the more worktop you loose. And I think you are right - it's worktop you need most.

BertieBotts · 19/04/2025 19:47

This is what ours is like from above - the door actually opens inwards.

I didn't need 2 ovens and our washing machine is in the bathroom.

Do you think this would look silly - kitchen layout Q
BertieBotts · 19/04/2025 19:51

My top tip is to play on the ENHET designer on the ikea website for layout, because it has fewer options so is less confusing. Then when you know what you want, switch to METOD but don't buy straight from the list their tool spits out. Look at the parts individually and do it that way, unless you are going for the full service in which case get IKEA to sort all of that out for you.

In fact - thinking about it, Ikea may have given you a link so you can go in and play around in the 3D editor with the one they've made for you. Does your print out have that anywhere? I think it would be tricky to use on a phone but a laptop/desktop computer should be fine.

Tootiredtowhat · 19/04/2025 19:54

Rather than 2 ovens I’d do an oven and an integrated microwave. Or you can get some that are both. With limited workspace you want to keep as much off the sides as possible

FiveBarGate · 19/04/2025 19:56

I really liked the IKEA kitchens but in a small space I found the limited number of cupboard sizes too restrictive, especially with a corner.

DIY kitchens have a wider range of both with and depths so might be worth a play in their planner too.

NeverDropYourMooncup · 20/04/2025 10:44

Thinking about this, how about the two ovens (undercounter) underneath the hob on the short wall?

This would give you a dedicated cooking area and give you a longer, around 180cm, length of clear prep surface. Then you have the large sink - and I'd never recommend a small sink, they are an absolute pain in the arse - and as before, the fridge at the far end.

Bruisername · 20/04/2025 10:46

You would struggle opening the oven doors if they were on the short wall and ip has said fridge can’t go sink end

I would have an under mounted sink to maximise surface and not skimp on sink size

do you have a garage?

verycloakanddaggers · 20/04/2025 10:59

I still don't understand the layout, can there be a rough diagram from above showing the table, the pantry, the kitchen?

You have plenty of space, you just can't have tall cupboards and work top, so you'll have to choose between the two.

You do have a table to prep on in addition to worktop.

The key is stop looking at kitchen showrooms - they make money by telling you you need more more more - and instead look at pictures of well-designed small houses and small commercial kitchens.

I would say one 120cm stretch of worktop is adequate with other small bits next to sink, as you have a table too.

Don't get rid of the draining board if you use your sink a lot, they are useful.