Meet the Other Phone. Only the apps you allow.

Meet the Other Phone.
Only the apps you allow.

Buy now

Please or to access all these features

Property/DIY

Join our Property forum for renovation, DIY, and house selling advice.

Any architects around please? Need help with a decision

5 replies

Ecrire · 17/04/2025 10:38

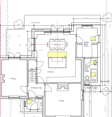
Uploading the current floor plan and proposed floor plan for a property.

We cannot currently take on the full rear and side extension.

is there any way to take on the side extension first - adding the much needed downstairs toilet, and then adding the rear extension in a few years?

Or is it all or nothing?

happy for an architect to redraw plans if need be - that's not the issue - just want to be sure whether it is doable in parts.

Thanks for any help :)

Any architects around please? Need help with a decision
Any architects around please? Need help with a decision
OP posts:
SquishyGloopyBum · 17/04/2025 15:58

I think you’d be better off with a redesign - I assume the issue is budget?

given the way the dining room links to the side extension, doing it in 2 stages would be much more expensive.

Ezzee · 17/04/2025 16:13

You're better off speaking with a structural engineer and your builder.
If you do need to speak to an architect be very, very clear on your budget.

FiletMignon · 17/04/2025 16:43

As it currently stands, it would be way more expensive and disruptive to do it in two stages. To build the side extension and gain access to it, you’ll have to intrude into the kitchen and especially the external wall, taking down the store areas. With that level of disruption, it makes sense to do the whole thing in one go. Not to mention the groundwork and foundation.

If you want to do it in two stages for budget reasons, then a redesign is needed.

Ecrire · 17/04/2025 18:21

We have commissioned an architect to do a full redesign - and fresh planning permissions. They will see the application through to getting building control so drawing for both planning and building.

What sort of redesign would you advice the architect does that still gives us what we are after here which is a downstairs utility room/boot room, shower and WC?

OP posts:
Nextdoor55 · 17/04/2025 19:39

I don't know but love the fact that the dog has his own bath

New posts on this thread. Refresh page