Meet the Other Phone. A phone that grows with your child.

Meet the Other Phone.
A phone that grows with your child.

Buy now

Please or to access all these features

Property/DIY

Join our Property forum for renovation, DIY, and house selling advice.

How can we adapt this space?

24 replies

MovingMahem · 16/04/2025 10:18

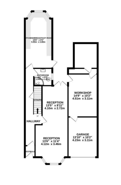
See floor plan attached...

There's lots of space here just struggling to visualize how to adapt it to our requirements.
We do not need the garage/workshop space for a car so this could be incorporated into the domestic space?

How would you modify this space to incorporate the following?

Large Kitchen diner opening to garden (big enough to entertain 10ppl)
Office space
Utility (not essential!)
Toilet
Playroom /games room
TV snug /adults lounge

Thanks in advance for your creative brain power!

How can we adapt this space?
OP posts:
Leavemyteam · 16/04/2025 11:10

are you sure it wouldn’t be cheaper to move. I can see a few options but they would be pretty expensive.

MovingMahem · 16/04/2025 11:12

@Leavemyteam not sure tbh, no idea about costs, but really love the location of this house so want to make it work if possible

OP posts:
Leavemyteam · 16/04/2025 11:21

Might work to take out the courtyard area at the back, leave the kitchen as is but extend it as an L-shape across to put a long table for your 10 guests. Take the reception room across into the workshop as presumably you’ll want a bit living space. Then use the section at the front as a playroom or if you want to put a wall across that can become your study. As and when you are ready convert the garage to become the final room you need.

How can we adapt this space?
AmIHumanOrAmIAYeti · 16/04/2025 12:04

That reception room is going to be pretty dark.

Bruisername · 16/04/2025 12:10

That central reception area in the pp’s area could be made into a nice big hallway cupboard with good storage. plus a utility room. My friend has a lovely big hallway cupboard room with cupboards and it has no natural light

any chance of windows in the workshop wall?

MiddleAgedDread · 16/04/2025 12:12

It's drastic but.....
I would make the existing kitchen / breakfast room your adult snug / office space (assuming whoever works from home is an adult and wouldn't be using the space for office and TV watching at the same time). You could build the office space into something with doors so you don't have to look at your work station while watching TV.
Put a wall up between the current large reception with double doors, possibly glass ones to allow light through from the front room.
make the front bit of the divided reception room the playroom.
knock the wall between the back half of the divided reception room and workshop down to make a kitchen diner room. It will probably need a skylight in above the current workshop space.
Put the utility and downstairs toilet in the unlabelled outbuilding.

MovingMahem · 16/04/2025 14:01

Thanks everyone food for thought here

OP posts:
MiddleAgedDread · 16/04/2025 14:07

I watch enough home renovation programmes to suggest that you're probably looking at 6 figures, or close to it, to do any amount of structural work such as moving walls, skylights, new kitchen, insulating the workshop and outhouse etc.

MovingMahem · 16/04/2025 14:37

@MiddleAgedDread ahhhhh

OP posts:
AmIHumanOrAmIAYeti · 16/04/2025 15:20

MiddleAgedDread · 16/04/2025 14:07

I watch enough home renovation programmes to suggest that you're probably looking at 6 figures, or close to it, to do any amount of structural work such as moving walls, skylights, new kitchen, insulating the workshop and outhouse etc.

Agreed.

Leavemyteam · 16/04/2025 15:23

agree on the spend front, which is why i suggested it would probably be cheaper to move

oneplus2is3 · 16/04/2025 16:49

This reply has been withdrawn

This message has been withdrawn at the poster's request

AmIHumanOrAmIAYeti · 16/04/2025 16:54

You’ll really reduce the market if you have a garage that isn’t big enough for a car.

A windowless kitchen/diner in the middle sounds really dreary. The problem with incorporating the garage and workshop is that you create a bigger living space with less light.

OP, what size is upstairs? Does it cover the garage and workshop or were they single storey extensions?

MiddleAgedDread · 16/04/2025 17:29

I think @AmIHumanOrAmIAYeti makes a good point about upstairs size too. I've seen a lot of houses on the local market that are demanding big price tags because they have very fancy extensions and nice open plan living space and a separate family room or playroom, but the ground floor is signficantly bigger than the upstairs and the bedrooms are tiny or few in number by comparison. I would also think about heating if you create a big open living space.

MovingMahem · 16/04/2025 17:49

@AmIHumanOrAmIAYeti @MiddleAgedDread there are 5 bedrooms and they cover the space over the main house as well as above the garage and workshop. So it would still feel proportionate to incorporate at least some.of the garage/workshop space..

OP posts:
AmIHumanOrAmIAYeti · 16/04/2025 18:24

MovingMahem · 16/04/2025 17:49

@AmIHumanOrAmIAYeti @MiddleAgedDread there are 5 bedrooms and they cover the space over the main house as well as above the garage and workshop. So it would still feel proportionate to incorporate at least some.of the garage/workshop space..

Still going to result in a dark ‘middle’. :-/

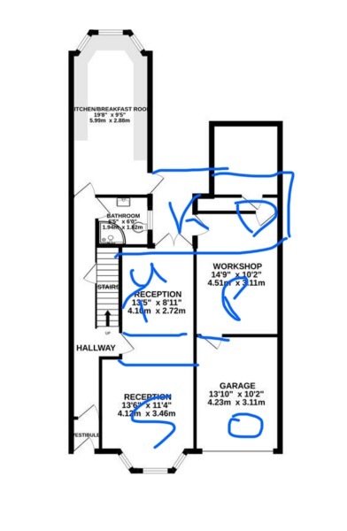
oneplus2is3 · 16/04/2025 18:58

The most expensive thing is moving walls and utilities so I would do the following:
-remove red walls ( wall between reception and workshop will need RSJ as presumably original exterior wall)
-build in 3 new walls- one to create front reception (office or snug), one to make garage smaller (great for bikes etc) final wall to divide current kitchen to create office or snug and playroom (add in an extra window along side return)
-make existing reception and workshop a large kitchen/dining space (sink along wall adjacent to stairs the you have water and waste covered, induction hob can be put anywhere, island in the middle)
-either incorporate the extra storage space behind the workshop and put in extra windows (blue) or keep it separate (depends on funds)
-remove shower and make this utility space/downstairs loo
hidden costs- insulating the existing outbuildings and redecorating rooms, changing flooring on rooms that have changed purpose or had wall moved

How can we adapt this space?
MiddleAgedDread · 16/04/2025 20:00

Ok with 5 beds I wouldn’t hesitate to knock walls around and make better use of the space. If you’d said 2 doubles and a small single I’d have said it probably wasn’t worth adapting all that living space.

AuntieDen · 16/04/2025 20:10

depending on plumbing and your upstairs layout...

remove the bathroom and move the stairs to the left. incorporate the current kitchen, bathroom and back half of the reception to give you an l shaped room about 40x15.

add glass doors between the two parts of the reception to give you your adults lounge which can open into the kitchen diner for parties

That leaves you a bathroom, utility, playroom and office down the side which is now garage etc - personally I would do them in that order as I like bathrooms to have windows. depending on what you need from the bathroom I would consider a lootiliy with shower at the back, a playroom opening onto the central reception/kitchen which, if you can't have a window, could also have glass doors, and then office at the front with a window - but to a degree those three spaces and the lounge could be organised as you wish and three are broadly only about decor and your lighting preferences.

TwoBlueFish · 16/04/2025 20:24

KD kitchen diner
UT utility & toilet
P playroom (open or glass doors to KD for light)
O Office with window at front
S snug

How can we adapt this space?
MovingMahem · 17/04/2025 07:02

This is amazing, I love mumsnet for this! Thanks so much everyone for your attention to this - so appreciated and lots of ideas and consideration here. Thank you @AmIHumanOrAmIAYeti @AuntieDen @Bruisername @Leavemyteam @MiddleAgedDread @oneplus2is3 @TwoBlueFish

OP posts:
TheOtherBear · 17/04/2025 15:26

If I was doing this, I'd do something not dissimilar to what @Leavemyteam has suggested. But the problems are obviously a) darkness in the middle, and b) some rooms becoming through-rooms, and ending up with a hodgepodge lay-out.

Because you have the space for it, I'd make that middle reception room a big hall. So it becomes the central 'hub' for the rest of the house. It would have doors from it to all the other rooms, so that none of the other rooms have to be through-rooms. And it would be a nice size that it could have bits of storage or bookshelves or even an armchair or something. Almost like a hall / library.

And it would be on the darker side, but that's ok because it's just a hall. And if all its doors are open, light from the other rooms would be coming in.

MovingMahem · 17/04/2025 16:15

@TheOtherBear I love that idea

OP posts:
Leavemyteam · 17/04/2025 18:02

TheOtherBear · 17/04/2025 15:26

If I was doing this, I'd do something not dissimilar to what @Leavemyteam has suggested. But the problems are obviously a) darkness in the middle, and b) some rooms becoming through-rooms, and ending up with a hodgepodge lay-out.

Because you have the space for it, I'd make that middle reception room a big hall. So it becomes the central 'hub' for the rest of the house. It would have doors from it to all the other rooms, so that none of the other rooms have to be through-rooms. And it would be a nice size that it could have bits of storage or bookshelves or even an armchair or something. Almost like a hall / library.

And it would be on the darker side, but that's ok because it's just a hall. And if all its doors are open, light from the other rooms would be coming in.

Or use glass doors with frosted panels?

i was thinking windows down the right hand side of that room, I assumed it wasn’t a semi, but my artistic skills are very limited!!

New posts on this thread. Refresh page