Meet the Other Phone. Only the apps you allow.

Meet the Other Phone.
Only the apps you allow.

Buy now

Please or to access all these features

Property/DIY

Join our Property forum for renovation, DIY, and house selling advice.

Can you help with floorpan

3 replies

cactidream · 19/02/2025 16:07

Hi all!

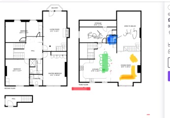
Could you please let me know what you think about this layout?

We are considering this flat, but I’d like to move 2 bedrooms upstairs, with one having an en-suite (master)

My idea is to combine the existing living room and master bedroom into an open-plan living, dining, and kitchen area while converting part of the remaining space into a utility room and an additional bedroom with a bathroom.
I’m worried the renovation costs will be extremely high, especially on top of an already expensive purchase. I’d really appreciate your advice—do you think this layout is even feasible?

www.zoopla.co.uk/for-sale/details/69110889/?search_identifier=b85dac10d3de83f7f9029ee2093e3d0b1965a1b1c9fa64693290e10a4b25c0a3&featured=1&utm_content=featured_listing

OP posts:
Stai · 19/02/2025 16:11

The costs of moving the kitchen and swapping everything around would be prohibitive. You would also have to factor in your downstairs neighbours. I don’t think it’s feasible, I’m sure you can find something else that is better suited to you.

Toddlerhelpplease123 · 19/02/2025 16:56

I see what you’re trying to do but I wouldn’t.

I think better design of upstairs could have that as day living and then downstairs gallery left as formal lounge. I say because wouldn’t want to spend 1.7m and only have one reception room for 4/ 5 beds. Theres a lot of space up there and it could be really cool if designed well.

We do actually have a combined living/ dining/ kitchen which is a similar shape and size to your original idea. But I would find that very claustrophobic if it was in your flat. Ours has a glazed roof - so feels very light and open which reduces the tunnel like feel. And it has a larger square at the end instead of continuous rectangle and that really helps with the space and zone for living room. So to mimic that and have more light I went across the front instead of your idea.

Some pics for you…

Can you help with floorpan
Can you help with floorpan
Diningtableornot · 19/02/2025 16:59

I wouldn't spend all that money rearranging the layout. It's organised that way for a reason, probably to make use of the terrace. And it's nicely done and in good condition. If you want to change it that much already, it's the wrong property for you.

New posts on this thread. Refresh page