Meet the Other Phone. A phone that grows with your child.

Meet the Other Phone.
A phone that grows with your child.

Buy now

Please or to access all these features

Property/DIY

Join our Property forum for renovation, DIY, and house selling advice.

Has anyone done a "phased" extension for an Open-Plan kitchen-diner?

3 replies

firsthomebuyerfirstreno · 18/02/2025 20:08

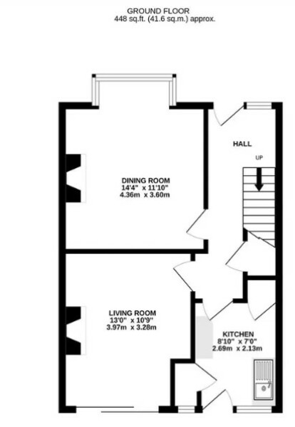
I’m looking into doing a phased home extension and wondering if anyone has experience with this type of project. We’re considering knocking through a load bearing wall to create an open-plan kitchen-diner but not extending the garden - yet. The idea is to get the space ready for a future extension, with the groundwork and structure in place now but the extension itself happening later (when we’re in a better position financially). My dilemma is that our current kitchen is tiny – it’s basically a kitchenette with a free-standing cooker and no worktop space, which is driving me crazy with three young children! We also have a decent-sized dining room, but combining the two would really give us the space we need to live comfortably for the next few years until we can afford the full extension. My neighbour showed us his house with the extension and whole reno and is beautiful but would be at least 100k that we are no where near.
I’m curious about the following:

  • Has anyone done a phased extension where you left the space ready for an extension in the future? How did that work for you?
  • Would you recommend it, or are there any potential issues I should be aware of?
I’d love to hear any tips or experiences from those who’ve done something similar.
Has anyone done a "phased" extension for an Open-Plan kitchen-diner?
OP posts:
ButIDontLikePeas · 18/02/2025 20:16

Following along because we are considering something very similar. We're waiting on some plans to come back to compare internal changes vs full extension, but our reluctance for the full extension is that we are thinking we might move in the next 5-7yrs before DD1 goes to secondary and not sure if we would make back the £100k in that time.

Our current layout is the same as yours so our thinking is to move the living room where the dining room is now, keeping that as a separate room. Then knocking the wall down between the kitchen and current living room to make an open plan kitchen diner. Chimney breasts on the 1st floor were removed by previous owners, so we'll probably also take them out of the ground floor as well to give us some extra space and hopefully squeeze in a stacked utility "cupboard" for the washer / tumble dryer.

We have seen neighbours on both sides - one took down all internal walls to make fully open plan, the other extended into the garden but left a separate living room. I think the latter is my preferred option as with DC, I fear the fully open plan will just constantly be a tip!

pinkiltette · 18/02/2025 20:20

Also no tips OP but we're also considering the same. I'd not call it a phased extension - it's more just an internal reconfiguration in advance of an extension?

I'm thinking of taking down the wall between the kitchen and dining space, and doing open plan kitchen / diner.

Possibly would put up a stud partition wall to enclose the living room to avoid the entire place looking like a tip with the kids.

Tempted to also add sliding / French doors in the dining room out to the garden - but that would be abortive work obviously for an extension.

No idea of costs... will need to likely speak to an architect and look at a building warrant application.

Has anyone done a "phased" extension for an Open-Plan kitchen-diner?
firsthomebuyerfirstreno · 19/02/2025 08:02

@ButIDontLikePeas that makes a lot of sense! This is the house where we are near the secondary school so expect to be here for at least 15 years by the time they all go thru . Also, we need a few chimney breast removed. Hope thats not too pricey!

OP posts:
New posts on this thread. Refresh page
Swipe left for the next trending thread