Meet the Other Phone. Only the apps you allow.

Meet the Other Phone.
Only the apps you allow.

Buy now

Please or to access all these features

Property/DIY

Join our Property forum for renovation, DIY, and house selling advice.

Kitchen layout - awkward doors and windows

5 replies

OUB1974 · 14/02/2025 13:03

I'm hoping to get some advice on how to lay out our new kitchen...

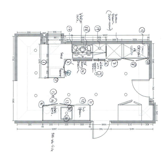
I've (hopefully) attached a plan. It's a decent size (5×2.3m) but the current layout is awful. I'm struggling to work out how to improve it though as we have 3 doors and 2 windows (one lower than a work surface) to contend with. I'm not keen on the idea of moving doors if we can help it.

On the plan, CUP means cupboard with worksurface on top. OH means overhead cupboard. The store room is an old loo, so probably 1×2m. I'd like to keep it but the door breaks up the wall. The door to outside (via a small utility) is unlabelled on the right.

The current issues are:

  1. the position of the cooker. It's too close to the door from the rest of the house, so causes a traffic jam whenever anyone comes in or out. You can't open the corner cupboard when you're using the grill. And it's too close to the sink so you can't have someone washing up while you're cooking.

  2. not enough work surface space for dishing up, there's a tiny bit either side, but the corner bit is awkward to get to and to the right is too small

  3. huge wasted space on the right, but difficult to use as there are 2 doors in that corner.

  4. no dishwasher.

  5. the right hand window is too low to put a work surface or white goods underneath. It would also prevent a work surface going right to the end of the long wall.

  6. the bit of work surface right next to the door to the hall is shallow, but it still feels blocked when you go into the room. We currently have the microwave there, as it's not useful as a workspace as we'd block the entrance.

I don't know who made such a lovely extended room and then used the space so badly!

So we don't really have a single clear wall to use, . How would you lay out this room? Nothing much seems to work as the doors and windows break up all 4 walls. Has anyone else got a kitchen like this?

Thanks in advance ☺️

Kitchen layout - awkward doors and windows
OP posts:
BigDahliaFan · 14/02/2025 13:06

Can you change any of the doors to pocket or sliding doors or to open the other way?

notforonesecond · 14/02/2025 13:18

I’d put some full height cupboards along the left wall so I could put the oven in there.

Get rid of the 2 cupboards at the top of the drawing between the 2 doors.

Put an island in the middle to put the hob on.

In theory, like, I don’t actually know how much space you’ve got in the middle.

Normally I’d say an island would get in the way but it seems like you could do with some usable space that’s not against a wall.

Pleasehelpmedress · 14/02/2025 13:19

I had exactly this issue in our kitchen, though four doors and two windows at one point! We've just had some building work so reduced it two doors and one small window. Our new kitchen plan is below - it works really well for us. Storage is a bit limited but it's much better than before (washing machine is now in another room).

If you like I can pm you some photos. Bottom right is fridge freezer with shelves around, top right is tall units with oven and larder. Far left is a breakfast bar. The peninsula works really well for prepping/baking on.

Kitchen layout - awkward doors and windows
Thursday13 · 14/02/2025 13:24

We have a window that is too low to put a unit in front of, so we put low drawers in front of it and a seat on top and made a window seat.

Sunnyside4 · 14/02/2025 14:03

A kitchen installer will give you some ideas and depending on where you're buying your kitchen from, they can design something for you to see if you think that'd work.

Ask visitors what they think. I mentioned to our heating engineer we were hoping to have a new kitchen and what I wanted from it. He agreed a similar layout to present was best, but pointed out where we could get another cupboard in, a little bit more worktop space and just moving one socket might be beneficial.

New posts on this thread. Refresh page