Meet the Other Phone. Protection built in.

Meet the Other Phone.
Protection built in.

Buy now

Please or to access all these features

Property/DIY

Join our Property forum for renovation, DIY, and house selling advice.

Help with awkward kitchen layout

7 replies

BunnyWilliams · 09/02/2025 20:50

Humour me. We've only just started the buying process for this house but my brain can't help but obsess over fun things while I wait.

We're going to move the existing kitchen into the dining room and turn the kitchen into a utility room and wc. Hoping to do the new kitchen work for 40k or under. Water pipes should be the only pain.

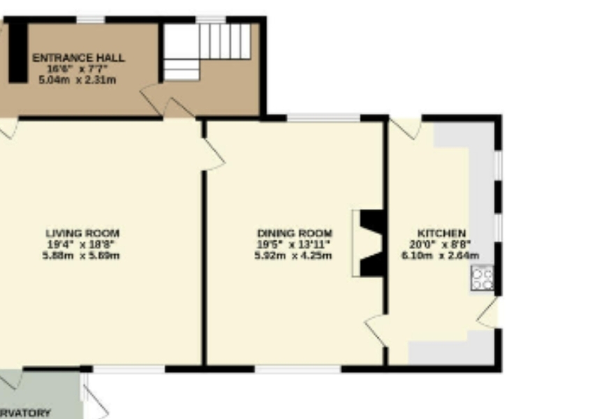
As you can see, there are two doors and a fireplace to contend with, plus two VERY low windows. We can't move the doors. This will be a kitchen diner and we're a family of 5 so need space for all of us. Our current kitchen has so little worktop space and I hate it, so I want to avoid that here if poss.

There's always the option of keeping the sink and dishwasher in the utility (literally just through the bottom door on the right). Don't know how much that would bug me though.

Windows are beautiful and mullioned so I don't want to change them and I worry that blocking them off will look rubbish from the outside (bottom window on plan looks into garden, top onto front garden and driveway). It's not a listed house but it is old.

Room dimensions are 19'5" x 13'11" (5.92m x 4.25m). I'll post some photos of the room in the comments.

Help with awkward kitchen layout
OP posts:
BunnyWilliams · 09/02/2025 20:51

As many angles as I can find from current and old listings!

Help with awkward kitchen layout
OP posts:
parietal · 09/02/2025 22:16

i'd put the majority of the kitchen stuff (fridge, sink etc) on the long wall opposite the fireplace.

Then have a small-ish island with the hob parallel to that wall of kitchen, so that you stand at the hob and face the fireplace. the island would end shortly before the window leaving the window untouched. you would need an induction hob and down-draft extractor etc.

have a round (or oval) table to eat at in front of the window that is nearest the living room.

add a dresser behind the door from the living room if you need more storage.

Geneticsbunny · 10/02/2025 09:05

I would move the door between the current kitchen and dining room to the top so it is nearer the back door and so the new kitchen isn't a massive corridor and then have the kitchen stuff along the big long wall as @parietal suggests. Although I hate islands so would go with a huge rustic kitchen table instead and a dresser.

Are you actually going to be able to get more worktop by moving the kitchen? Looks like you have 8-10 units worth at the moment which I think is quite a lot? I guess you will have storage in the utility too though so might not need as much?

BunnyWilliams · 10/02/2025 20:18

Geneticsbunny · 10/02/2025 09:05

I would move the door between the current kitchen and dining room to the top so it is nearer the back door and so the new kitchen isn't a massive corridor and then have the kitchen stuff along the big long wall as @parietal suggests. Although I hate islands so would go with a huge rustic kitchen table instead and a dresser.

Are you actually going to be able to get more worktop by moving the kitchen? Looks like you have 8-10 units worth at the moment which I think is quite a lot? I guess you will have storage in the utility too though so might not need as much?

Thanks for your suggestions. I don't want to move either door because of stone work features on the wall in the existing kitchen.

We probably won't have more cupboard space in the new kitchen but it will mean we can have a table in the room which is essential for us with young children. It will also mean we can have a utility and downstairs toilet, which are again, really important to us.

OP posts:
BunnyWilliams · 10/02/2025 20:19

parietal · 09/02/2025 22:16

i'd put the majority of the kitchen stuff (fridge, sink etc) on the long wall opposite the fireplace.

Then have a small-ish island with the hob parallel to that wall of kitchen, so that you stand at the hob and face the fireplace. the island would end shortly before the window leaving the window untouched. you would need an induction hob and down-draft extractor etc.

have a round (or oval) table to eat at in front of the window that is nearest the living room.

add a dresser behind the door from the living room if you need more storage.

Thanks. That's what I'm leaning towards too for the units. I don't think we'd fit an island in unfortunately, as I would like the extra workspace but I think it would be too tight because of the fireplace. Perhaps I can get a small narrow on wheels.

OP posts:
Geneticsbunny · 11/02/2025 08:48

Is the kitchen door the only door into the garden?

I think having to walk all the way through the new kitchen dinner and then through the utility to get into the garden might become annoying very quickly. If so then is there space to put a garden door in elsewhere?

BunnyWilliams · 11/02/2025 11:09

Geneticsbunny · 11/02/2025 08:48

Is the kitchen door the only door into the garden?

I think having to walk all the way through the new kitchen dinner and then through the utility to get into the garden might become annoying very quickly. If so then is there space to put a garden door in elsewhere?

No it isn’t the only garden access point - there's a door from the living room too (currently through the conservatory but we want to dismantle it). There's also easy access from the front with a wide and short side access, and there are two doors out to the front (where there is also a big garden).

OP posts:
New posts on this thread. Refresh page