Meet the Other Phone. Flexible and made to last.

Meet the Other Phone.
Flexible and made to last.

Buy now

Please or to access all these features

Property/DIY

Join our Property forum for renovation, DIY, and house selling advice.

Which floor plan would you pick for a family of 5?

51 replies

mckenziemuffin · 01/02/2025 21:05

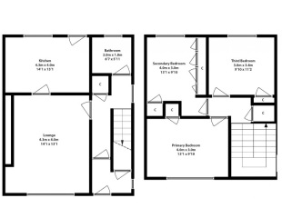
I currently live in the first floor plan property, but we are considering the second property. We are due DC N03, we have a DD8 and DS 6. Things to point out about our property:

Master bedroom isn't as big as it is because a staircase takes up a chunk of that footage.

We have two bathrooms, one has a shower and one has a bath.

New property doesn't have a bath or room for one which I'm skeptical of and one toilet.

We have loft space for all sorts of stuff, new property doesn't have any converted loft space.

Master bedroom stairs in our house are steep and I wouldn't want to carry a baby up and down them regularly.

Which one would you pick for a family of 5?

Which floor plan would you pick for a family of 5?
Which floor plan would you pick for a family of 5?
OP posts:
nannyl · 01/02/2025 21:11

the second one.
with 3 bedrooms and lots of cupboards

YellowRollercoaster · 01/02/2025 21:15

The second one is a much more conventional family house.
Plus doesnt the 1st house (where you currently live?) only have 2 bedrooms?

WhereIsMyLight · 01/02/2025 21:15

Property 1 - are you using your dining room as a third bedroom? You’ll need a third bedroom with three children.

Property 2 - 3 kids and no bathroom on the first floor would potentially be a problem when you inevitably get a stomach bug hitting the house.

I would probably try and find an alternate property to number 2 but stay where you are at the moment.

mckenziemuffin · 01/02/2025 21:21

The 'storage' has my son's child sized bed, a drawer of clothes and some toys. There is a window.

OP posts:
mckenziemuffin · 01/02/2025 21:22

And no, not using dining room as bedroom, there's only access to the kitchen through it.

OP posts:
Apollo365 · 01/02/2025 21:23

2 x

AuntieDen · 01/02/2025 21:38

you could fit a bath in the bathroom of the second, either by including the cupboard and hallway, or possibly without if you could position the loo right. Potentially you could then squeeze a loo in upstairs depending on whether you could sort the drainage - the cupboard at the top of the stairs and adjoining cupboard might work?

imworkinglate · 01/02/2025 21:41

House one- could you use the living room as a bedroom?

Pallisers · 01/02/2025 21:43

Neither are ideal. The second one doesn't have a bathroom on the floor where you sleep which would be a real pain. The first one you are sleeping on a different floor to kids which I wouldn't like.

Ihatemondays1962 · 01/02/2025 21:44

House 1 only really works as a place for 5 if you use the living room as a bedroom and change the dining room to a living room but even then it's not ideal with no room for a table. For that reason house 2 seems a better option.

AnnaQuayInTheUk · 01/02/2025 21:47

I don't think either are that suitable for a family of 5

Stay where you are for the moment and look for something better

Apollo365 · 01/02/2025 21:52

yikes I didn’t notice the bathroom. Sorry OP I am changing my vote. 1 looks ok for a family with one child (although I’d hate to be on a diff floor if they were young!) and 2 is just a really badly designed layout 😣

Pelot · 01/02/2025 21:54

I think you'll deeply regret 3 kids in 1 bedroom. It would have to be house 2 but it's not great.

Waffle19 · 01/02/2025 21:58

Definitely the second although I would like a bath! FWIW we live in a new ish build and are just about to get our loft boarded and it’s much cheaper than we thought it would be.

SquishyGloopyBum · 01/02/2025 21:59

Neither are suitable for 3 kids. Especially as your older ones are different sexes and they can only share for at best, another 2 years.,

Shouldn't this have been thought about before trying for DC3?? Not trying to be rude but I can't see how your existing house is at all suitable.

StampOnTheGround · 01/02/2025 22:06

Neither house is suitable for a family of 5, your current house is suitable for a family of 3 and the second a family of 4 - but the bathroom situation is rubbish too.

Possibly look at a different area, better layout and more bedroom options?

ChocolateTruffleAssortment · 01/02/2025 22:11

House 2.

we are a family of 5, we’ve lived in a 2 bed and a 3 bed before now. It’s fine. Yes obviously each child can’t have their own room.

UnderTheStairs51 · 01/02/2025 22:16

Is this to buy or rent? Number two is very similar to my house.

We put a toilet and sink in the large cupboard in the upstairs hallway. Not perfect but sorts the per in the night problem for the kids.

The downstairs bathroom is why you get three good sized bedrooms.

PartyOFive · 01/02/2025 22:19

3 DC here, with the same age gaps as you :)

As the baby will be in with you for at least six months I'd also be inclined to stick where you are and see if you can find a better option than house 2
For me it's the bathroom that's the kicker, I would get annoyed going up and down in night or just before bed etc. plus, in mornings as more of us need showers now (eldest needs one every day, middle every few) we get annoyed with just one bathroom (even with a second toilet) and are saving for a loft conversion to manage this. I think it would be very hard as a family of five with only one toilet let alone bathroom, so number 2 would need a fair bit of work on the medium term..in which case, why not wait and see if you can find something a bit closer to the Ideal?

mckenziemuffin · 01/02/2025 22:27

In our house, DD is upstairs. It's to buy.

OP posts:
Zonder · 01/02/2025 22:27

I wouldn't want to sleep on a different floor from small children - is that what you do now? House 1 is a very odd lay out for a family of 4, let alone 5.

I also wouldn't want to have no toilet on the same floor as the bedrooms. Otherwise I would say house 2 is much better. Is there any way to get a loo and sink in upstairs somewhere?

Sunshine1500 · 01/02/2025 22:34

since it’s to buy I’d consider location first , you could chance the layout to suit your needs

Sunshine1500 · 01/02/2025 22:36

I’d stay I one if I like the location and extend the kitchen to add a dining room then the dining room a lounge and the lounge a bedroom

Ponderingwindow · 01/02/2025 22:39

One toilet for a family of 5 would give me constant anxiety. What happens when you end up with norovirus going through the house? It will be a traffic jam.

I wouldn’t consider the 2nd house without a remodel.

Delphiniumandlupins · 01/02/2025 22:46

House 2.

Do MN posters live in the real world? Lots of children share bedrooms without damage. Similarly many families of 5 (and even bigger) manage with only one bathroom.