Meet the Other Phone. Only the apps you allow.

Meet the Other Phone.
Only the apps you allow.

Buy now

Please or to access all these features

Property/DIY

Join our Property forum for renovation, DIY, and house selling advice.

To bother with formal dining room

25 replies

TaupePanda · 16/01/2025 13:08

We are looking at a house that has a 6 foot wide side lean to, between two terraces. It needs some sprucing up but would be a usable space.

That has got us to talking about whether we use that space for a dining table - it would fit ours up against the wall, which is properly insulated and plastered against next doors' extension. It has a heater and light and we can sort out the flooring. So, it wouldn't be amazing but neither would it be an awful experience. Just a bit small.

This would leave the 'dining room' as an additional family room, which would be connected to the lean to and so for a formal meal - like Xmas - we could move the table in and set it all up nicely. It's likely we would do this maybe 3 times a year - we don't really have dinner parties anymore, more mass cooked beige food for a bunch of kids while the parents have a couple of glasses of wine. That doesn't require a large dining space.

That said, it seems a bit weird to me not to have a dining room (which is probably my age talking) but aside of scoffing some pasta or cereal the reality is, we are at the dining table for all of an hour or so a day. Dedicating a full room to a big table - if I think about it - seems a waste.

The alternative is to knock down a wall between the existing kitchen and a downstairs bathroom, to give us a galley kitchen diner. If we don't knock it through we'd turn the bathroom into a utility / loo, which would be very useful with two small kids. All these require money so once we've decided what to do we won't want to undo it. And, after a lot of consideration and seeing a lot of houses with side returns we've concluded that the cost (100k) does not justify the time, effort or end product.

What do other people think? Would we regret essentially going down this route? We're flip flopping so much on this we may end up not making an offer (we're the only ones in the picture by the sounds of it so it is ours, in effect). It seems like a little thing but its £550k and needs everything doing to it so it is actually a lot of money overall and we want to get things right.

Anyone else use a lean to for a dining space? Or maybe put some extra cash in and make it a seating area? Or just rip the thing down and leave the space as part of the garden (also a waste!)

Any thoughts most welcome

OP posts:
PlanetJungle · 16/01/2025 13:29

I think we need a floor plan!

MrsMoastyToasty · 16/01/2025 13:39

The first rule of property/diy is that you must provide a floor plan.

BigDahliaFan · 16/01/2025 13:43

We do have a separate dining room - it's used about 7 times a year - Christmas, times when we have more people than can fit around the table in the kitchen. We can fit 8 just about round the kitchen table - and usually it's just the 2 of us.

If we have friends round we'll invariably sit in the kitchen at the table.

So we have a very lovely dining room, with a wood burning stove that I use on the days we are both working from home, and DH has the kitchen table.

I want to turn it into a snug instead - and store the table and chairs in the attic and bring them out at Christmas. To me that's a much better use of space. Somewhere for me to retreat to when there's football on the big telly in the sitting room.

KnickerFolder · 16/01/2025 13:47

Floor plan definitely needed!

When you say it has a heater, do you mean it has central heating? You might find it is poorly insulated and costs a fortune to heat if it has an oil filled radiator or something similar. You may end up never using the room as it is too cold and/or expensive to heat. Even more of a pain if you have to remember to turn on the heating before you want to use the room if it doesn’t have a timer…

Do you have anywhere to eat in the kitchen?

A cheap potential solution might be to buy a folding gate leg table and folding chairs, if that would fit in your family room? You could keep the extra chairs hanging on pegs in the lean to. You can get really nice ones. We have a mid century folding table as an extra for Christmas etc. It is only about 30cm wide when folded and looks nice as a kind of console table. You could use it as an every day small table for 4 with just 1 side up. Then you can completely fold it if you need extra space.

Flipnflop09 · 16/01/2025 13:50

@BigDahliaFan I want to turn it into a snug instead - and store the table and chairs in the attic and bring them out at Christmas. To me that's a much better use of space. Somewhere for me to retreat to when there's football on the big telly in the sitting room

Omg I could have written this word for word ! I have had the exact same convo with my dh for the exact same reason !

TaupePanda · 16/01/2025 14:09

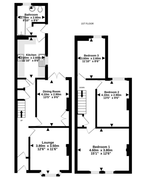
The not very good floor plan supplied by the agent - the lean to isn't even on it but it runs down the full length of the kitchen and we measured it as 11ft x 6.5 foot, according to my husband. The doors are upvc and the roof is corrugated plastic. It almost certainly has no sign off in terms of any kind of building control but that isn't really the sort of thing we'd be worried about, other than electrics.

The doors from the dining room are internal wooden doors and go into the lean to, so we wouldn't have to remove any external style doors to make this work. The wall between the kitchen and the bathroom is a chimney breast.

The dining room is such a big room for a 4 person dining table, which could be pushed to the side I suppose. But, the lean to was in pretty good condition and more like a real room - all the external walls had been insulated and plaster boarded so it didn't feel like a really crap lean, though the roof definitely needed replacing and we'd install a newer radiator to warm it up - this is actually the biggest issue we'd foresee. It's not like we get enough sun / warm in the UK to imagine we'd be able to use it for half the year - more like a few weeks!!

Basically, it seems like a waste to not use it. And, a family room / playroom would be most useful; otherwise we would use one of the loft rooms (also not in the floor plan, as it is not to regs) for that purpose. Except that would be more useful as an office / spare for parents visiting - though we do love an upstairs living room, which we currently have.

So, it's overall a planning conundrum and as its built and needs tarting up we would like to get best use out of. Not knocking down the kitchen wall will save cash that can be diverted to other stuff. But, sometimes you can think saving a little money here and there turns out to be a false economy!

To bother with formal dining room
OP posts:
KnickerFolder · 16/01/2025 14:56

What are you going to do about a bathroom, if you knock through or turn it into a loo/utility?

I will be a real pain traipsing through the dining room to eat in the lean to.

It seems like a house with 2 major downsides (downstairs bathroom and small kitchen with no dining space) that can’t easily be fixed without investing money that you say you won’t get back. Have you had quotes and checked with estate agents to be sure?

TaupePanda · 16/01/2025 15:12

KnickerFolder · 16/01/2025 14:56

What are you going to do about a bathroom, if you knock through or turn it into a loo/utility?

I will be a real pain traipsing through the dining room to eat in the lean to.

It seems like a house with 2 major downsides (downstairs bathroom and small kitchen with no dining space) that can’t easily be fixed without investing money that you say you won’t get back. Have you had quotes and checked with estate agents to be sure?

We're going to move the bathroom upstairs to the smallest bedroom. There are two rooms in the loft as well, so we'll have enough bedrooms to go round.

We don't feel the kitchen is small so don't see that as an issue. We had the same kind in our London house and it worked fine. Right now we have a big open plan kitchen diner living room and its no better but in many ways a lot worse. As a result I don't love a side return / big open plan space, especially for 100k and is one of the reasons ww want to move. So the rough layout isn't going to change unless someone can convince me otherwise.

OP posts:
JimHalpertsWife · 16/01/2025 15:15

Open the kitchen into the existing bathroom - plenty of space at the end for dining table for 4.

Then you have second reception for an additional reception room and I'd use the lean to as the playroom for ease of Indoor/outdoor play.

KnickerFolder · 16/01/2025 15:34

Well, yes, it’s bigger than my London kitchen! It’s a small kitchen in the sense that it has no room for dining, which is a fundamental issue because you need to have a dining space elsewhere.

Are you going to be able to bring the loft rooms up to building regs? Doing that, adding a bathroom upstairs and creating a dining space in the kitchen by knocking into the bathroom seems like a better investment for your money. You could turn the lean to into a utility.

TreadSoftlyOnMyDreams · 16/01/2025 15:52

What about doing this if funds permit and you're already planning on changing the small bedroom to a bathroom ?
www.rightmove.co.uk/properties/154849409#/?channel=RES_BUY

TreadSoftlyOnMyDreams · 16/01/2025 15:57

2nd reception room in a 4 bed house with teens is a godsend these days. TV room/snug with folding doors to the main living room, study with a pull out sofa bed,
Here's another one where they've kept the downstairs bathroom and made it a utility. https://www.rightmove.co.uk/properties/148698935#/?channel=RES_BUY

Check out this 5 bedroom property for sale on Rightmove

5 bedroom property for sale in Annandale Road, London, SE10 for £1,400,000. Marketed by John Payne, East Greenwich

https://www.rightmove.co.uk/properties/148698935#/?channel=RES_BUY

TaupePanda · 16/01/2025 16:13

TreadSoftlyOnMyDreams · 16/01/2025 15:52

What about doing this if funds permit and you're already planning on changing the small bedroom to a bathroom ?
www.rightmove.co.uk/properties/154849409#/?channel=RES_BUY

I know people really like these side return kitchens with islands but I just don't think they're worth it. We have that right now and my kids just see it as a play space. They run around the island, banging themselves up and getting under everyone's feet. When we have people over we inevitably end up in that space and younger kids crawl about in it. I hate it.
I think we're going to have to get inventive for this, possibly moving the kitchen completely and changing the use of other areas too. Something to mull over.

OP posts:
JimHalpertsWife · 16/01/2025 16:31

6.5ft just feels too narrow to fit a dining table with chairs on either side of it

JaninaDuszejko · 16/01/2025 16:52

So you currently have a 3 bed house with a downstairs bathroom, an illegal attic and a lean to that will be leaching heat. TBH I wouldn't touch it. You would have to spend lots of money to meet the regulations but then not have any more space (although you'd be able to sell it as a much larger house so make money then but you'll need to out in a low offer this time since it currently a 3 bed house with a downstairs bathroom).

You can't get rid of the downstairs loo unless you replace it, is there space under the stairs? If you're going to make it a 4 (?) bed house by upgrading the attic and putting the main bathroom upstairs (is there room for an attic shower room, it would be sensible to have a loo on each floor or would you have to lose a bedroom?) then a utility room/cupboard and two reception rooms is sensible. You can survive without the lean to but much as I'm ambivalent about them and the impact it has on the back room that ends up very dark it will add valuable m2 to your house. Maybe do the upstairs changes first and live with it as it is for a year or so then see how you feel. Or go for something that needs less work
,

TreadSoftlyOnMyDreams · 16/01/2025 16:53

If you have little kids couldn't you use the second reception room / dining room as a playroom off the kitchen though? Kids are always going to run around though. If the side return is chilly they'll end up under your feet anyway. And you don't have to have an island, you could go back to the traditional U style. I think people like them as it's nice to chat to people while entertaining and everyone always ends up in the kitchen anyway.

We have a dining room, it is rarely used. Nice when we do but for most of the year a complete waste of space as we either eat in the kitchen or garden.

We've moved now but had a house similar in style to your layout and were going to convert the side return. Moved instead.

But - one of the more radical architects suggested moving the kitchen entirely to the front living room which had enough space for a dining table too, putting a bathroom/utility/bootroom/pantry into the second reception and a huge living room across the back. You could in that scenario create a temporary table for special events.

JaninaDuszejko · 16/01/2025 16:56

And, FWIW, I do think it's important to have a dining room. We had a small kitchen in our last house and the dining room was used constantly. 3 meals a day plus arts and crafts and homework and playing. Dining rooms only aren't used if you have a large kitchen diner and always eat in the kitchen.

BarnacleBeasley · 16/01/2025 17:05

I like to have a dining room (and have kept mine even though we've now got a bigger kitchen-diner), but it used to be - and would be for you - really annoying having to carry all your food and plates from the kitchen down the hall into the existing dining room even if you don't add the extra distance round the corner to the lean-to. I think you should knock through into the current bathroom though I agree with a PP that you would still need to fit in a downstairs loo somewhere.

Geneticsbunny · 17/01/2025 08:20

Won't you end up with food all over the place if the kids don't eat at a table?

JimHalpertsWife · 17/01/2025 08:32

Geneticsbunny · 17/01/2025 08:20

Won't you end up with food all over the place if the kids don't eat at a table?

I don't think the OP is planning to go table-less

PlanetJungle · 17/01/2025 08:35

You’ll be driven mad carrying food out of the kitchen into the hall dining room and then cold side return. Bad idea!

KingOfPoundbury · 17/01/2025 08:36

If one doesn't have a formal dining room, you won't be able to hold banquets or host foreign dignitaries! Is that what you want?

We have several dotted around the land. One doesn't understand why everybody doesn't do something similar. It's all rather puzzling to one.

Tcsha · 17/01/2025 08:40

Where are you going to eat your meals, not sure I would like to eat in a chilly side return every day.

Frowningprovidence · 17/01/2025 08:45

I think the dining room can be used as an additional famiky room with a dining table in it. There looks space for a small table (or an extending or folding one) and a couple of comfier chairs and a second tv. Lots of things children do need a table any way. you just need somewhere to tidy to when you want to eat. (The lean to)

You can always store a trestle table and extra chairs in the attic for the 3 bigger meals a year. We actually keep folding chairs under our sofas.

I mean there is lots you can do with more money but I think it works spending none.

BuzzieLittleBee · 17/01/2025 08:53

The distance from the kitchen would be annoying. You've all sat down to eat your fish fingers and chips... and realise you forgot the ketchup. Back you go. When you've finished, someone wants seconds... back you go. You take a loaf of garlic bread through, and then realise you don't have kitchen roll for messy fingers... back you go. And so on.
As somewhere to sit whilst you're having a quick breakfast, it sounds bad. If one child needs to have their tea early before going to a club, it sounds like a miserable place to eat...

I'd use the lean to as a utility, and work out a way to have a dining table and kids' stuff in the dining room. Kids will want somewhere to sit and do drawing/crafts, and homework, and the lean to sounds miserable.

I think the fact that it's not on the plan is very telling. It's not habitable space. Eating should be an enjoyable thing, not just something you 'do' in any space available.

New posts on this thread. Refresh page
Swipe left for the next trending thread