Meet the Other Phone. Flexible and made to last.

Meet the Other Phone.
Flexible and made to last.

Buy now

Please or to access all these features

Property/DIY

Join our Property forum for renovation, DIY, and house selling advice.

Rooflight dilemma

7 replies

Shedboyzz · 08/01/2025 22:34

Hi, struggling to decide -

  • size- currently specc’d as 2.5m x 1.5m at my request (but were originally suggested by architect as 2m x 1m)
  • orientation
  • position
  • flat vs lantern

My ocd is off the charts on this. My head says the rooflights should be orientated above the width of the likely dining area and (as much as possible) over the length of the island, however it’s been pointed out that this then makes overhead lighting a challenge. Now I’m sure sure whether they should go

Also I wanted lanterns (rather than flat) as they really give the sense of height and space but extension is south facing so bit concerned about heat

all help appreciated

Best

Rooflight dilemma
OP posts:
Shedboyzz · 08/01/2025 22:40

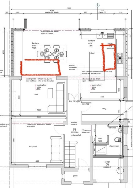
This is the original architects suggestion…

Rooflight dilemma
OP posts:
Geneticsbunny · 09/01/2025 09:36

I would go with what the architect has suggested but make the middle of each one 1/3rd of the distance from one wall and 1/3 in from the other wall so they are equally spaced and then move the table a bit to the right so that it isnt directly under the roof light for lighting.

Although I suspect that the architect knows what they are doing and has put them where they are for a good reason. Can you ask them? Did they specify lanterns or flat panels?

everythingcrossed · 09/01/2025 09:41

I think having them directly over the table/island looks great but could become unbearably bright and hot depending on which direction your house is oriented.

A1b2c3d4e5f6g7 · 09/01/2025 15:43

I wanted the same as you, one huge roof light over the dining table. The architect talked us out of it, and we have two in the dining room the same size that your architect specified. One each side of the table. Actually I'm really pleased we did that now, as it is nice and bright, looks symmetrical, and is never too glaring. We also have a big statement light over the dining table and it looks really good having that focal point.

Can't comment on the lantern vs flat as I wanted flat as like the aesthetic of that. However our builder said he fits primarily lanterns

minipie · 09/01/2025 16:00

That’s very nearly my floorplan. We have rooflights in the places I’ve marked in red on the picture below.

Our left hand rooflight is great. It isn’t directly above the dining table - our dining table moves around anyway, we sometimes extend it or turn it the other way. But it provides light to it and - importantly- lights the snug area so that doesn’t feel like a dark cave.

Our right hand rooflight, well it’s good that it’s not over the island because I do need the lighting over the island. It’s good having it near the hob as we can open it to allow smells/vapours out. However it is very hot in hot summers (when it’s say 29+) as the sun is right over my cooking space. I’m not sure what the best place for it is tbh. But definitely not right above the island as you do need lighting on that island.

I think maybe your architect is right here? Their proposed locations provide light but it’s not directly over anyone’s heat so nobody gets cooked on hot days. Also allows for lighting.

I would highly, highly recommend having at least one of the rooflights opening (so that means probably flat not lanterns, though I have seen opening lanterns). Also definitely go for the most UV blocking glass, and consider getting built in blinds. I also recommend an awning over your folding doors. If you can’t stretch to an awning/opening rooflight/UV glass, then be very careful how much glass you put in.

Heat is a definite problem with S facing and lots of glass. It wasn’t such an issue 6/7 years ago when we planned our extension, and last summer wasn’t that hot, but in between there were a run of hot June/Julys which were pretty 🥵 in our kitchen - would’ve been unbearable without the things I’ve mentioned.

Rooflight dilemma
minipie · 09/01/2025 16:02

One further thing to add

Symmetry and things lining up matter MUCH less than you’d think, once you are sitting in an actual room rather than looking at a bird’s eye view floorplan. Pick comfort and practicality over perfect symmetry/alignment.

Kellyze · 23/01/2025 12:26

Hi there, since I work with skylights, I can help you get a quote and great price on whatever you choose. I personally would go for fixed, but that's very personal. Whether you go for flat or lantern, I’ll make sure you’re sorted with something practical but beautiful.
Let me know if you are interested. Whatever you choose, it’s going to look amazing, and you’ll be so glad you did it. 💛
Best of luck with it.

New posts on this thread. Refresh page
Swipe left for the next trending thread