Meet the Other Phone. Only the apps you allow.

Meet the Other Phone.
Only the apps you allow.

Buy now

Please or to access all these features

Property/DIY

Join our Property forum for renovation, DIY, and house selling advice.

Kitchen Layout Options

23 replies

sasat · 13/11/2024 09:38

First World problem.

I would like a Mum opinion on which option to go for . Larger kitchen with large sitting room diner or smaller kitchen with bonus of having a snug!
I have attached our original floor plan with the structural wall marked and the 2 options . The snug option means we don't have to touch the major structural wall but the kitchen is small for the size of house.
Thanks

Kitchen Layout Options
Kitchen Layout Options
Kitchen Layout Options
OP posts:
Namechange13101 · 13/11/2024 10:15

looking at this the snug is only accessible from the boot room? I'd be going for the other option,. has a better flow and i prefer the more open living arrangements and having a seperate utility room!

DoublePeonies · 13/11/2024 10:15

Option C??

Personally, you need a utility in a house that sie which means it needs that version.
BUT, it looks like then the whole thing is open plan - kitchen- dining-living. Possibly with sliding doors between the kitchen and the living-dining space.

Where does the washing machine go in the snug version?

Personally, the separate living room of one plan,plus the utility of the other plan.

In the snug version, it feels like the kitchen is squashed in the middle of the house.

Sorry.

longtompot · 13/11/2024 10:59

I'd have the kitchen/utility space you have in plan a and the living dining room in plan b. I think it's important to have a separate living room, maybe by just having double doors instead of a wall.

As an aside, and not something you asked, but have you thought about having the door to the en-suite coming off the dressing area rather than the bedroom area? I think it would be less of a disturbance to the one in bed should the other get up in the night. That, and viewing the loo from the bed is not the best view imo

Geneticsbunny · 13/11/2024 13:02

I agree. Utility will be more useful than snug.

Is the office large enough for a double bed if needed? Always useful for future proofing to have a downstairs room which could be used as a bedroom for elderly relatives or post op recovery for you/your other half.

sasat · 13/11/2024 13:49

Thank you for all your useful opinions.
Has anyone got an opinion on getting rid of gas central heating system and having electric radiators.

OP posts:
Geneticsbunny · 13/11/2024 18:00

Only a good idea if you want your heating bills to be 3x bigger.

If you want to move towards being more environmentally friendly then install wet underfloor heating and as much insulation as you can.

You can then choose between a gas boiler or a heat pump.

CatherinedeBourgh · 13/11/2024 18:06

I'm getting rid of a heat pump with wet underfloor heating and replacing for electric. The cost of fixing and upgrading the heat pump was more than it will cost to put in enough solar panels to make up the difference in consumption, and the solar panels will still give us a benefit in the summer.

I wouldn't want to lose the utility, although I also prefer a separate sitting room.

Seaside3 · 13/11/2024 21:27

I'd keep a separate utility and a separate lounge.

Newbie887 · 13/11/2024 22:01

I would prefer the one with the separate living room, but instead of a snug I would turn that area into a combined boot room / utility. I would make the entire area a bit smaller and give the extra floor space to the kitchen / dining room so that you can get a sofa in there somewhere. We use our sofa in the kitchen alllll the time. And I’m very happy to have a living room I can shut off when kids are playing games in there / messing it up making obstacle and floor is lava courses.

TizerorFizz · 13/11/2024 22:55

I really dislike snugs. We like partially open plan. It makes the whole house feel bigger without fiddly little spaces where the family cannot exist together. The office is already that shut off relatively small space. A seating area within the kitchen is better.

Geneticsbunny · 14/11/2024 07:52

@CatherinedeBourgh could you not have kept the wet underfloor heating with the solar panels? The temperature you need to heat the water is way lower than for central heating with radiators so it would cost less money to run it than radiators regardless of what you are powering it with.

Pfpppl · 14/11/2024 10:04

Newbie887 · 13/11/2024 22:01

I would prefer the one with the separate living room, but instead of a snug I would turn that area into a combined boot room / utility. I would make the entire area a bit smaller and give the extra floor space to the kitchen / dining room so that you can get a sofa in there somewhere. We use our sofa in the kitchen alllll the time. And I’m very happy to have a living room I can shut off when kids are playing games in there / messing it up making obstacle and floor is lava courses.

This is exactly what I was thinking!

Is that an island on the kitchen plan? I think I'd be tempted to do away with that, move the dining table over to the left nearer the kitchen and have a sofa area on the right hand wall.

minipie · 14/11/2024 10:25

Newbie887 · 13/11/2024 22:01

I would prefer the one with the separate living room, but instead of a snug I would turn that area into a combined boot room / utility. I would make the entire area a bit smaller and give the extra floor space to the kitchen / dining room so that you can get a sofa in there somewhere. We use our sofa in the kitchen alllll the time. And I’m very happy to have a living room I can shut off when kids are playing games in there / messing it up making obstacle and floor is lava courses.

Also agree entirely with this

That snug will never get used IMO, too separate from the main kitchen/dining/living. (Unless you have teens really into gaming or something like that in which case I can see a use for it).

You def need a utility.

So that says option A. But in option A I don’t like the combined living/diner, I would prefer combined kitchen/diner with separate living (with a connecting door) as per option B.

If you make the utility the size it is in option A then you should have room for a sofa or couple of comfy chairs in your kitchen/diner.

In summary: option A, but with kitchen/diner and separate living room like in B.

BuzzieLittleBee · 14/11/2024 10:40

I'm not sure why you need a snug if you've got a separate living room? And even more so at the expense of a utility (although in that version I'd replace the downstairs shower with a lootility - you've got 2 bathrooms upstairs already, so do you need a 3rd shower?)

I don't like the one with living/dining combined. If 2 of the 3 functions were being combined, I'd always combine kitchen/dining over living/dining.

If you go for the one with the living room at the front, don't put 2 doors into that room - it massively limits how you can use the space. Get rid of the door from the dining room.

In the first one, the utility seems massive - not the best use of space. You'd be better having more of that for kitchen space.

I'm not sure any of them is ideal, but there's plenty of space to work with so there's a solution out there somewhere!

TizerorFizz · 14/11/2024 16:33

I actually do not see a huge advantage in shutting teens off from the rest of the family. It’s good to have easy oversight of what they are doing if you can. Going to and fro into a tiny snug makes little sense to me. I don’t like washing and loos in the same room. Not sure a downstairs shower ever gets much use. I’d just have a cloakroom, boot, school stuff and coat storage and then a separate laundry room. You can also have a table on the end of an island. Ours is built in and makes a good area for conversation, homework and eating.

oopsupsideyourheadisayoopsupsideypurhead · 14/11/2024 16:46

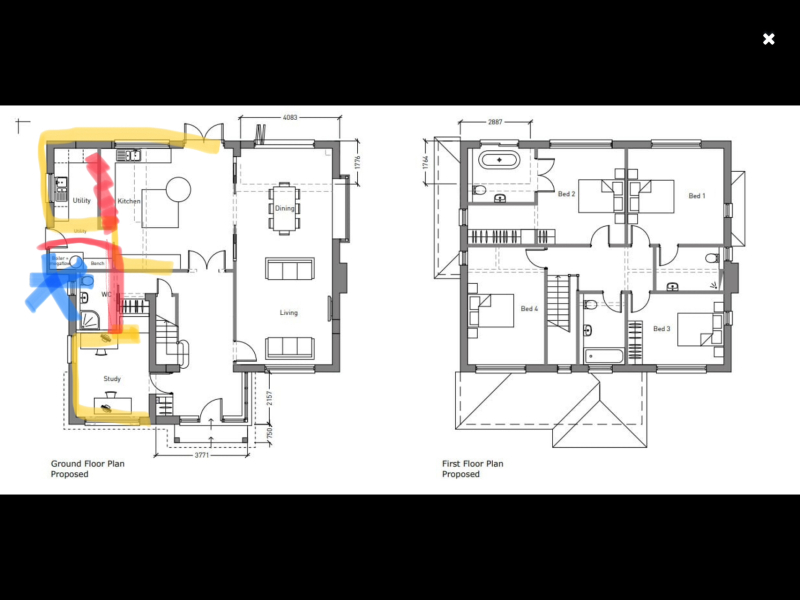
Can you make the kitchen bigger where I've marked in yellow
Lootility ie. Wc, sink, washer, dryer
And then snug at front

Kitchen Layout Options
oopsupsideyourheadisayoopsupsideypurhead · 14/11/2024 16:47

Blue star mark = lootility

Newbie887 · 14/11/2024 19:19

I can see why you would want to have a separate loo/shower room next to the office as if that room were used as a spare room or bedroom in the future then it would have an almost-en suite. So I would keep that separate to the utility / boot room.

tricky to know how to get a sofa into the kitchen / dining area but presumably an architect drew up these plans and could rework the kitchen so it would have a seating area space. We have one sofa and a wood burner in our kitchen, and it’s a nice place to hang out as adults when the kids are in the living room. I like an island as then you can cook without having your back to the room, however perhaps in this case it’s better to get rid.

look at internal glazing on Pinterest; it would be nice to have some large window panels looking from your kitchen into the living room, to keep that room connected but still seperate. You can hang curtains if you want to be able to shut out the mess / make living room feel cosy

CatherinedeBourgh · 14/11/2024 21:29

Geneticsbunny · 14/11/2024 07:52

@CatherinedeBourgh could you not have kept the wet underfloor heating with the solar panels? The temperature you need to heat the water is way lower than for central heating with radiators so it would cost less money to run it than radiators regardless of what you are powering it with.

I don't particularly like wet underfloor heating, had it (solar powered) in our last house and found that it took too long to heat up and cool down, I wasn't keen. In the end we never used it, just heated ourselves with the wood burner and the occasional radiator.

In this house we are reconfiguring the ground floor so the zones would have been off, the pipes that were laid were also too narrow so we're not sure how well it would have worked.

By having directly electric underfloor heating where there is stone floor and radiators elsewhere, we keep maximum control over the temperature for minimum hassle. We don't need a large tank and will probably not use the battery that much (we don't use heating overnight). I don't feel that solar thermal makes that much sense economically any more, given how cheap PV is these days (I've had solar since the early 00s, so have seen many incarnations of it!)

TizerorFizz · 14/11/2024 21:53

We have (24) solar panels, 2 air source heat pumps and 4 storage batteries. We have quite a large house and no gas. Definitely cheaper to run than other systems but a big outlay. Wet underfloor but radiators in some areas downstairs and all radiators upstairs but electric underfloor in 2 bathrooms. A log burner and a fireplace downstairs. Highly insulated and we keep it warm but not hot! It’s fine. It’s efficient and the car doesn’t cost much to charge!

Geneticsbunny · 15/11/2024 10:42

@CatherinedeBourgh I think you are supposed to leave wet underfloor heating on all the time. We do and it seems to work fine. It is set to 18 and then drops to about 14 overnight. It was a faff to get the timing right but it lovely now as we have lots of wall space and a nice gentle warmth.

Sounds like you would have had to fit a whole new system though so I can see how that would have been difficult.

CatherinedeBourgh · 15/11/2024 18:26

Geneticsbunny · 15/11/2024 10:42

@CatherinedeBourgh I think you are supposed to leave wet underfloor heating on all the time. We do and it seems to work fine. It is set to 18 and then drops to about 14 overnight. It was a faff to get the timing right but it lovely now as we have lots of wall space and a nice gentle warmth.

Sounds like you would have had to fit a whole new system though so I can see how that would have been difficult.

Yes, you're supposed to leave it on all the time which is what I hate about it.

I really dislike systems that are permanently on. The temperature we want things to be at varies a lot, so I hate the restrictions it imposes.

New posts on this thread. Refresh page