Meet the Other Phone. A phone that grows with your child.

Meet the Other Phone.
A phone that grows with your child.

Buy now

Please or to access all these features

Property/DIY

Join our Property forum for renovation, DIY, and house selling advice.

Where would you put the fridge?

17 replies

Blackfluffycats · 30/10/2024 21:19

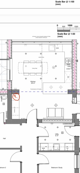
Halfway through our new kitchen extension but not sure where to put the fridge! The architects have put it near the oven but I think it looks odd as there aren’t going to be any tall/wall units so it would be a free standing one in the middle of all the lower units. It can’t go on the back wall because that is all glass.

could it go in the pantry area or would that be too far away from the oven/kettle and be annoying?

Where would you put the fridge?
OP posts:
GirlMumGabby · 30/10/2024 21:23

I would have integrated under counter fridge and separate freezer on the back wall. Use the free standing space for more cupboards.

username7891 · 30/10/2024 21:26

I can't read plans like that so my advice is blind. Have the fridge near where you're cooking. Don't have an under counter fridge because it's a pain to use, from experience.

My kitchen is a lot smaller than yours and my fridge is nearly opposite the oven. It's so much easier to cook.

LindaDawn · 30/10/2024 21:30

Not sure I can fully read your plans unless the question mark is the pantry area. I had my freestanding fridge/freezer in my utility room for 36 years and didn’t find it a problem whatsoever. Now have it in my new extension family room but only moved the fridge/freezer because I wanted to have a tall unit in my utility room for more storage.

BronwenFrideswide · 30/10/2024 21:36

How near the oven?

Blackfluffycats · 30/10/2024 21:40

Eeeek lots of different opinions!

@LindaDawn yes pantry area is where the question mark is.

@BronwenFrideswide theres an f/f and a cross on the plans where the architects have put the fridge. We are planning on getting a range cooker though so I think it will be pretty much right next to it.

OP posts:
parietal · 30/10/2024 21:42

Keep it where it is.

NigelHarmansNewWife · 30/10/2024 21:48

I think the plan has it in the best location for the space. Don't buy integrated. You really restrict your choice and they don't last as long as freestanding. If there's the space, have a separate full size fridge and a separate full size freezer rather than an American style one. This will give you more usable internal space, particularly a bigger freezer. You can change the hinge side of the doors so they open like those of an American style one.

downwindofyou · 30/10/2024 21:54

Surely there will be an extractor unit over the hob. That will be at high level so the FF won't be the only high level thing

Soontobe60 · 30/10/2024 21:58

Put it in the top left corner

BronwenFrideswide · 30/10/2024 22:35

theres an f/f and a cross on the plans where the architects have put the fridge. We are planning on getting a range cooker though so I think it will be pretty much right next to it.

Ah, thanks couldn't see the ff clearly. I personally wouldn't want the fridge right next to the cooker. I think in the pantry would be the better option.

Or this Put it in the top left corner but I think you said that wall is glass? How much room is there bottom left, other side of the pantry?

I like my fridge away from the cooker and with a worktop next to it makes it easier when taking things out/putting things in to have somewhere to put them down but that is probably just personal preference.

LittleGreenDragons · 30/10/2024 22:44

I thought the sink, the cooker and the fridge should all be within two steps of each other in a triangle type formation for efficiency and ease. Is that advice old fashioned now?

nutellaaa · 30/10/2024 22:56

You could put a fridge freezer where your question mark is. Big kitchen so maybe a nice 90cm wide American type. They can be steel or integrated behind your kitchen doors. Then put a fisher and Paykel cool drawer near the sink run for milk, butter and whatever you need more often. Definitely don't put the fridge where that big x is next to the cooker. Would ruin the aesthetic completely especially with the peninsular you've got planned

SugarandSpiceandAllThingsNaice · 30/10/2024 22:58

I’d forgo the breakfast bar - yellow with x across it.

  • they are passé
  • it disrupts the flow
  • more seating is not needed when you have an eat in kitchen plus a snug.
  • you already have a ton of counter space
  • give you options for different size and shape tables- which I’d rotate 90degrees. The plans show only 1m space..this is narrow.

The blue would be the fridge freezer, in the corner by the oven. You want it close so you can take food out, put on counter next to hob and prep for cooking.

Where they have f/f for under counter, put in a wine cooler/drinks fridge

These leaves your pantry and storage wall untouched. You could consider having some of this glass fronted to show off nice china and I’d put an appliance garage in there as well so your counters aren’t cluttered.

Where would you put the fridge?
Whenwhenwhat · 31/10/2024 07:34

I like worktop space either side of my cooker so I can have cooking utensils laying down on the side when not in pots, and rest oven trays on the side to turn over food on the tray.
I don't understand what the 'pantry area' is? Is it where you will have your washing machine and dishwasher? Or is it just extending the kitchen units into that part of the room? I don't think having the fridge there would be good as you'd have to walk around your breakfast bar to get to it.

downwindofyou · 31/10/2024 14:22

How about removing the breakfast bar. Shortening that return but turning it into a stud wall. Putting FF where indicated and the striped area in the corner can be a corner cupboard below and shelves or space for appliances and shelves above

Where would you put the fridge?
downwindofyou · 31/10/2024 14:26

Kind of this idea

Where would you put the fridge?
Allthegoodnamesarechosen · 31/10/2024 18:14

So your ‘architects’ think that putting something that uses electricity to keep things cold next to a great big heat source is a good idea?

…almost anywhere would be better.

New posts on this thread. Refresh page