Meet the Other Phone. Only the apps you allow.

Meet the Other Phone.
Only the apps you allow.

Buy now

Please or to access all these features

Property/DIY

Join our Property forum for renovation, DIY, and house selling advice.

Extension plans for 2025+

9 replies

2025andbeyond · 29/10/2024 23:19

Hello ladies, another question regarding renovations and extensions. We bought a 3 bed detached 2 years ago at the peak of the market, done some renovation work and in terms of bedrooms space upstairs it works fine for us. However, the kitchen is tiny and it's always a squeeze around the dining table with 3 pre-teens. The plan was to extend not massively, but just enough to have a dining table in there comfortably so 3 X 5 m. The trouble is, with the current market, we probably won't get that money back if we sell in say 5 years and I am not sure if we will stay put for long. It could end up a forever home with a bigger kitchen!

The other option is to potentially add a door between the kitchen and living room so we can use the dinning table in the living area and have a bit of an open living. This option is obviously less costly and means that we won't take the house beyond the ceiling price of the area.

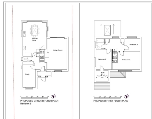
Images with current plans and those proposed for the extension are attached. Any thoughts will be much welcome!

Extension plans for 2025+
Extension plans for 2025+
OP posts:
CatherinedeBourgh · 30/10/2024 05:55

I wouldn't contemplate an extension if you are not sure you will be staying even 5 years - even if you get your money back, the disruption wouldn't be worth it!

Could you use the study as a dining room?

2025andbeyond · 30/10/2024 07:08

We're currently using that room as bedroom 4 for my DS. But could be an option if he moves out from home in a couple of years for uni.

OP posts:
Walkthelakes · 30/10/2024 07:25

I would maybe take the wall down between the kitchen living room and have your dining table at the end there. A kind of free flow space. We are just finishing an extension; it’s taken so long, been much more expensive than the quote and I think I’ll have to live here until I’m 100 to even consider getting the money back!

Walkthelakes · 30/10/2024 07:26

Also it has been hands down thr most stressful thing we’ve ever done and we are normally quite resilient and hardy

Seaside3 · 30/10/2024 07:45

If you've got 3 teens, there's a chance all of them will have gone to uni in 5 years, so you won't need the extra space.

I'd go into your lounge if you desperately want a separate dining space and can't afford an extension. It's not my preferred option, but cheaper. If you can afford it, and like the area etc, I'd do the extension. The next buyer will have the same issue and it could help sell it in the long run. Although, with the extra space, you might not want to rush anywhere!

BirthdeighParteigh · 30/10/2024 09:11

I’d look into whether taking down the cupboard under the stairs in the kitchen would free up enough head room for more dining space at that end of the kitchen. Perhaps with banquette seating, so nobody is standing up and bashing their heads on the underside of the stairs.

Tupster · 30/10/2024 09:52

I think the proposed extension would make it a really nice house. Having the big kitchen diner and also the big living room, both accessing the garden would be very attractive. No idea of the cost, of course, but it looks well worth doing to me - I would have thought it would make a significant difference to the value and saleability of the house.

2025andbeyond · 30/10/2024 10:59

Thank you all, so just to put things into perspective a but more: I have a quote for the extension coming at around 35k. The idea is repurpose the current kitchen cabinets to keep costs down (I did this in a previous house renovation and as long as you have a good builder, you won't really tell the difference). Going under the stairs is not really an option as that's much needed storage and that's where the washing machine dryer lives (no other space for it).

The are is lovely, good school, nice neighbourhood and good links to London. To move into a slightly bigger house (with bigger living space downstairs) in the area we will need another 50k on the mortgage plus a min 30k stamp duty and moving costs. My eldest is also on teh spectrum so the ideally he will need to stay home while at uni.

OP posts:
2025andbeyond · 31/10/2024 08:25

Well, it seems like moving house might be more costly with the new budget announcements

OP posts:
New posts on this thread. Refresh page