Meet the Other Phone. Only the apps you allow.

Meet the Other Phone.
Only the apps you allow.

Buy now

Please or to access all these features

Property/DIY

Join our Property forum for renovation, DIY, and house selling advice.

Conversion of chalet bungalow to house

7 replies

metastorm · 06/08/2024 13:41

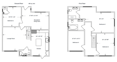
I have no experience of extension work. Has anyone added a floor (raising roof height) to a bungalow or converted a bungalow to a house? It is detached bungalow, consisting of the ground floor and the living space in the loft, that is unsuitable, so we are looking to add a floor by raising the roof height. While adding a floor (to have three bedrooms) I am thinking of reorganising & renovating the ground floor. I also read about knockdown and rebuilding from the start.
Attached existing layout and the new layout that I drew (better layout options/ideas are welcomed). I do not have any clue about the cost. Should I consider extending in the back and on the side as well? or should I just do an upward extension or just do the back and the side extension? A minimum we would like to have one bedroom on the ground floor along with kitchen dining/lounge & reception. And at least two more bedrooms.

I am sure many have done something similar, so looking to learn from experience/stories and guidance. Should I extend the existing one or knock it down and rebuild it? What would it cost? how long would it take? Better layout options? We are in the south-east area

Conversion of chalet bungalow to house
Conversion of chalet bungalow to house
OP posts:
Rainbowshine · 06/08/2024 13:45

That sounds like a monumental amount of work, even if (and I would say that’s a massive if) you got planning permission given you’re in the SE it might be cheaper and easier to move house rather than do this.

halava · 06/08/2024 13:49

Unless you got the house for free and won't be living there during the reno, it seems like a huge amount of work for not much advantage in the end really. And cost wise as pp said, another house with everything done and with the rooms you need would probably work out more economical.

Another2Cats · 06/08/2024 15:31

I think that I agree with the PPs. This does come across as being a lot of very expensive work to gain, what, 47 sq metres of space.

However, if you have room, then extending to just one side may work.

Here is one example. It's from a street in Twickenham where just about all the bungalows have had this sort of extension done.

A chalet bungalow extended to just one side with a dormer extension above a ground floor extension. So, from one side, the house still looks like a bungalow but from the other it's got two full storeys..

The two photos below are from the rear and then a google streetview of what the front looks like.

Conversion of chalet bungalow to house
Conversion of chalet bungalow to house
Mindymomo · 06/08/2024 15:37

Where I live most bungalows have had extensions like what you are wanting. Check out planning applications for Mowbray Avenue, Byfleet, Woking Borough Council planning, there have been 2 this year, one has been completely gutted inside but all outside walls remain, another has had a large first floor full extension.

Needanadultgapyear · 07/08/2024 08:22

We have what was a bungalow, now is a dormer bungalow. We are reconfiguring and slightly extending to have better downstairs space. If you want three beds upstairs and to reconfigure downstairs I think you need a budget of at least 300K. Our project is bigger, but we have done a sense check with an estate agent to check that they think we will end up with a property at least equal to our total spend. It is going to be 18 months if upset for us, but this is our forever home so worth the cost and time.

HotCrossBunplease · 07/08/2024 08:25

You’ll need planning permission. Best to get an architect on board.

metastorm · 02/09/2024 12:36

Thanks for sharing your thoughts and input.
@Rainbowshine , @halava - yeah it is a bigger project. Other properties in the market at the desired location are considerably expensive. So we are exploring this option.
@Another2Cats , @Mindymomo - I didn't think about that, thanks for sharing the interesting option.
@Needanadultgapyear - Thanks for sharing the ballpark range, I have requested the builder quotes, and let's see what they come back with. However, the project time range is worrying as that means I would have to pay two mortgages for that duration.

OP posts:
New posts on this thread. Refresh page
Swipe left for the next trending thread