Meet the Other Phone. Flexible and made to last.

Meet the Other Phone.
Flexible and made to last.

Buy now

Please or to access all these features

Property/DIY

Join our Property forum for renovation, DIY, and house selling advice.

1.1 meter internal door/ broken plan

21 replies

WhatNoPeas · 05/03/2024 19:30

I know this sounds like a stupid question, but I'm trying to get a feel for how wide a 1.1m internal door would be.

We were hoping to create a broken plan living room/ kitchen diner with a 1.5m sliding door. It would look a lot better (symmetrical) if the door is only 1.1m.

For info, the kitchen diner is 7x7 meters and has space for a small sofa and chair. The living room is about 4x4.

I've measure it out against the wall but I can't get a feel for the opening. Online the doors I can find pictures of are not in people's homes so I can't visualise the space.

Does anyone have this size door and if so, can I see a picture? Any general thoughts about the possible opening sizes?

OP posts:
Soontobe60 · 05/03/2024 19:32

I think we need a diagram! Ive no idea what a ‘broken plan’ living room is.

WhatNoPeas · 05/03/2024 19:38

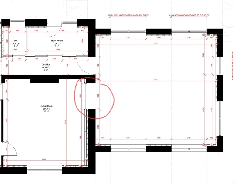
Diagram attached. The gap in question is the part circled red. It would look better (and solve another problem) if it matched the door to the corridor.

1.1 meter internal door/ broken plan
OP posts:
schloss · 05/03/2024 19:40

Get some cardboard boxes, tape them together to the size of the proposed door and add it to the wall - you can then see how the size will look.

Thingsthatgo · 05/03/2024 19:44

At 1.1m it's just a bit wider than usual door isn't it? What makes it broken plan?

ClematisBlue49 · 05/03/2024 19:44

It shouldn't make any difference in terms of getting Building Regulations sign-off, if that's what you mean by 'broken plan'. 1.1m is significantly wider than a standard doorway, which is 762cm, so it should look fine and still feel quite open. How large is your household? Will there be lots of people going back and forth at the same time?

Soontobe60 · 05/03/2024 19:45

Id put a set of double sliding doors between the extension and lounge placed central between the other door and the wall.

WhatNoPeas · 05/03/2024 19:51

1.1 meter would make it more of a normal (if wide) door. If it's 1.5 or 1.6 meters and we keep it open, then it's almost open plan. But I'm not sure we need it that wide.

The cardboard box idea is a good one.

OP posts:
WhatNoPeas · 05/03/2024 19:55

We don't need it that wide in terms of the number of people using it daily. If we keep it wide it's almost like an extension of the kitchen space. Good for parties I guess/ hosting Christmas.

We do have another reception room, but the TV will be in this living room.

OP posts:
Geebray · 05/03/2024 20:05

I would make it wider, and have double folding or sliding doors. A single door that wide is neither here nor there.

And you'd get a much nice flow between the rooms.

SquishyGloopyBum · 06/03/2024 08:43

1.1m is weirdly specific. I think it will be a big wide heavy door that would look odd. Why don't you get double doors?

Allthegoodnamesarechosen · 06/03/2024 09:05

Of course you don’t want double doors, they take up a lot of opening space whichever way they go into a room.

I replaced a void between a conservatory and the room leading into it with a 86cm glass door as part of the re- seperation of the space. It gives a more spacious feel than the standard width but takes up less space less than double doors. Having had double doors which were 120 wide as a pair I’d never do it myself, you end up either squeezing through a narrow space or opening both. I couldn’t have a slider (which I would have liked) as I need to use the wall space, but as long as it is hollow and not solid wood, I can’t see that there would be a hanging problem.

ClematisBlue49 · 06/03/2024 09:55

How about a single bifold door?

Also just to note re the suggestion from a PP for a hollow door... be aware that in some cases Building Control won't sign off the works unless solid doors are fitted.

sbplanet · 06/03/2024 10:23

@WhatNoPeas Are you installing an actual door? If just an opening then we have a 1.04m 'gap' from our small kitchen (3.5m x 2m) to dining room (3.5m x 4m), it's nice. Don't think I'd like a door in it but it's smaller rooms.

WhatNoPeas · 06/03/2024 18:19

The initial plan was to install a 1.5 or 1.6m sliding pocket door between the kitchen and living room. We're back to brick and making new opening so, subject to structural considerations, we can do what we want.

We're considering 1.1 m to match the width of the door into the kitchen from the corridor. That's a fixed width for various reason and can't be changed.

We're considering the smaller size because this allows us to make that wall look symmetrical. I'll try and do a diagram...

@sbplanet i don't supposed you'd mind sharing a pic? Does it feel quite open or like a normal door gap?

OP posts:
WhatNoPeas · 06/03/2024 18:26

The angle, to make the arch in the example where both doors are 1.1m, is like that because at the other end of the corridor we have the stairs cutting across one corner of the corridor. They are quite low (about 2m). Having it on the angle allows for greater head height at the other side of the corridor. Hope that makes sense!
If we keep the door to the living room wide, we'll just tackle the coridoor issue some other way.

1.1 meter internal door/ broken plan
1.1 meter internal door/ broken plan
OP posts:
sbplanet · 06/03/2024 18:38

@WhatNoPeas hi, it's tricky to take a picture that gives a good view as the room isn't that big. It feels more like a gap, than a gap that's missing a door. But of course we have no door in it. :) So here's a pic but I'm not sure it helps.

1.1 meter internal door/ broken plan
ClematisBlue49 · 06/03/2024 18:55

I think I would be more inclined to keep both of them square, and then the different widths won't be an issue. The arched shapes look a bit too fussy. (The angle at the other end of the corridor is there for a reason, which is fine, and doesn't mean you have to keep the angle at the kitchen end IMO.)

I'd personally prefer a wider gap with no door if that's possible, as in @sbplanet 's picture.

troppibambini6 · 07/03/2024 09:19

We've just move into a new house last week and have a 115cm doorway. Im really struggling what to do with it. I need some kind of door but it's too wide for a regular style door and too narrow for double (they wouldn't be right any way)
I was thinking maybe a glass door with a glass panel at the side...

NotMeNoNo · 07/03/2024 16:38

Is there a reason for such large and non standard doorways? A generous normal door is 30 or 32 inches ie. 0.76 to 0.8m as that is the right size to walk through comfortably. A wider door would need lots of space to swing open into. Then there's a bit of no-mans land until you get to double doors of 1.4/1.5m wide. As pp said you can get a 1.2m double door but the 0.6 is very narrow to get through.

johnd2 · 07/03/2024 19:50

1.1m isn't the door width is the corridor width, it would be complex to make the door the exact width of the corridor.
By the time you get architrave, door lining and tolerance in the door would be about 900 which is similar to a standard front door, so it's wide but not ridiculous.
So if you match that with the other door it would be similar to a front door again.
I would say the biggest issue would be the swing area, if you can get a standard door plus a little flipper door it would sweep less area in the room. I guess that's the benefit of the sliding door in your previous design, but I can also see the attraction of matching them both as swing doors.

WhatNoPeas · 09/03/2024 14:35

It will definitely be a sliding pocket door no matter what the width is.
The builders have opened up the wall according to the original plan (1.5m I think). We'll go and look at it tomorrow - I think it will be easier to make the decision when standing in the space.

OP posts:
New posts on this thread. Refresh page