Meet the Other Phone. Flexible and made to last.

Meet the Other Phone.
Flexible and made to last.

Buy now

Please or to access all these features

Property/DIY

Join our Property forum for renovation, DIY, and house selling advice.

Moving stairs from the living room - would it cost a kidney?

6 replies

TeeTwenty · 31/07/2023 19:35

The perfect house does not exist and I am so over house hunting, arghhh!

Viewed a house that is ok in most aspects and ticks most of my boxes. The main issue is that the stairs are inside the lounge, which is a big no-no for me.
Also the hallway is super narrow and I do not think it would fit a buggy (on the positive side at least there is a hallway and the main door does not open in the living room!)
Only way I would buy this house is if I could remove the lounge wall and rebuild it so that the hallway could be bigger and the stairs would fit outside the lounge instead of inside.

I understand the lounge would be smaller this way (currently 16*14.5) but it should still be functional!

I am currently waiting for builder quotes. Has anybody done something like this recently and can give an estimate of costs?

I am thinking removing the wall should be easy. As we would build a new one, there should be no issue of steels / load bearing / non load bearing.

The top of the stairs are perfect so only the bottom part needs moving. How difficult can it be really?

OP posts:
wonkylegs · 31/07/2023 19:39

It depends on the structure and what's load-bearing in the vicinity but it's usually remarkably easy to move stairs.
I moved a whole staircase for clients last year on a replan and it was the best value individual improvement we did on the whole house.

parietal · 31/07/2023 22:31

post a floor plan

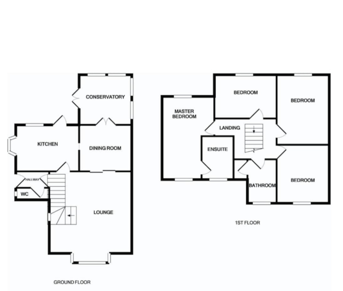
TeeTwenty · 31/07/2023 22:52

Here it is.

Moving stairs from the living room - would it cost a kidney?
OP posts:
parietal · 01/08/2023 21:43

That is a really confusing floor plan. The upstairs looks bigger than the downstairs and doesn't seem to fit.

Is there a Rightmove link?

I'm struggling to see how those stairs could move without re arranging all the upstairs rooms too.

ManyMaybes · 01/08/2023 21:49

That is such a crap floor plan. Such laziness from the estate agent!

Ovinnik · 01/08/2023 21:56

Is the master bedroom on stilts??

New posts on this thread. Refresh page