Meet the Other Phone. Protection built in.

Meet the Other Phone.
Protection built in.

Buy now

Please or to access all these features

Property/DIY

Join our Property forum for renovation, DIY, and house selling advice.

Where do I put my tall kitchen units?

7 replies

filigree2015 · 22/02/2015 13:41

So, DH and I are planning a new kitchen. We've had a look at Howdens / Benchmarx etc but are thinking about being brave and using DIY Kitchens.

We'd love a 50cm full height pull out larder, but one of the kitchen designers thought having just one tall unit would look odd. So, we're thinking about having a second next to it, housing an integrated fridge and a combi microwave.

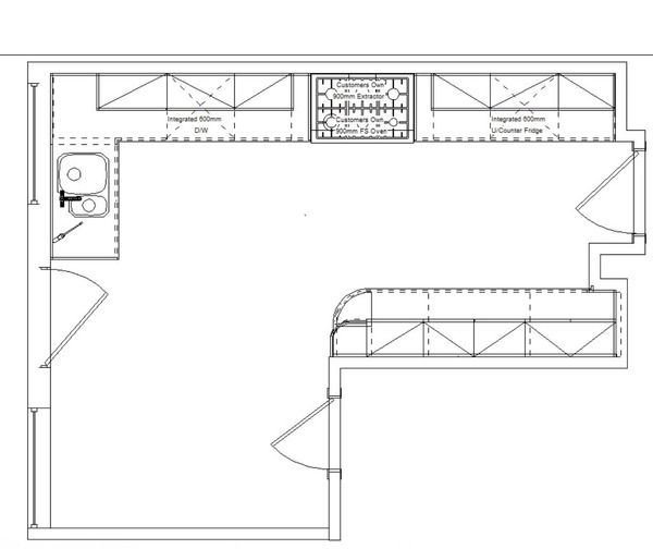
I've attached a plan of our kitchen. We thought we could have these two units on the right as you come in - the larder being first - but kitchen fitter says it might annoy us having them opening over the doorway. The plan is wrong - the door into the kitchen opens the other way, so there wouldn't be any issues with the doors actually clashing.

I see what the fitter is saying - he thinks the the tall units would be better off on the left as you come in. Ideally we'd knock out the pillar to make a bigger doorway, but it probably isn't an option as builder thinks it's housing various pipes. But, DH isn't keen on this option because he thinks it will be a bit overbearing and block the sight lines to the table at the bottom of the 'L'.

Kitchen is about 5.25m by 4.3m at its widest point - but the 'galley' bit where the units are is about 2.5m across. The ceilings aren't particularly high.

I think ideally, we'd both prefer the full length units on the right, but don't want to do it and kick ourselves later! I'd be very grateful for any advice anyone has, because we've been stuck on this for days! Many thanks.

Where do I put my tall kitchen units?
OP posts:
Lweji · 22/02/2015 13:48

Not sure I see an ideal position in the layout that you have.

The best for me would be to have the left side as you walk in (top right of the drawing?) and fill that wall with bottom to ceiling storage(fridge). That would leave the maximum continuous bench space along the other wall.

Marmitelover55 · 22/02/2015 13:50

Please could you clarify which door you come in? Thanks

filigree2015 · 22/02/2015 13:54

Thanks, the door into the kitchen is the one in the top right corner on the drawing. The door on the short bit of the 'L' goes into utility area.

OP posts:
RaisingSteam · 22/02/2015 16:32

I would agree, fridge and tall larder on the left of the door, perhaps larder first then fridge. The sort with internal drawers like this might block the doorway less, as only one drawer open at a time, have the sort with split doors top and bottom. A 50cm door won't protrude that far into the doorway.

That still leaves some length of worktop you could have kettle etc on it, and crockery cutlery in drawers underneath, glasses and mugs above. Then they are all handy for the table. (although not for dishwasher...). I have a thing about kitchens where you can always make a cuppa regardless of what chaos in rest of the room.

Otherwise an OK layout I think.

RaisingSteam · 22/02/2015 16:36

I have this idea you could have a bifold door (2 x 30cm ones) on the larder but you might then need it shelved out into the recess - use say an 80cm or 90cm carcase and order some extra shelves. DIY website ties standard door/units configurations together but if you put in the notes you want something different they adjust it for you before they finalise your order.

filigree2015 · 22/02/2015 18:01

Thanks raisingsteam! The one you've suggested seems like a good option - I'll investigate. Feels like this stuff is so hard to get right. We had a builder round who suggested knocking out the utility area to make a much bigger space, but I love having the washing machine / tumbler and boiler out of the way, and we have a separate fridge freezer in there too. The table area we currently have is fine for a table that seats four, with an extension to seat six if needed. Lots of stuff to think about - seems to take up far too much of my head space!

OP posts:
RaisingSteam · 24/02/2015 08:13

An alternative if you are worried about "sightlines" are the 'mid height" units. With good interior organisation you could get a lot of storage inside, you can get fridges to fit them and then just perch an ordinary microwave on top (way cheaper).

I think your kitchen is a nice size tbh, if you can fit your table and chairs in for everyday needs and a bigger party at a squeeze, having a utility room is brilliant.

New posts on this thread. Refresh page
Swipe left for the next trending thread