Meet the Other Phone. Only the apps you allow.

Meet the Other Phone.
Only the apps you allow.

Buy now

Please or to access all these features

Home decoration

Show me your unextended Victorian terrace kitchens!

13 replies

lizwells2020 · 03/09/2025 06:00

I am in a Victorian terrace in east London and the price of side return extensions has become astronomical.

We have a long narrow kitchen - 8x3.4m and I think we can work with it! I am considering space maximising ideas like creating a bay window into the side return to house some kitchen run/ using oriel seating into the side return/ replacing the bifold doors at the back with built in banquette seating and sliding windows instead.

so have lots of ideas. But I have zero reference images! All I can find on the internet is extension extension extension!

Have you maximised your terrace kitchen without a side return extension? Have you used the space in a clever or interesting way? Please tell me ALL about it if so!

For reference of what I mean I’ve attached the very few pictures I have found after literally months of scouring the internet .. but keen to hear real experience of what works, what doesn’t, anything you love or regret

OR did you remodel and rue the day you didn’t do the side return??

Show me your unextended Victorian terrace kitchens!
Show me your unextended Victorian terrace kitchens!
Show me your unextended Victorian terrace kitchens!
Show me your unextended Victorian terrace kitchens!
OP posts:
Anxiousmum73 · 03/09/2025 06:22

Following as we are in the same position

lizwells2020 · 03/09/2025 08:40

Anxiousmum73 · 03/09/2025 06:22

Following as we are in the same position

Have you had any ideas or floor plans?

OP posts:
NotMeNoNo · 03/09/2025 09:20

8m x 3.4m is plenty big enough for a kitchen. What are you trying to fit in and how many people/bedrooms in the house? Do you need to fit in utility room or wc?

Bifold doors across the back do constrain space as you can't then have your working kitchen at the back of the room. Instead it may end up being split by a walking route to the rest of the house.

lizwells2020 · 03/09/2025 10:25

NotMeNoNo · 03/09/2025 09:20

8m x 3.4m is plenty big enough for a kitchen. What are you trying to fit in and how many people/bedrooms in the house? Do you need to fit in utility room or wc?

Bifold doors across the back do constrain space as you can't then have your working kitchen at the back of the room. Instead it may end up being split by a walking route to the rest of the house.

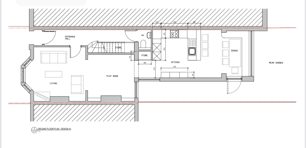
Trying to fit in kitchen with enough storage, and then comfy dining space to seat a lot of people. Family of 4 but ideally want to be able to entertain. We lose a bit of the floor space to a toilet at one end and the access is a bit weird- I’ve attached one of the architect ideas to show what I mean

Show me your unextended Victorian terrace kitchens!
OP posts:
minipie · 03/09/2025 13:34

I would probably aim for a small family sized table in the kitchen that you can extend when entertaining.

Or have two small matching tables - one in the kitchen and one in the playroom - that you can put together and stick a tablecloth over to entertain.

That way you can have larger opening doors to the garden from your kitchen, and more space to move around, which seems better to me than having a large fixed table there the whole time.

NotMeNoNo · 03/09/2025 16:05

You could have an "L" shape of units, maybe with an additional short run of storage, but leave one side mostly free for an extendable table that can be pulled out when you have a big group. The rest of the time it will just give you more circulation space or room for a small armchair.

EffectivelyDecluttering · 03/09/2025 16:15

We have similar, the people before us divided it into kitchen and dining areas and both were too cramped, so we moved our table to what you have labelled the playroom (we called ours that for years but the DCs never played there, then we made it into a home office int he days of having one big desktop PC that everyone shared but none of us WFH and everyone uses tablets/laptops now so we converted it to a dining room, because it's a thoroughfare we keep the table pushed against the wall (seats 4) and can pull it into the middle and extend for guests.

Then we made the kitchen into just a kitchen, with patio doors at the back which are honestly the best feature pf the house, they are open all the time weather permitting, we are in and out all day long, eat outside all summer, they let in masses of light. We have a breakfast bar and 4 stools plus two larder cupboards on the side of the kitchen where the door comes in then on the short side facing the patio doors have the sink and units going right round to the patio doors with the cooker in the middle.It is so nice having a bigger kitchen.

SingingSands · 03/09/2025 19:03

Could you flip things around so the kitchen and dining area is at the front of the house and the family room at the back?

thelovelyview · 05/09/2025 08:35

L shape and lose the breakfast bar. It serves no purpose and wastes space. Extra units along the wall into the dining space if needed.Definitely needs a smaller space e. I’m surprised an architect designed a room with such difficulty getting into the garden. You could also consider blocking off the back door and having a French door or similar behind the smaller table. Tableware doesn’t need kitchen storage.

My kids are grown and I’ve surprised myself going through my kitchen and dining belongings at the sheer number of items I don't need, and don’t love enough to keep. We all buy so much.

shewasalmostautumn · 06/01/2026 10:37

Hello, Also a east london mama in the exact same position! I was also exploring the idea of the oriel windows to gain some seating without imposing into the existing floor space. I also saw this interesting thing about a glazed extension (photos attached) that doesn't go all the way to the perimeter but gives a little extra square footage. I will ask our architect about the feasibility/cost and if it is possible to do within permitted development.

A few examples I've run into --

They did something interesting with the kitchen layout - while opening up the connection to the second lounge : https://www.forresterarchitects.com/project/no-side-extension-fortnam-north-west-london/

This one seems like alot more work to move the kitchen to the front - although have seen great examples of this in notting hill area: https://designfor-me.com/case-study/unlocking-the-potential-of-a-victorian-terrace-in-east-london/attachment/floor-plan-victorian-terrace/

This one makes space for the loo and creates a utility room (the dream) but still has a separate front lounge room. I think this might be more desirable as my toddler gets older and separate spaces will be more appreciated. https://www.reddit.com/media?url=https%3A%2F%2Fpreview.redd.it%2Fvictorian-terrace-help-needed-with-floor-plan-v0-cj98m10iay6f1.png%3Fwidth%3D1585%26format%3Dpng%26auto%3Dwebp%26s%3D47747f5fb06797684f62d82ed23dc3f5b487fc72

Would love to hear how you're getting on and your thoughts on any of the above! Right now our biggest annoyance is not having the kitchen connected to the dining space and play areas so we feel like we are shuttling back and forth and find it difficult to entertain. I feel the same excruciating pain regarding not finding great examples without an extension!!!!!

Show me your unextended Victorian terrace kitchens!
Show me your unextended Victorian terrace kitchens!
Ikeabudgetdevoltaste · 06/01/2026 14:39

^They did something interesting with the kitchen layout - while opening up the connection to the second lounge : https://www.forresterarchitects.com/project/no-side-extension-fortnam-north-west-london/^

@shewasalmostautumn i can’t figure out what the layout from the front door is in your first link, what have they done with the cloakroom? Did you see a layout?

No Side Extension | Architect for Archway

No Side Extension | Fortnam | Architects for Islington

There is no side extension to the rear of the mid-terraces townhouse, prefect for breakfast and watching the sunrise.

https://www.forresterarchitects.com/project/no-side-extension-fortnam-north-west-london

comoatoupeira · 06/01/2026 14:42

Just make sure you use proper glazing and
thermo glass so that it’s not absolutely boiling in summer and freezing in winter.

shewasalmostautumn · 06/01/2026 14:44

Ikeabudgetdevoltaste · 06/01/2026 14:39

^They did something interesting with the kitchen layout - while opening up the connection to the second lounge : https://www.forresterarchitects.com/project/no-side-extension-fortnam-north-west-london/^

@shewasalmostautumn i can’t figure out what the layout from the front door is in your first link, what have they done with the cloakroom? Did you see a layout?

No :/ there was nothing on the blog post regarding the front door layout.

New posts on this thread. Refresh page
Swipe left for the next trending thread