Meet the Other Phone. Protection built in.

Meet the Other Phone.
Protection built in.

Buy now

Please or to access all these features

Home decoration

Open shelving in kitchen

12 replies

mrsmadiba · 19/06/2023 13:34

Hello, we're in the middle of a side return extension project and having a wobble about the kitchen cabinets and would love some opinions!

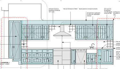
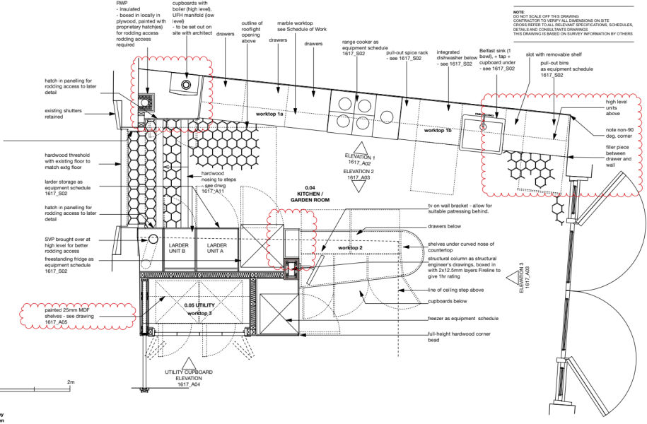
I've attached an image of the layout of the extension as well as the bank of cabinets as they stand currently.

I originally told the architect no open shelving as, even though I love the look, I was trying to be practical and maximise storage space/minimise dusting. But now we're living in a small rental whilst the work is done and we're getting by fine with less than half the amount of storage we'll have in the new kitchen, and I'm starting to think that actually we don't need all those high level cabinets. I also am worried it'll be a bit oppressive and 'samey' - I'm the sort of person who likes to have out decorative objects and pictures and so on. There's unfortunately no option to have a window anywhere on that wall (conservation area - original plans rejected).

Mumsnetters, what would you do? Would you keep the plans as they are or switch some of them up with an open shelf or 2? And which cabinets would you ditch? The obvious ones are above the sink I suppose but how many?

Thank you in advance!

(Image 1: layout of kitchen area
Image 2: the bank of cabinets in question
Image 3: the other side of the 'galley - there are also a couple of low level cabinets on other side of the counter, as well as having a dresser elsewhere, so we really do have a lot of storage I feel)

Open shelving in kitchen
Open shelving in kitchen
Open shelving in kitchen
OP posts:
Thehop · 20/06/2023 09:17

Open shelving is beautiful but so so dusty.

DuchessOfSausage · 20/06/2023 20:03

Open shelving is fine if you love housework.
Items on them get dusty and grimy

mrsmadiba · 20/06/2023 22:38

Thanks both for your replies 😅Defo hate cleaning so might need to let go of this particular idea as I had feared!

OP posts:
allthepeaches · 20/06/2023 22:55

Looks like you'd have more than enough storage without any wall cabinets. If you're disappointed that you can't fit a window on that wall, by not having the wall cabinets you'd be making the space feel much lighter and more open. Open shelves would look great, maybe just one or two for nice bits and bobs. And just give it a quick wipe once a week? I'm sure there'll be someone saying I'm mad soon and that wall cabinets are lovely an practical, but just not my personal preference

justasking111 · 20/06/2023 22:55

I like the French style wardrobe type storage if you can't have a good larder/scullery. I also would like ceiling high cupboards.

https://www.atticmag.com/2013/06/taking-cabinets-to-new-heights/

Ceiling Height Cabinets

Two kitchens featuring extra tall kitchen ceiling height cabinets.

https://www.atticmag.com/2013/06/taking-cabinets-to-new-heights

NellyBarney · 22/06/2023 22:51

I always had open shelving. It depends what you put on it. Ideally not much. I only put things like fresh flowers, a painting and a small number of nice mugs and glasses onto the shelves - so items that either don't gather dust or are moved and go through the dishwasher every couple of days. I find it easy and quick to grab a mug or glass from a shelf rather than having to open a cupboard. Within a day or two, 4 or 6 mugs and glasses get used, put through the dishwasher, and placed back dust free. Shelving makes my kitchen feel airer and more spacious. It also enabled me to fit higher quality units, worktops and appliances into a very limited budget, as shelving is cheap as chips compared to cupboards.

mrsmadiba · 24/06/2023 11:22

Thanks for your replies! I’m only thinking of replacing half the cabinets and as you say just for some flowers, pictures and a few nice pieces of pottery. Think we might go for it.

OP posts:
WhoInvitedHer · 24/06/2023 11:46

I would get rid of all the wall cupboards. We did and never regretted it. Looks much bigger and brighter

parietal · 26/06/2023 22:20

I like open shelves but not too near the cooker because it will get greasy as well as dusty. shelves for items you use & move around are easier to keep clean than purely decorative ones.

wildfirewonder · 26/06/2023 22:22

I personally prefer open shelves and find the top cupboards a bit oppressive.

dudsville · 26/06/2023 22:26

We acquired an old kitchen but love it's retro vibe so we kept it. It has sooooooooo much storage. It's fine, of course, but like you we have commented on it being more storage than we need. We've ended up keeping things simply because we forget they're there. It's not a problem, but if we were ever to change the kitchen we'd cut it down by at least a third and create more that sense of open and light.

Dotcheck · 26/06/2023 22:29

I have open shelves and have my most used crockery on it. It all gets used regularly so never has a chance to get dusty.

The odd thing that DOES get dusty are seldom used items, so it’s no big deal to give a quick wash before use.

It really made me consider what I was holding on to.

New posts on this thread. Refresh page
Swipe left for the next trending thread